+ Lisa oma töö      

Otsid ehitajat "Ehitusekspertiis" valdkonnast?

Parima pakkumise ja teostaja leidmiseks lisa oma töö.

Eramaja õõnespaneelide plaani loomine

ID 62952

358 vaatamist

Prindi

  • check Pakkumiste tegemine
    kuni 24.07.2021
  • check Võitja valik kuni
    31.07.2021
  • 3 Töö teostamine
    ja hinnang
Hanke lõpp: L, 24. juuli, 2021
Maakond: Harjumaa
Tööde algus: R, 23. juuli, 2021 (Soovituslik)
Tööde lõpp: P, 25. juuli, 2021 (Soovituslik)
Ehitusmaterjalid: Töö tellija poolt
Soovin pakkumisi: Summa kogu projektile

Töö sisu

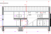
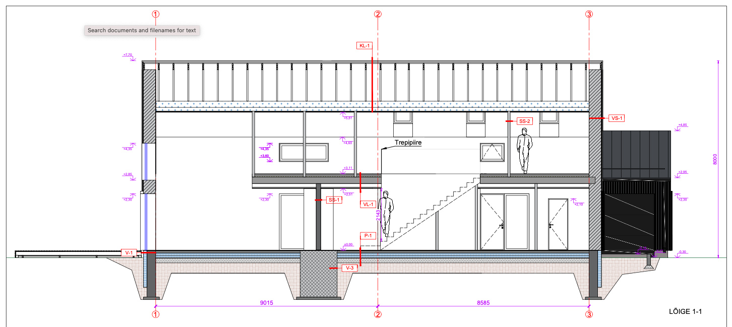
Olemasoleva DWG + VKKV PDF jooniste alusel õõnespaneelide plaani koostamine. Pind kokku ~100 ruutmeetrit.

Sinine osa saab lahendatud muud moodi kui õõnespaneeliga.
Seina paksus on tegelikult 375, mitte 500, paneelid peavad selle võrra pikemad olema. Kui kandvad seinad nõrgaks jäävad siis paneme tugevamad.

Pildid, video ja failid

Hanke korraldaja: eraisik ID56638

Pakkumised

Pakkumisi kokku: 0

Küsimused hanke korraldajale

Hanke korraldajale ei ole veel küsimusi esitatud.

Lisa küsimus

Lisa küsimus

Minu pakkumine

Reeglid

Pakkumise kirjelduse väli on mõeldud pakkumise detailsemaks lahti kirjutamiseks. Pikema teksti mugavaks sisestamiseks klikkige kasti paremal ülaservas oleval ikoonil.
Pakkumist tehes on keelatud postitada enda kontaktandmeid (nimi, telefon, aadress jne). Me jälgime ja analüüsime pakkumisi, et vältida pettuseid ja reeglite rikkumisi.
Rikkumise puhul kasutajakonto blokeeritakse.

 

Vanemad teated:

Vaata kõiki

Sellel veebilehel kasutatakse küpsiseid. Kasutamist jätkates nõustute küpsiste kasutamisega.

Sulge
 
Minu pakkumine

Reeglid

Pakkumise kirjelduse väli on mõeldud pakkumise detailsemaks lahti kirjutamiseks. Pikema teksti mugavaks sisestamiseks klikkige kasti paremal ülaservas oleval ikoonil.
Pakkumist tehes on keelatud postitada enda kontaktandmeid (nimi, telefon, aadress jne). Me jälgime ja analüüsime pakkumisi, et vältida pettuseid ja reeglite rikkumisi.
Rikkumise puhul kasutajakonto blokeeritakse.