+ Lisa oma töö      

Otsid ehitajat "Sanitaartehnilised tööd" valdkonnast?

Parima pakkumise ja teostaja leidmiseks lisa oma töö.

Vee ja kanalisatsiooni torustiku ehitus

ID 62826

706 vaatamist

Prindi

  • check Pakkumiste tegemine
    kuni 09.08.2021
  • check Võitja valik kuni
    16.08.2021
  • 3 Töö teostamine
    ja hinnang
Hanke lõpp: E, 9. august, 2021
Maakond: Raplamaa
Tööde algus: N, 22. juuli, 2021 (Soovituslik)
Tööde lõpp: K, 01. september, 2021 (Soovituslik)
Ehitusmaterjalid: Töö tellija poolt
Soovin pakkumisi: Summa kogu projektile

Töö sisu

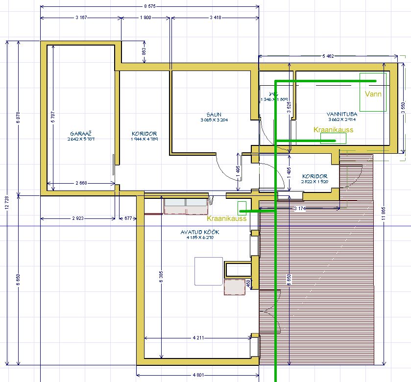
Krundi sisene vee ja kanalisatsiooni torustik ühisveevärgiga liitumiseks. (Piltidel roheline joon)
Krundivälised ühisveevärgi torud pole veel paigas, seega antud etapp ühendamist ei sisalda.
Oluline on torustik paigaldada enne planeeritava juurdeehituse alustamist.
Planeeritav juurdeehitis on piltidel kollasega vana vundamendi peale.
Torustik peaks hargnema WC, vanni ja kraanikausi planeeritavatele kohtadele.
Lisaks sooviks varustada ka kööki kanalisatsiooni ja veega.
Olemasoleva maja vundamendi alt seina taha, maja sisse (pildil köök)
Köögi põrand on 150-prussidel seisev laudis – vineer – linoleum.
Põranda prusside vahe on soojustatud villa ja penoplastiga.
Maja vundament on betoonist, kahjuks pole sügavus teada.
Kuna aegajalt tuleb autoga ka hoovi sõita, siis peaks torustikule mingi koormust taluva katte sellele osale panema.
Pildil asukoht sinisega.
Konkreetsetel kohtadel pole kaevanud, aga mujal krundil on pinnas peale 0,5 m pae kivine.

Objekt asub Aespas.

Pildid, video ja failid

Hanke korraldaja: eraisik ID63622

Pakkumised

Pakkumisi kokku: 0

Küsimused hanke korraldajale

Hanke korraldajale ei ole veel küsimusi esitatud.

Lisa küsimus

Lisa küsimus

Minu pakkumine

Reeglid

Pakkumise kirjelduse väli on mõeldud pakkumise detailsemaks lahti kirjutamiseks. Pikema teksti mugavaks sisestamiseks klikkige kasti paremal ülaservas oleval ikoonil.
Pakkumist tehes on keelatud postitada enda kontaktandmeid (nimi, telefon, aadress jne). Me jälgime ja analüüsime pakkumisi, et vältida pettuseid ja reeglite rikkumisi.
Rikkumise puhul kasutajakonto blokeeritakse.

 

Teisi töid samas valdkonnas

Valdkonnas "Sanitaartehnilised tööd" on 4 aktiivset tööd

Vee- ja kanalisatsioonipüstikute vahetus

Asukoht: Harjumaa, Tallinn
Aega jäänud: 25p 1h
Tehtud pakkumisi: 3

Vannitoa dušinurga paigaldus ja veevõtu torude ümberehitus uue dušinurga ühendamiseks

Asukoht: Harjumaa, Salmistu
Aega jäänud: 7p 1h
Tehtud pakkumisi: 2

Vanemad teated:

Vaata kõiki

Sellel veebilehel kasutatakse küpsiseid. Kasutamist jätkates nõustute küpsiste kasutamisega.

Sulge
 
Minu pakkumine

Reeglid

Pakkumise kirjelduse väli on mõeldud pakkumise detailsemaks lahti kirjutamiseks. Pikema teksti mugavaks sisestamiseks klikkige kasti paremal ülaservas oleval ikoonil.
Pakkumist tehes on keelatud postitada enda kontaktandmeid (nimi, telefon, aadress jne). Me jälgime ja analüüsime pakkumisi, et vältida pettuseid ja reeglite rikkumisi.
Rikkumise puhul kasutajakonto blokeeritakse.