+ Lisa oma töö      

Otsid ehitajat "Siseviimistlustööd" valdkonnast?

Parima pakkumise ja teostaja leidmiseks lisa oma töö.

IKEA köögi paigaldus

ID 62661

813 vaatamist

Prindi

  • check Pakkumiste tegemine
    kuni 29.07.2021
  • check Võitja valik kuni
    05.08.2021
  • 3 Töö teostamine
    ja hinnang
Hanke lõpp: N, 29. juuli, 2021
Maakond: Harjumaa
Linn: Tallinn
Tööde algus: E, 26. juuli, 2021 (Soovituslik)
Tööde lõpp: P, 08. august, 2021 (Soovituslik)
Ehitusmaterjalid: Töö tellija poolt
Soovin pakkumisi: Summa kogu projektile

Töö sisu

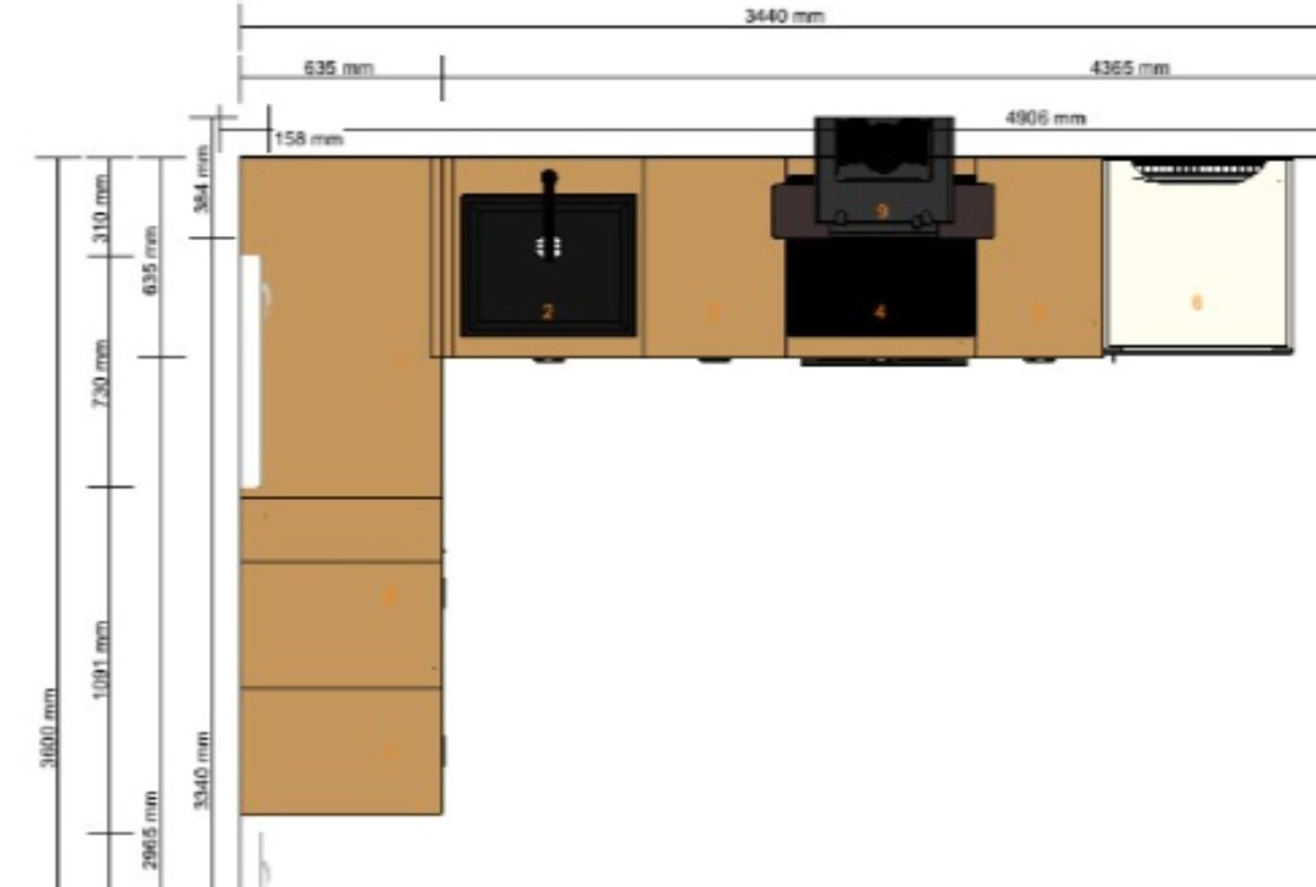
Tarvis on paigaldada IKEA köök koos integreeritud tehnikaga. Töötasapind ja osa tehnikast saavad suure tõenäosusega soetatud teise müüja käest, kuid on mööbli mõõtudele vastavad ning originaalpakendis.

Lisainfo:
* Avatud köögiosasse tulevad L-kujulised alumised kapid (nurgaköök), täpsem info/mõõdud piltidel, ülemisi kappe ei tule. Ühes seinas olevad kapid tuleb kaldseina tõttu paigaldada seinast 200 mm eemale, selle tarbeks on IKEA lisanud eraldi kinnitused.
* Tehnikast on tarvis paigaldada pliidiplaat (elekter), ahi, nõudepesumasin (ühendada veevärgiga), külmkapp, kubu (ühenduskoht olemas).
* Tarvis paigaldada valamu ja segisti, samuti ühendada veevärgiga.
* Töötasapind tuleb kõigi eelduste kohaselt juba mõõtu lõigatuna, kuna tegu on eritellimusega. Üks nö väljaulatuv osa (ca 750 mm lai) läheb katuseakna orva sisse ja on tavapärase 600 mm asemel 800 mm sügav. Sisse tuleb lõigata valamu ja pliidi avad.
* Torud ja ühendused on õigetes kohtades olemas.
* Korter asub Tallinnas, Kitsekülas, kolmandal korrusel.


Tegu on eraisikust tellijaga, palun pakkumisse kirja panna kindlasti lõplik summa, mis tuleb tellijal tasuda (koos km-ga).

Pildid, video ja failid

Hanke korraldaja: eraisik ID63501

Pakkumised

Pakkumisi kokku: 1

Ettevõte Summa Käibemaks Lisatud Vestlus
Kasutaja ikoon ID44254
Pakkuja profiil Väike nool paremale
800€ Ei ole KMKR Ei ole KMKR 21.07.2021 Vestlus (0)

Küsimused hanke korraldajale

Hanke korraldajale ei ole veel küsimusi esitatud.

Lisa küsimus

Lisa küsimus

Minu pakkumine

Reeglid

Pakkumise kirjelduse väli on mõeldud pakkumise detailsemaks lahti kirjutamiseks. Pikema teksti mugavaks sisestamiseks klikkige kasti paremal ülaservas oleval ikoonil.
Pakkumist tehes on keelatud postitada enda kontaktandmeid (nimi, telefon, aadress jne). Me jälgime ja analüüsime pakkumisi, et vältida pettuseid ja reeglite rikkumisi.
Rikkumise puhul kasutajakonto blokeeritakse.

 

Teisi töid samas valdkonnas

Valdkonnas "Siseviimistlustööd" on 24 aktiivset tööd

Seinte värvimine

Asukoht: Harjumaa, Tallinn
Aega jäänud: 1h 40 min
Tehtud pakkumisi: 7

Seinte pahteldus ja värvimine

Asukoht: Harjumaa, Türisalu
Aega jäänud: 3p 1h
Tehtud pakkumisi: 7

Vanemad teated:

Vaata kõiki

Sellel veebilehel kasutatakse küpsiseid. Kasutamist jätkates nõustute küpsiste kasutamisega.

Sulge
 
Minu pakkumine

Reeglid

Pakkumise kirjelduse väli on mõeldud pakkumise detailsemaks lahti kirjutamiseks. Pikema teksti mugavaks sisestamiseks klikkige kasti paremal ülaservas oleval ikoonil.
Pakkumist tehes on keelatud postitada enda kontaktandmeid (nimi, telefon, aadress jne). Me jälgime ja analüüsime pakkumisi, et vältida pettuseid ja reeglite rikkumisi.
Rikkumise puhul kasutajakonto blokeeritakse.