+ Lisa oma töö      

Otsid ehitajat "Põrandatööd" valdkonnast?

Parima pakkumise ja teostaja leidmiseks lisa oma töö.

Keldri põranda ehitus.

ID 62618

422 vaatamist

Prindi

  • check Pakkumiste tegemine
    kuni 21.07.2021
  • check Võitja valik kuni
    28.07.2021
  • 3 Töö teostamine
    ja hinnang
Hanke lõpp: K, 21. juuli, 2021
Maakond: Harjumaa
Linn: Tallinn
Tööde algus: E, 26. juuli, 2021 (Soovituslik)
Tööde lõpp: P, 15. august, 2021 (Soovituslik)
Ehitusmaterjalid: Töö tegija poolt
Soovin pakkumisi: Summa kogu projektile

Töö sisu

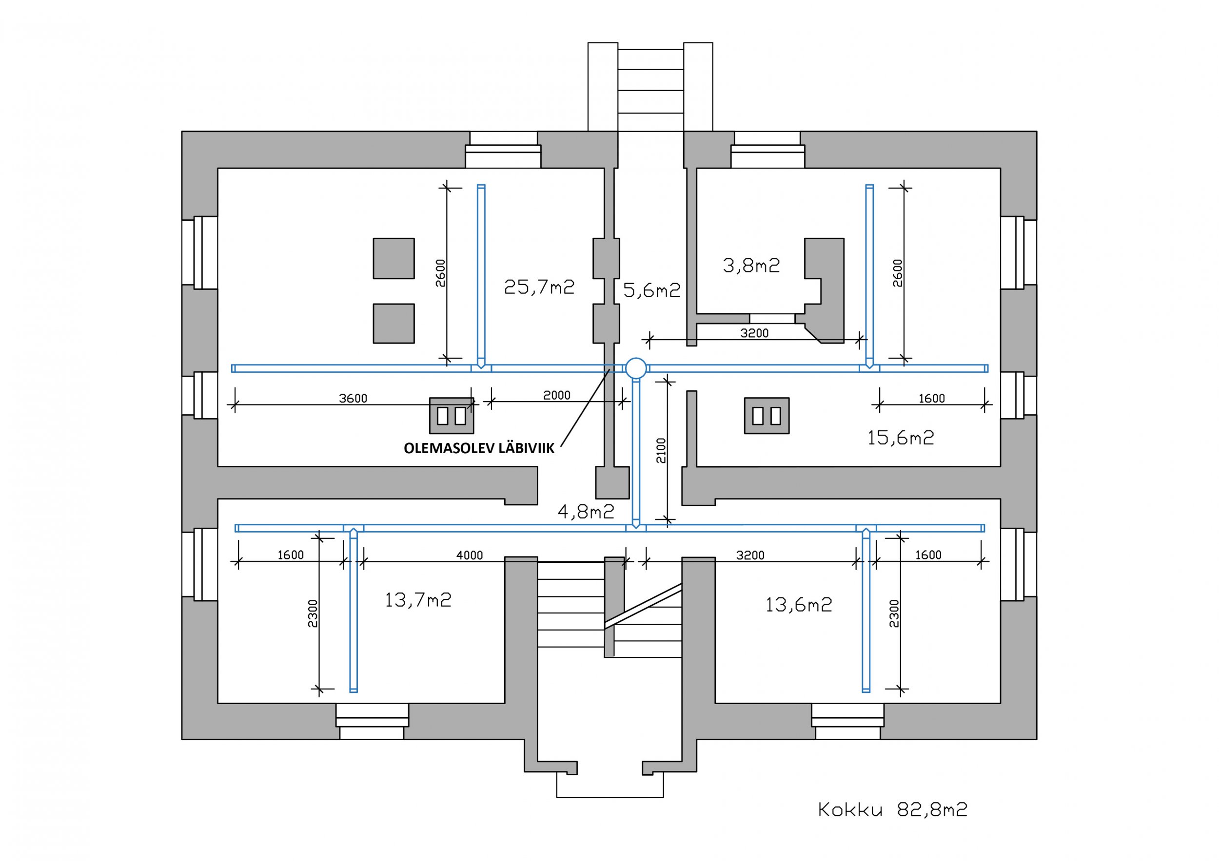
Hange sisaldab kogu põranda ulatuses (83m2) järgmisi töid:
- Geotekstiili paigaldus
- Killustikuga tasanduskihi paigaldus ja vajalike kallete tekitamine drenaažile
- Drenaaži (Uponori 315mm diameetriga kaev ja topetseinaga 110mm torud, kolmikud ja korgid) paigaldamine
- Killustikuga täitekihi paigaldamine ja tihendamine
- Kile ja servalindi paigaldamine
- Armatuuri paigaldamine
- Betoonpõranda valamine (7cm)

Eemaldatud on vana betoonpõrand ja pinnas kokku 30cm sügavuselt.
Uue põranda kõrgus jääb samaks kui enne: viimasest trepiastmest ühe astme kõrguse võrra alla poole.

Pildid, video ja failid

Hanke korraldaja: korteriühistu ID62452

Pakkumised

Pakkumisi kokku: 1

Ettevõte Summa Käibemaks Lisatud Vestlus
Kasutaja ikoon ID50594
Pakkuja profiil Väike nool paremale
8 000€ KM lisandub KM lisandub 16.07.2021 Vestlus (0)

Pakkumise kirjeldus:

Tere,

Hinnapakkumine koostatud vastavalt hanke kirjeldusele.

Lgp. Taivo

Küsimused hanke korraldajale

Hanke korraldajale ei ole veel küsimusi esitatud.

Lisa küsimus

Lisa küsimus

Minu pakkumine

Reeglid

Pakkumise kirjelduse väli on mõeldud pakkumise detailsemaks lahti kirjutamiseks. Pikema teksti mugavaks sisestamiseks klikkige kasti paremal ülaservas oleval ikoonil.
Pakkumist tehes on keelatud postitada enda kontaktandmeid (nimi, telefon, aadress jne). Me jälgime ja analüüsime pakkumisi, et vältida pettuseid ja reeglite rikkumisi.
Rikkumise puhul kasutajakonto blokeeritakse.

 

Teisi töid samas valdkonnas

Valdkonnas "Põrandatööd" on 2 aktiivset tööd

Talumaja põrandate valamine/ehitus koos küttetorustiku paigaldusega

Asukoht: Raplamaa, Purila
Aega jäänud: 16p 6h
Tehtud pakkumisi: 2

Põrandakütte paigaldus ja põrandavalu (kips või betoon)

Asukoht: Saaremaa, Muhu vald
Aega jäänud: 6h 42 min
Tehtud pakkumisi: 1

Vanemad teated:

Vaata kõiki

Sellel veebilehel kasutatakse küpsiseid. Kasutamist jätkates nõustute küpsiste kasutamisega.

Sulge
 
Minu pakkumine

Reeglid

Pakkumise kirjelduse väli on mõeldud pakkumise detailsemaks lahti kirjutamiseks. Pikema teksti mugavaks sisestamiseks klikkige kasti paremal ülaservas oleval ikoonil.
Pakkumist tehes on keelatud postitada enda kontaktandmeid (nimi, telefon, aadress jne). Me jälgime ja analüüsime pakkumisi, et vältida pettuseid ja reeglite rikkumisi.
Rikkumise puhul kasutajakonto blokeeritakse.