+ Lisa oma töö      

Otsid ehitajat "Arhitektibürood" valdkonnast?

Parima pakkumise ja teostaja leidmiseks lisa oma töö.

Hange on lõppenud!

Võitjaks osutus kasutaja ID 63311

Korraldaja hinnang tehtud tööle

5.0
05.08.2021
Töökiirus: 12345
Kvaliteet: 12345
Hind: 12345

Väga hästi, asjalikult, põhjalikult ja kiiresti tehtud. Igati soovitan. - Artur A.

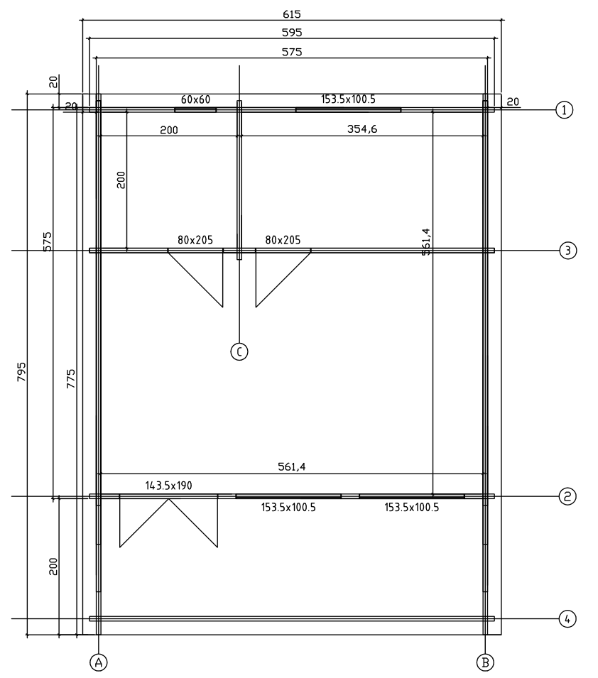
Aiamaja projekt ehitusteatise esitamiseks

ID 62396

1050 vaatamist

Prindi

  • check Pakkumiste tegemine
    kuni 11.07.2021
  • check Võitja valik kuni
    18.07.2021
  • 3 Töö teostamine
    ja hinnang
Hanke lõpp: P, 11. juuli, 2021
Maakond: Tartumaa
Tööde algus: R, 09. juuli, 2021 (Soovituslik)
Tööde lõpp: N, 22. juuli, 2021
Ehitusmaterjalid: Töö tellija poolt
Soovin pakkumisi: Summa kogu projektile

Töö sisu

Plaanis on panna püsti aiamaja ~35m2, ning selle jaoks on vaja teha projekt, mis läheb ehitusteatisse. Projekt on vaja teha valmis hiljemalt 22.07.2021, et 23.07 saaks esitada, geoalust preaguse plaani järgi saan tehtud 14.07.2021. Maja joonised on tootja poolt olemas. Aiamaja saab ühendatud isevoolulise kanalisatsiooniga, kaevuveega ja elektriga, seega kui see peab kajastuma ka projektis siis seda tuleb teha ka.

Pildid, video ja failid

Hanke korraldaja: eraisik ID63358

Pakkumised

Pakkumisi kokku: 4

Ettevõte Summa Käibemaks Lisatud Vestlus
Kasutaja ikoon ID42152
Pakkuja profiil Väike nool paremale
1 000€ Ei ole KMKR Ei ole KMKR 08.07.2021 Vestlus (0)

Pakkumise kirjeldus:

Ehitusprojekt eelprojekti staadiumis (arh-eh osad koos eriosadega)
PAkkumishind sisaldab:
Seletuskiri
Asendiplaan (vajalik geoalus)
Vund ja korruse plaan
Katuse plaan
Hoone lõige
Hoone vaated
Avatäidete joonised

Kooskõlastused ehitusteatise registreerimiseks
Ehitusteatise esitamine KOV
Ehitusteatise registreerimine KOV

Riigilõivuvaba

N ... Rohkem

Kasutaja ikoon ID53950
Pakkuja profiil Väike nool paremale
790€ Sisaldab KM Sisaldab KM 10.07.2021 Vestlus (0)
Kasutaja ikoon ID63311
Pakkuja profiil Väike nool paremale
700€ Ei ole KMKR Ei ole KMKR 10.07.2021 Vestlus (2)

Pakkumise kirjeldus:

Teen pakkumise kuigi arvestades hanke aega, siis teie öeldud kuupäevadeks tõenäoliselt projekti valmis teha ei saa. Pigem kuskil augusti kuu jooksul lisaks see aeg, mis läheb KOV-il menetlemiseks ja vajadusel nende märkuste parandamiseks.
Kui see aiamaja ei ole esimene hoone krundil, siis ma pakun, et geoalust ja asendiplaani ei lähe vaja, kui just s ... Rohkem

Kasutaja ikoon ID58624
Pakkuja profiil Väike nool paremale
997€ Ei ole KMKR Ei ole KMKR 11.07.2021 Vestlus (0)

Küsimused hanke korraldajale

Hanke korraldajale ei ole veel küsimusi esitatud.

Lisa küsimus

Lisa küsimus

Minu pakkumine

Reeglid

Pakkumise kirjelduse väli on mõeldud pakkumise detailsemaks lahti kirjutamiseks. Pikema teksti mugavaks sisestamiseks klikkige kasti paremal ülaservas oleval ikoonil.
Pakkumist tehes on keelatud postitada enda kontaktandmeid (nimi, telefon, aadress jne). Me jälgime ja analüüsime pakkumisi, et vältida pettuseid ja reeglite rikkumisi.
Rikkumise puhul kasutajakonto blokeeritakse.

 

Vanemad teated:

Vaata kõiki

Sellel veebilehel kasutatakse küpsiseid. Kasutamist jätkates nõustute küpsiste kasutamisega.

Sulge
 
Minu pakkumine

Reeglid

Pakkumise kirjelduse väli on mõeldud pakkumise detailsemaks lahti kirjutamiseks. Pikema teksti mugavaks sisestamiseks klikkige kasti paremal ülaservas oleval ikoonil.
Pakkumist tehes on keelatud postitada enda kontaktandmeid (nimi, telefon, aadress jne). Me jälgime ja analüüsime pakkumisi, et vältida pettuseid ja reeglite rikkumisi.
Rikkumise puhul kasutajakonto blokeeritakse.