+ Lisa oma töö      

Otsid ehitajat "Vundamenditööd" valdkonnast?

Parima pakkumise ja teostaja leidmiseks lisa oma töö.

Elamu vundamendi rajamine Võru vallas

ID 62161

744 vaatamist

Prindi

  • check Pakkumiste tegemine
    kuni 22.07.2021
  • check Võitja valik kuni
    29.07.2021
  • 3 Töö teostamine
    ja hinnang
Hanke lõpp: N, 22. juuli, 2021
Maakond: Võrumaa
Tööde algus: E, 16. august, 2021 (Soovituslik)
Tööde lõpp: L, 16. oktoober, 2021 (Soovituslik)
Ehitusmaterjalid: Töö tegija poolt
Soovin pakkumisi: Summa kogu projektile

Töö sisu

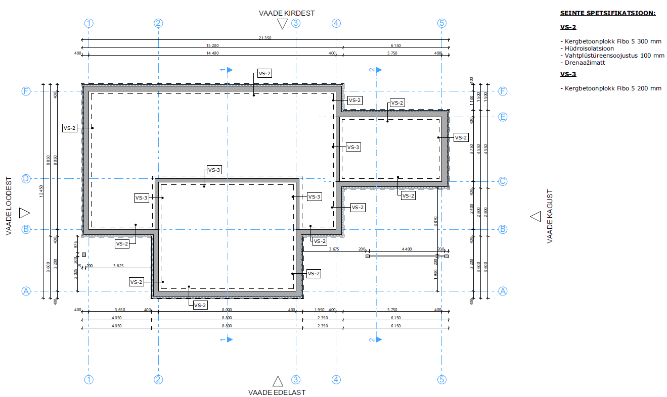
Soovin pakkumust elamu vundamendi rajamiseks ning vee- ja kanalisatsiooni liitumise trasside ehitamiseks kinnistu piiril asuva liitumispunktini.

Lisatud väljavõtted asendiplaanist, vundamendi plaanist ning iseloomulikest lõigetest.

Hange sisaldab põhitöödest:
- Vundamendikaeviku kaeve ja pinnase äravedu
- Raudbetoonist vundamenditaldmike ehitus
- Kergbetoonplokist vundamendimüüride ja postvundamentide ehitus
- Vundamendi hüdroisolatsiooni, soojustuse ning drenaažimattide paigaldamine
- Horisontaalse soojustuse paigaldamine vundamendi perimeetrile garaaži ümbruses (külmakaitse)
- Vundamendi drenaaži ehitamine vundamendi perimeetrile (sh nurgakaevude paigaldamine ning äravoolu juhtimine läbi põhikaevu (tagasivooluklapiga) kinnistu piiril asuvasse tiiki).
- Liivast tagasitäide vundamendi sees ja ümber
- Vee- ja kanalisatsiooni liitumise trasside ehitamine kinnistu piiril asuva liitumispunktini
- Elektri- ja sidekaablite kõride paigaldamine

Tööd sisaldavad kõiki vajalikke tegevusi ja materjale.

Pildid, video ja failid

Hanke korraldaja: eraisik ID63231

Pakkumised

Pakkumisi kokku: 2

Ettevõte Summa Käibemaks Lisatud Vestlus
Kasutaja ikoon ID57111
Pakkuja profiil Väike nool paremale
28 400€ KM lisandub KM lisandub 20.07.2021 Vestlus (0)

Pakkumise kirjeldus:

Kalkulatsioon koostatud vastavalt esitatud andmetele ja soovitud töödele.

Kasutaja ikoon ID55746
Pakkuja profiil Väike nool paremale
32 000€ Ei ole KMKR Ei ole KMKR 22.07.2021 Vestlus (0)

Pakkumise kirjeldus:

Tere,

Oleme meeskond kes teab ja tunneb oma ala töid. Meie teenusega kaasneb ka garantii 2 aastat. Saame aidata ka teiste erinevate töödega kui teil peaks vaja minema.

Käibemaksu meil juurde ei lisandu!!

Parimate soovidega!!

Küsimused hanke korraldajale

Hanke korraldajale ei ole veel küsimusi esitatud.

Lisa küsimus

Lisa küsimus

Minu pakkumine

Reeglid

Pakkumise kirjelduse väli on mõeldud pakkumise detailsemaks lahti kirjutamiseks. Pikema teksti mugavaks sisestamiseks klikkige kasti paremal ülaservas oleval ikoonil.
Pakkumist tehes on keelatud postitada enda kontaktandmeid (nimi, telefon, aadress jne). Me jälgime ja analüüsime pakkumisi, et vältida pettuseid ja reeglite rikkumisi.
Rikkumise puhul kasutajakonto blokeeritakse.

 

Vanemad teated:

Vaata kõiki

Sellel veebilehel kasutatakse küpsiseid. Kasutamist jätkates nõustute küpsiste kasutamisega.

Sulge
 
Minu pakkumine

Reeglid

Pakkumise kirjelduse väli on mõeldud pakkumise detailsemaks lahti kirjutamiseks. Pikema teksti mugavaks sisestamiseks klikkige kasti paremal ülaservas oleval ikoonil.
Pakkumist tehes on keelatud postitada enda kontaktandmeid (nimi, telefon, aadress jne). Me jälgime ja analüüsime pakkumisi, et vältida pettuseid ja reeglite rikkumisi.
Rikkumise puhul kasutajakonto blokeeritakse.