+ Lisa oma töö      

Otsid ehitajat "Puitehitised" valdkonnast?

Parima pakkumise ja teostaja leidmiseks lisa oma töö.

Aiamaja kokkupanek

ID 61991

645 vaatamist

Prindi

  • check Pakkumiste tegemine
    kuni 02.07.2021
  • check Võitja valik kuni
    09.07.2021
  • 3 Töö teostamine
    ja hinnang
Hanke lõpp: R, 2. juuli, 2021
Maakond: Harjumaa
Linn: Tallinn
Tööde algus: K, 30. juuni, 2021 (Soovituslik)
Tööde lõpp: P, 11. juuli, 2021 (Soovituslik)
Ehitusmaterjalid: Töö tellija poolt
Soovin pakkumisi: Summa kogu projektile

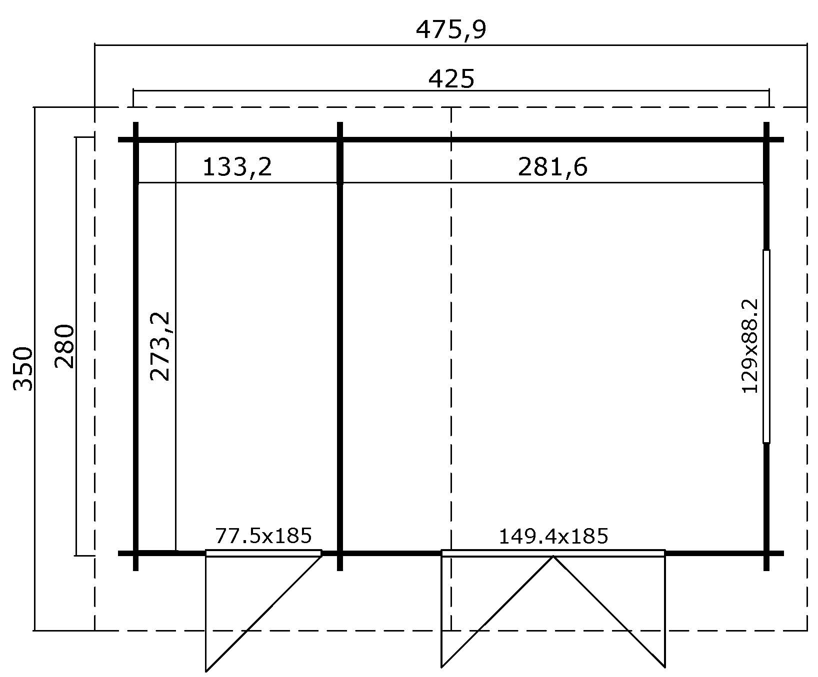
Töö sisu

Aiamaja kokkupanek
Aimajaks Lasita
Pinnas on tänavakivi
Värvida pole vaja

Pildid, video ja failid

Hanke korraldaja: eraisik ID63134

Pakkumised

Pakkumisi kokku: 13

Ettevõte Summa Käibemaks Lisatud Vestlus
Kasutaja ikoon ID30805
Pakkuja profiil Väike nool paremale
1 500€ Ei ole KMKR Ei ole KMKR 29.06.2021 Vestlus (0)

Pakkumise kirjeldus:

Tóóraha

Kasutaja ikoon ID41269
Pakkuja profiil Väike nool paremale
1 500€ Sisaldab KM Sisaldab KM 29.06.2021 Vestlus (0)

Pakkumise kirjeldus:

Paigaldusetöö hind. Lisanduvad kinnitusvahendid jne kui on vajadus. Tasu sularahas 2-3päeva.

Kasutaja ikoon ID63135
Pakkuja profiil Väike nool paremale
1 200€ Sisaldab KM Sisaldab KM 29.06.2021 Vestlus (0)

Pakkumise kirjeldus:

Aiamaja püstitamine(ilma aluspinnata).

Kasutaja ikoon ID54009
Pakkuja profiil Väike nool paremale
1 200€ KM lisandub KM lisandub 29.06.2021 Vestlus (0)
Kasutaja ikoon ID62677
Pakkuja profiil Väike nool paremale
1 000€ Sisaldab KM Sisaldab KM 30.06.2021 Vestlus (0)

Pakkumise kirjeldus:

Katusekate käib sellistel majadel betuumen sindel mille paigalduse hind on 30 eurot m2 mis ei ole maja paigalduse hinna sees .

Kasutaja ikoon ID59092
Pakkuja profiil Väike nool paremale
900€ Ei ole KMKR Ei ole KMKR 30.06.2021 Vestlus (0)
Kasutaja ikoon ID60276
Pakkuja profiil Väike nool paremale
980€ Sisaldab KM Sisaldab KM 30.06.2021 Vestlus (0)

Pakkumise kirjeldus:

Hind sisaldab tööd, katusematerjali paigaldus (kui on ntks rullmaterjal, keerulisem materjal kokkuleppel), tööriistad, transport Tallinna piires.

Kasutaja ikoon ID49185
Pakkuja profiil Väike nool paremale
1 000€ Sisaldab KM Sisaldab KM 30.06.2021 Vestlus (0)
Kasutaja ikoon ID50594
Pakkuja profiil Väike nool paremale
1 500€ KM lisandub KM lisandub 30.06.2021 Vestlus (0)

Pakkumise kirjeldus:

Tere,

Hinnapakkumine koostatud vastavalt hanke kirjeldusele.

Lgp. Taivo

Kasutaja ikoon ID53017
Pakkuja profiil Väike nool paremale
1 350€ Sisaldab KM Sisaldab KM 02.07.2021 Vestlus (0)
Kasutaja ikoon ID62029
Pakkuja profiil Väike nool paremale
800€ Sisaldab KM Sisaldab KM 02.07.2021 Vestlus (0)
Kasutaja ikoon ID62644
Pakkuja profiil Väike nool paremale
1 500€ Ikoon kell Sisaldab KM Sisaldab KM 02.07.2021 Vestlus (0)

Pakkumise kirjeldus:

Pakkumine tehtud soovitud töödele.

Koostööle lootes,
Aleksander.

Kasutaja ikoon ID60852
Pakkuja profiil Väike nool paremale
900€ Sisaldab KM Sisaldab KM 02.07.2021 Vestlus (0)

Pakkumise kirjeldus:

Pakkumine sisaldab aiamaja kokkupanemist ja katusematerjali pealepanekut.

Küsimused hanke korraldajale

Küsimus: private ID61824   29.06.2021 21:46
Tere

Kas saan õigesti aru, et soovite majakese kokkupanekut, vundamenti pole vaja rajada. Kas katusekate on olemas või ei ole seda vaja paigaldada või peab kokku panija selle soetama.

Kaunist õhtut

Rauno

Teavita reeglite rikkumisest

Korraldaja vastus: 29.06.2021 21:57

Tere, Rauno

Lisasin pildi juurde kohast kuhu maja võiks tulla. Eraldi vundamenti vast vaja pole. Katusekate on olemas ja oleks vaja ka peale panna.

Argo

Teavita reeglite rikkumisest

Küsimus: private ID62677   30.06.2021 08:17
Unustasin ka mainida meeskonna transport 50 eurot tuleb hinnale juurde

Lugupidamisega.

Teavita reeglite rikkumisest

Korraldaja vastus:
Hanke korraldaja ei ole küsimusele veel vastanud

Lisa küsimus

Lisa küsimus

Minu pakkumine

Reeglid

Pakkumise kirjelduse väli on mõeldud pakkumise detailsemaks lahti kirjutamiseks. Pikema teksti mugavaks sisestamiseks klikkige kasti paremal ülaservas oleval ikoonil.
Pakkumist tehes on keelatud postitada enda kontaktandmeid (nimi, telefon, aadress jne). Me jälgime ja analüüsime pakkumisi, et vältida pettuseid ja reeglite rikkumisi.
Rikkumise puhul kasutajakonto blokeeritakse.

 

Teisi töid samas valdkonnas

Valdkonnas "Puitehitised" on 2 aktiivset tööd

Terrass + Puidust Pergola

Asukoht: Harjumaa, Lähtse
Aega jäänud: 3p 9h
Tehtud pakkumisi: 1

Kuur, auto varjualune

Asukoht: Pärnumaa, Kabli
Aega jäänud: 12p 9h
Tehtud pakkumisi: 1

Vanemad teated:

Vaata kõiki

Sellel veebilehel kasutatakse küpsiseid. Kasutamist jätkates nõustute küpsiste kasutamisega.

Sulge
 
Minu pakkumine

Reeglid

Pakkumise kirjelduse väli on mõeldud pakkumise detailsemaks lahti kirjutamiseks. Pikema teksti mugavaks sisestamiseks klikkige kasti paremal ülaservas oleval ikoonil.
Pakkumist tehes on keelatud postitada enda kontaktandmeid (nimi, telefon, aadress jne). Me jälgime ja analüüsime pakkumisi, et vältida pettuseid ja reeglite rikkumisi.
Rikkumise puhul kasutajakonto blokeeritakse.