+ Lisa oma töö      

Otsid ehitajat "Katusetööd" valdkonnast?

Parima pakkumise ja teostaja leidmiseks lisa oma töö.

Katuse vahetus

ID 61462

401 vaatamist

Prindi

  • check Pakkumiste tegemine
    kuni 14.06.2021
  • check Võitja valik kuni
    21.06.2021
  • 3 Töö teostamine
    ja hinnang
Hanke lõpp: E, 14. juuni, 2021
Maakond: Harjumaa
Tööde algus: K, 14. juuli, 2021 (Soovituslik)
Tööde lõpp: T, 31. august, 2021 (Soovituslik)
Ehitusmaterjalid: Töö tegija poolt
Soovin pakkumisi: Tüki- või ühikuhinda

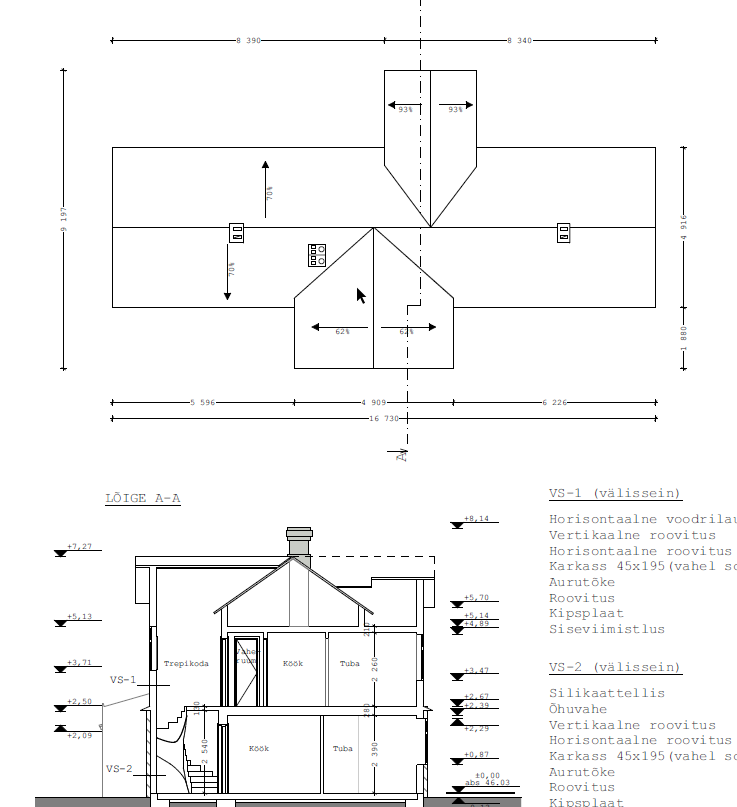
Töö sisu

katuse vahetus sisaldab vana katuse lammutust riknenud sarikate vahetust ja sarikatevage isoleerimist Pur 15cm, tuulutuse, aluskatte, roovi ja valtsplekk katuse ehitamist (tsink), maja ees katusepealne vihmavee renn, taga sobib ka räästa renn. Räästakastid alt avatud sarikad nikerdustega.
maht 90m2

Pildid, video ja failid

Hanke korraldaja: eraisik ID34820

Pakkumised

Pakkumisi kokku: 1

Ettevõte Summa Käibemaks Lisatud Vestlus
Kasutaja ikoon ID55746
Pakkuja profiil Väike nool paremale
8 400€ Ei ole KMKR Ei ole KMKR 14.06.2021 Vestlus (0)

Pakkumise kirjeldus:

Tere,

Oleme meeskond kes teab ja tunneb oma ala töid. Meie teenusega kaasneb ka garantii 2 aastat. Saame aidata ka teiste erinevate töödega kui teil peaks vaja minema.

Parimate soovidega!!

Küsimused hanke korraldajale

Küsimus: private ID59024   13.06.2021 08:17
Tere. 90 m2 ? Kas soovite osaliselt katust vahetada?

Teavita reeglite rikkumisest

Korraldaja vastus:
Hanke korraldaja ei ole küsimusele veel vastanud

Lisa küsimus

Lisa küsimus

Minu pakkumine

Reeglid

Pakkumise kirjelduse väli on mõeldud pakkumise detailsemaks lahti kirjutamiseks. Pikema teksti mugavaks sisestamiseks klikkige kasti paremal ülaservas oleval ikoonil.
Pakkumist tehes on keelatud postitada enda kontaktandmeid (nimi, telefon, aadress jne). Me jälgime ja analüüsime pakkumisi, et vältida pettuseid ja reeglite rikkumisi.
Rikkumise puhul kasutajakonto blokeeritakse.

 

Teisi töid samas valdkonnas

Valdkonnas "Katusetööd" on 9 aktiivset tööd

no-img Pilt puudub

Käidava katuse PVC 54m2

Asukoht: Harjumaa, Muraste
Aega jäänud: 4p 9h
Tehtud pakkumisi: 3

Garaaži katuse vahetamine

Asukoht: Harjumaa, Viimsi
Aega jäänud: 13p 9h
Tehtud pakkumisi: 2

Vanemad teated:

Vaata kõiki

Sellel veebilehel kasutatakse küpsiseid. Kasutamist jätkates nõustute küpsiste kasutamisega.

Sulge
 
Minu pakkumine

Reeglid

Pakkumise kirjelduse väli on mõeldud pakkumise detailsemaks lahti kirjutamiseks. Pikema teksti mugavaks sisestamiseks klikkige kasti paremal ülaservas oleval ikoonil.
Pakkumist tehes on keelatud postitada enda kontaktandmeid (nimi, telefon, aadress jne). Me jälgime ja analüüsime pakkumisi, et vältida pettuseid ja reeglite rikkumisi.
Rikkumise puhul kasutajakonto blokeeritakse.