+ Lisa oma töö      

Otsid ehitajat "Korterite remont" valdkonnast?

Parima pakkumise ja teostaja leidmiseks lisa oma töö.

3-toalise korteri suuremahulisem remont

ID 61282

492 vaatamist

Prindi

  • check Pakkumiste tegemine
    kuni 06.07.2021
  • check Võitja valik kuni
    13.07.2021
  • 3 Töö teostamine
    ja hinnang
Hanke lõpp: T, 6. juuli, 2021
Maakond: Harjumaa
Linn: Tallinn
Tööde algus: E, 21. juuni, 2021 (Soovituslik)
Tööde lõpp: K, 21. juuli, 2021 (Soovituslik)
Ehitusmaterjalid: Töö tellija poolt
Soovin pakkumisi: Summa kogu projektile

Töö sisu

Objekti kirjeldus:
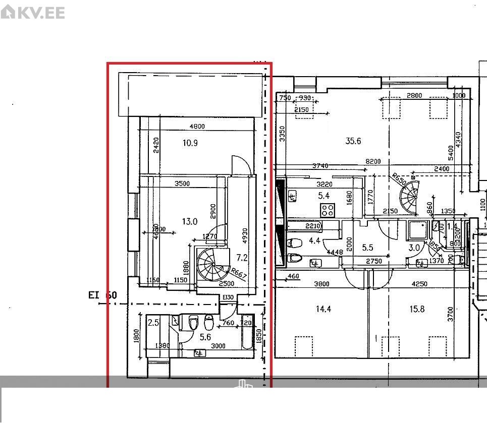
3- toaline korter üldpinnaga 74.1 m2. Korter on kahe korruseline. II- korrusele viib keerdtrepp. Teisel korrusel 2 magamistuba ja vannituba. Korter asub Kalamajas 3ndal korrusel, lift puudub.
Töö kirjeldus (täpsemad detailid ja seletus kohapeal):
* köögi ja elutoa vahele seina ehitus
* elutuppa tuleks tekitada köögi võimalus ehk torustiku/elektri ja ventilatsiooni nihutamine elutuppa
*vanast köögist san. ruumi tekitamine (plaatimine, wc/valamu paigaldus, torude süsteem ka pesumasinale). Antud ruum tuleks avada teisest küljest + ukse paigaldus.
*parketi ülesvõtmine ja utiliseerimine
* uue parketi pagaldus koos infapuna põrandaküttespsteemiga
*koridori põranda plaatimine ja infrapuna soojustuse paigaldus
*radikate vahetus, võimalusel radikate erivariantide pakkumine ja tellimine
*magamistoas radikatetaguse seina eemaldus
*ehitusnõustamine enne tööd ja töö käigus,
* jooksvalt hoida meid kursis töö edenemisest
* vajadusel projekti koostamine kogu tööle
*garantii teostatud töödele
*ehitusprahi utilisatsioon
*ehitajad, san.tehnilised tööd, elektritööd - loa olemasolu
*materjalide valiku pakkumine

Hinnapakkumine nii töödele + ligikaudne summa materjalile
Töödega alustada nii kiiresti kui võimalik.

Pildid, video ja failid

Hanke korraldaja: eraisik ID61271

Pakkumised

Pakkumisi kokku: 1

Ettevõte Summa Käibemaks Lisatud Vestlus
Kasutaja ikoon ID55379
Pakkuja profiil Väike nool paremale
1 500€ Sisaldab KM Sisaldab KM 25.06.2021 Vestlus (0)

Pakkumise kirjeldus:

Tervist

Pakkumine sisaldab AINULT elektritöid. Pakkumine ei sisaldada materjali maksumust.

Parimat
Siim

Küsimused hanke korraldajale

Hanke korraldajale ei ole veel küsimusi esitatud.

Lisa küsimus

Lisa küsimus

Minu pakkumine

Reeglid

Pakkumise kirjelduse väli on mõeldud pakkumise detailsemaks lahti kirjutamiseks. Pikema teksti mugavaks sisestamiseks klikkige kasti paremal ülaservas oleval ikoonil.
Pakkumist tehes on keelatud postitada enda kontaktandmeid (nimi, telefon, aadress jne). Me jälgime ja analüüsime pakkumisi, et vältida pettuseid ja reeglite rikkumisi.
Rikkumise puhul kasutajakonto blokeeritakse.

 

Teisi töid samas valdkonnas

Valdkonnas "Korterite remont" on 2 aktiivset tööd

Vannitoa lampide paigaldus + erinevad pisiparandused korteris

Asukoht: Harjumaa, Tallinn
Aega jäänud: 1p 21h
Tehtud pakkumisi: 3

Korteri kapitaalremont ja ümberehitus (täielik siseviimistlus + elektritööd)

Asukoht: Järvamaa
Aega jäänud: 12p 21h
Tehtud pakkumisi: 0

Vanemad teated:

Vaata kõiki

Sellel veebilehel kasutatakse küpsiseid. Kasutamist jätkates nõustute küpsiste kasutamisega.

Sulge
 
Minu pakkumine

Reeglid

Pakkumise kirjelduse väli on mõeldud pakkumise detailsemaks lahti kirjutamiseks. Pikema teksti mugavaks sisestamiseks klikkige kasti paremal ülaservas oleval ikoonil.
Pakkumist tehes on keelatud postitada enda kontaktandmeid (nimi, telefon, aadress jne). Me jälgime ja analüüsime pakkumisi, et vältida pettuseid ja reeglite rikkumisi.
Rikkumise puhul kasutajakonto blokeeritakse.