+ Lisa oma töö      

Otsid ehitajat "Maalritööd" valdkonnast?

Parima pakkumise ja teostaja leidmiseks lisa oma töö.

Korteri seinte ja lae pahteldus tööd

ID 61036

401 vaatamist

Prindi

  • check Pakkumiste tegemine
    kuni 02.06.2021
  • check Võitja valik kuni
    09.06.2021
  • 3 Töö teostamine
    ja hinnang
Hanke lõpp: K, 2. juuni, 2021
Maakond: Harjumaa
Linn: Tallinn
Tööde algus: E, 07. juuni, 2021 (Soovituslik)
Tööde lõpp: E, 14. juuni, 2021 (Soovituslik)
Ehitusmaterjalid: Töö tegija poolt
Soovin pakkumisi: Summa kogu projektile

Töö sisu

Mustamäe korteri seinte pahteldus. Lisaks lae puhastus, pahteldus ja värvimine.
Kõik seinad puhtaks tehtud tapeedist. Vaja teha jämepahtliga tasandus tööd ja pärast peenpahtel ning lihvimine. Põhimõtteliselt seinad valmis kuni kruntimiseni.
Laes esinevad praod on vaja korda teha, ära pahteldada ja kõikide tubade lagede värv. Välja arvatud vannituba.

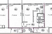
Korteri skeem lisatud.

Pildid, video ja failid

Hanke korraldaja: eraisik ID56875

Pakkumised

Pakkumisi kokku: 5

Ettevõte Summa Käibemaks Lisatud Vestlus
Kasutaja ikoon ID58808
Pakkuja profiil Väike nool paremale
12€ Sisaldab KM Sisaldab KM 31.05.2021 Vestlus (0)

Pakkumise kirjeldus:

hind koos materjaliga 12 eur m2

Kasutaja ikoon ID57986
Pakkuja profiil Väike nool paremale
2 500€ Ei ole KMKR Ei ole KMKR 01.06.2021 Vestlus (0)

Pakkumise kirjeldus:

Tere,

Teen hinnapakkumise kogu projektile siis koos materjaliga.

Seinad:
Kogu korteri katame nakkedispersiooniga, täidame suuremad mügarikud krohviga, pahteldus, lihv, krunt, parandused ja akrüül. (Põhitooni värvimist ei sisalda) ei lugenud teil seda kuskilt välja, sain aru, et soovite kuni krundini.

Laed:
Puhastame, parandused, lihv ja và ... Rohkem

Kasutaja ikoon ID42866
Pakkuja profiil Väike nool paremale
1 350€ Ei ole KMKR Ei ole KMKR 02.06.2021 Vestlus (0)

Pakkumise kirjeldus:

Hind sisaldab tööraha ja materjalid. Tööaeg 5-6päeva.

Kasutaja ikoon ID56019
Pakkuja profiil Väike nool paremale
2 300€ Ei ole KMKR Ei ole KMKR 02.06.2021 Vestlus (0)

Pakkumise kirjeldus:

Tere. Esitan meiepoolsed pakkumise antud tööle. Hind sisaldab nii tööd kui ka kõiki vajalike materjale. Tööde sees siis seinte/lagede parandused, lauspahteldus vajadusel nii peen kui jämeda pahtliga. Seinte ja lagede kruntimine ning lagede värvimine. Töö saame teostada tuleval nädalal.
Hinna kõikumine oleneb täpsemalt lagede seisukorrast kuna ... Rohkem

Kasutaja ikoon ID30846
Pakkuja profiil Väike nool paremale
1 980€ Sisaldab KM Sisaldab KM 02.06.2021 Vestlus (0)

Pakkumise kirjeldus:

Hinnapakkumine on koostatud vastavalt hankes soovitud töödele koos materjaliga. Kogemusi antud töödega üle 15 aasta. Tehtud töödele garantii.

Parimat,
Taavi

Küsimused hanke korraldajale

Küsimus: private ID52591   30.05.2021 21:48
väga raske pädevat pakkumist teha kui pole pilte olukorrast - tuleb eeldada, et asi on nii hull kui vähegi olla saab...

Teavita reeglite rikkumisest

Korraldaja vastus: 30.05.2021 21:54

Tere. Vabandan. Homme üritan pildid lisada.

Teavita reeglite rikkumisest

Küsimus: private ID57986   31.05.2021 00:22
Tere,

Küsiksin, et kas te siis värvimis töid ei soovi? Soovite ainult krundini? Ehk oskate kogu korteri pindala m2 ka öelda? Kergem kokku arvutada seinad ja laed (välja arvatud siis vannituba).


Ette tänades
K.

Teavita reeglite rikkumisest

Korraldaja vastus: 31.05.2021 22:29

Korteri pindala on 44,7 ruutmeetrit. Töödeldavat seina pinda on 107 ruutmeetrit. Lisatud ka pildid. Suures osas seinad head, aga köögi omad tahavad rohkem vaeva.

Teavita reeglite rikkumisest

Lisa küsimus

Lisa küsimus

Minu pakkumine

€

Reeglid

Pakkumise kirjelduse väli on mõeldud pakkumise detailsemaks lahti kirjutamiseks. Pikema teksti mugavaks sisestamiseks klikkige kasti paremal ülaservas oleval ikoonil.
Pakkumist tehes on keelatud postitada enda kontaktandmeid (nimi, telefon, aadress jne). Me jälgime ja analüüsime pakkumisi, et vältida pettuseid ja reeglite rikkumisi.
Rikkumise puhul kasutajakonto blokeeritakse.

 

Vanemad teated:

Vaata kõiki

Sellel veebilehel kasutatakse küpsiseid. Kasutamist jätkates nõustute küpsiste kasutamisega.

Sulge
 
Minu pakkumine
€

Reeglid

Pakkumise kirjelduse väli on mõeldud pakkumise detailsemaks lahti kirjutamiseks. Pikema teksti mugavaks sisestamiseks klikkige kasti paremal ülaservas oleval ikoonil.
Pakkumist tehes on keelatud postitada enda kontaktandmeid (nimi, telefon, aadress jne). Me jälgime ja analüüsime pakkumisi, et vältida pettuseid ja reeglite rikkumisi.
Rikkumise puhul kasutajakonto blokeeritakse.