+ Lisa oma töö      

Otsid ehitajat "Vundamenditööd" valdkonnast?

Parima pakkumise ja teostaja leidmiseks lisa oma töö.

Eramaja vundamendi soojustamine ja kinni katmine pinnasega

ID 60917

546 vaatamist

Prindi

  • check Pakkumiste tegemine
    kuni 30.05.2021
  • check Võitja valik kuni
    06.06.2021
  • 3 Töö teostamine
    ja hinnang
Hanke lõpp: P, 30. mai, 2021
Maakond: Harjumaa
Muu asula: Hüüru
Tööde algus: P, 01. august, 2021 (Soovituslik)
Tööde lõpp: T, 31. august, 2021 (Soovituslik)
Ehitusmaterjalid: Töö tegija poolt
Soovin pakkumisi: Summa kogu projektile

Töö sisu

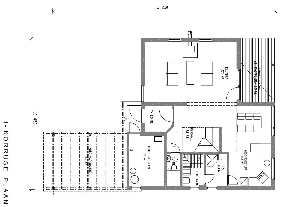
Eramaja vundamendi horisontaalne soojustamine, kaldega majast eemale ja katmine pinnasega. Vundament on madal ja enamjaolt katmata. Sooviks kogumaksumust, materjalid+töö. Lisan juurde 1.korruse plaani ja paar pilti.

Pildid, video ja failid

Hanke korraldaja: eraisik ID59644

Pakkumised

Pakkumisi kokku: 5

Ettevõte Summa Käibemaks Lisatud Vestlus
Kasutaja ikoon ID50594
Pakkuja profiil Väike nool paremale
7 000€ KM lisandub KM lisandub 28.05.2021 Vestlus (0)

Pakkumise kirjeldus:

Tere,

Hinnapakkumine koostatud vastavalt hanke sisule.

Lgp. Taivo

Kasutaja ikoon ID39222
Pakkuja profiil Väike nool paremale
3 620€ Sisaldab KM Sisaldab KM 28.05.2021 Vestlus (0)
Kasutaja ikoon ID8633
Pakkuja profiil Väike nool paremale
4 500€ Sisaldab KM Sisaldab KM 30.05.2021 Vestlus (0)
Kasutaja ikoon ID30846
Pakkuja profiil Väike nool paremale
4 800€ Sisaldab KM Sisaldab KM 30.05.2021 Vestlus (0)

Pakkumise kirjeldus:

Tere!
Hinnapakkumine hankes sisalduvale tööle koos materjalidega. Tehtud töödega kogemusi üle 15 aasta. Tehtud töödele garantii.

Parimat soovides,
Taavi

Kasutaja ikoon ID55746
Pakkuja profiil Väike nool paremale
3 500€ Ei ole KMKR Ei ole KMKR 30.05.2021 Vestlus (0)

Pakkumise kirjeldus:

Tere,

Oleme meeskond kes teab ja tunneb oma ala töid. Meie teenusega kaasneb ka garantii 2 aastat. Saame aidata ka teiste erinevate töödega kui teil peaks vaja minema.

Garanteeritult kindel kvaliteet!!

Parimate soovidega!!

Küsimused hanke korraldajale

Hanke korraldajale ei ole veel küsimusi esitatud.

Lisa küsimus

Lisa küsimus

Minu pakkumine

Reeglid

Pakkumise kirjelduse väli on mõeldud pakkumise detailsemaks lahti kirjutamiseks. Pikema teksti mugavaks sisestamiseks klikkige kasti paremal ülaservas oleval ikoonil.
Pakkumist tehes on keelatud postitada enda kontaktandmeid (nimi, telefon, aadress jne). Me jälgime ja analüüsime pakkumisi, et vältida pettuseid ja reeglite rikkumisi.
Rikkumise puhul kasutajakonto blokeeritakse.

 

Vanemad teated:

Vaata kõiki

Sellel veebilehel kasutatakse küpsiseid. Kasutamist jätkates nõustute küpsiste kasutamisega.

Sulge
 
Minu pakkumine

Reeglid

Pakkumise kirjelduse väli on mõeldud pakkumise detailsemaks lahti kirjutamiseks. Pikema teksti mugavaks sisestamiseks klikkige kasti paremal ülaservas oleval ikoonil.
Pakkumist tehes on keelatud postitada enda kontaktandmeid (nimi, telefon, aadress jne). Me jälgime ja analüüsime pakkumisi, et vältida pettuseid ja reeglite rikkumisi.
Rikkumise puhul kasutajakonto blokeeritakse.