+ Lisa oma töö      

Otsid ehitajat "Restaureerimistööd" valdkonnast?

Parima pakkumise ja teostaja leidmiseks lisa oma töö.

Elumaja akende ja uste restaureerimine

ID 60553

386 vaatamist

Prindi

  • check Pakkumiste tegemine
    kuni 21.05.2021
  • check Võitja valik kuni
    28.05.2021
  • 3 Töö teostamine
    ja hinnang
Hanke lõpp: R, 21. mai, 2021
Maakond: Tartumaa
Linn: Tartu
Tööde algus: P, 01. mai, 2022 (Soovituslik)
Tööde lõpp: T, 31. mai, 2022 (Soovituslik)
Ehitusmaterjalid: Töö tegija poolt
Soovin pakkumisi: Summa kogu projektile

Töö sisu

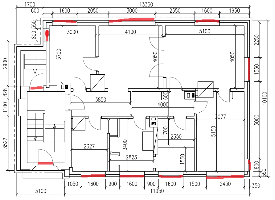
Vaja on restaureerida 2- korruselise elumaaja esimese korruse eluruumide aknad ning maja sissepääsu uksed. Lisatud joonisel on avad märgitud punase joonega. Restaureerimise käidus tuleks saavutada akende uueväärne välimus, hea tihedus ja paranenud soojapidavus.
Tegu on topelt raamiga akendega, mis avanevad sissepoole. Enamus aknaid kahe ruuduga nagu lisatud pildid. kas suuremat akent on kolme ruuduga, millest keskmine osa on kinnine ja äärmised avatavad. Miljööväärtullsiku ala nõuetest lähtuvalt akende välimise raami klaasimisel kasutada linaõlikitti ning ühekordne klaas, sisemisele aknaraamile on vaja soojapidavuse tõstmiseks paigaldada pakettklaas.

Pildid, video ja failid

Hanke korraldaja: eraisik ID62260

Pakkumised

Pakkumisi kokku: 1

Ettevõte Summa Käibemaks Lisatud Vestlus
Kasutaja ikoon ID59430
Pakkuja profiil Väike nool paremale
9 825€ KM lisandub KM lisandub 19.05.2021 Vestlus (0)

Küsimused hanke korraldajale

Küsimus: private ID53950   20.05.2021 19:49
Kas tuleb vahetada välja ka välimised klaasid? Vanad 3 mm uute 4 mm vastu.

Teavita reeglite rikkumisest

Korraldaja vastus: 20.05.2021 21:57

Mõned klaasid on katki, seal tuleks teha ka klaaside vahetus aga mujal võib jätta vana klaasi.

Teavita reeglite rikkumisest

Lisa küsimus

Lisa küsimus

Minu pakkumine

Reeglid

Pakkumise kirjelduse väli on mõeldud pakkumise detailsemaks lahti kirjutamiseks. Pikema teksti mugavaks sisestamiseks klikkige kasti paremal ülaservas oleval ikoonil.
Pakkumist tehes on keelatud postitada enda kontaktandmeid (nimi, telefon, aadress jne). Me jälgime ja analüüsime pakkumisi, et vältida pettuseid ja reeglite rikkumisi.
Rikkumise puhul kasutajakonto blokeeritakse.

 

Vanemad teated:

Vaata kõiki

Sellel veebilehel kasutatakse küpsiseid. Kasutamist jätkates nõustute küpsiste kasutamisega.

Sulge
 
Minu pakkumine

Reeglid

Pakkumise kirjelduse väli on mõeldud pakkumise detailsemaks lahti kirjutamiseks. Pikema teksti mugavaks sisestamiseks klikkige kasti paremal ülaservas oleval ikoonil.
Pakkumist tehes on keelatud postitada enda kontaktandmeid (nimi, telefon, aadress jne). Me jälgime ja analüüsime pakkumisi, et vältida pettuseid ja reeglite rikkumisi.
Rikkumise puhul kasutajakonto blokeeritakse.