+ Lisa oma töö      

Otsid ehitajat "Maalritööd" valdkonnast?

Parima pakkumise ja teostaja leidmiseks lisa oma töö.

Maalritöö ~1800-2100m2

ID 60466

565 vaatamist

Prindi

  • check Pakkumiste tegemine
    kuni 15.06.2021
  • check Võitja valik kuni
    22.06.2021
  • 3 Töö teostamine
    ja hinnang
Hanke lõpp: T, 15. juuni, 2021
Maakond: Saaremaa
Linn: Kuressaare
Tööde algus: N, 03. juuni, 2021 (Kohustuslik)
Tööde lõpp: K, 07. juuli, 2021 (Soovituslik)
Ehitusmaterjalid: Töö tellija poolt
Soovin pakkumisi: Tüki- või ühikuhinda

Töö sisu

Pakkuda kuressaares Maalritööd. Uued lihvitud fibo seinad mis tuleb pahteldada.
Materjali meie poolt, soovin ainult tööraha.
1 pahtel võrguga
2 pahtel
3 krunt
4 parandused
5 värv

Töö algus juuni esimene nädal!

Pakkumises välja tuua mitu Maalert korraga tööd teha saab, mitu m2 teha suudate ja kaua töö käib?
Omame tutvusid majutuse puhul (saab kõigest täpsemalt rääkida)
Võimaldame kuigi palju tööriistu.
Maksmine: kõik võimalused esindatud!

Pildid, video ja failid

Hanke korraldaja: eraisik ID59553

Pakkumised

Pakkumisi kokku: 0

Küsimused hanke korraldajale

Küsimus: private ID53958   17.05.2021 17:20
Tere,

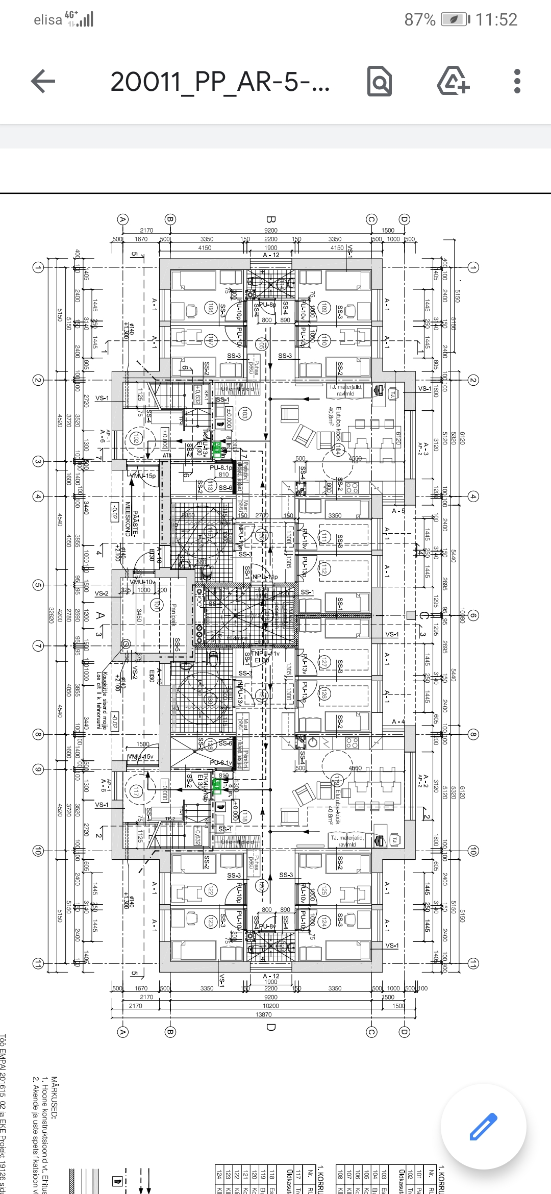
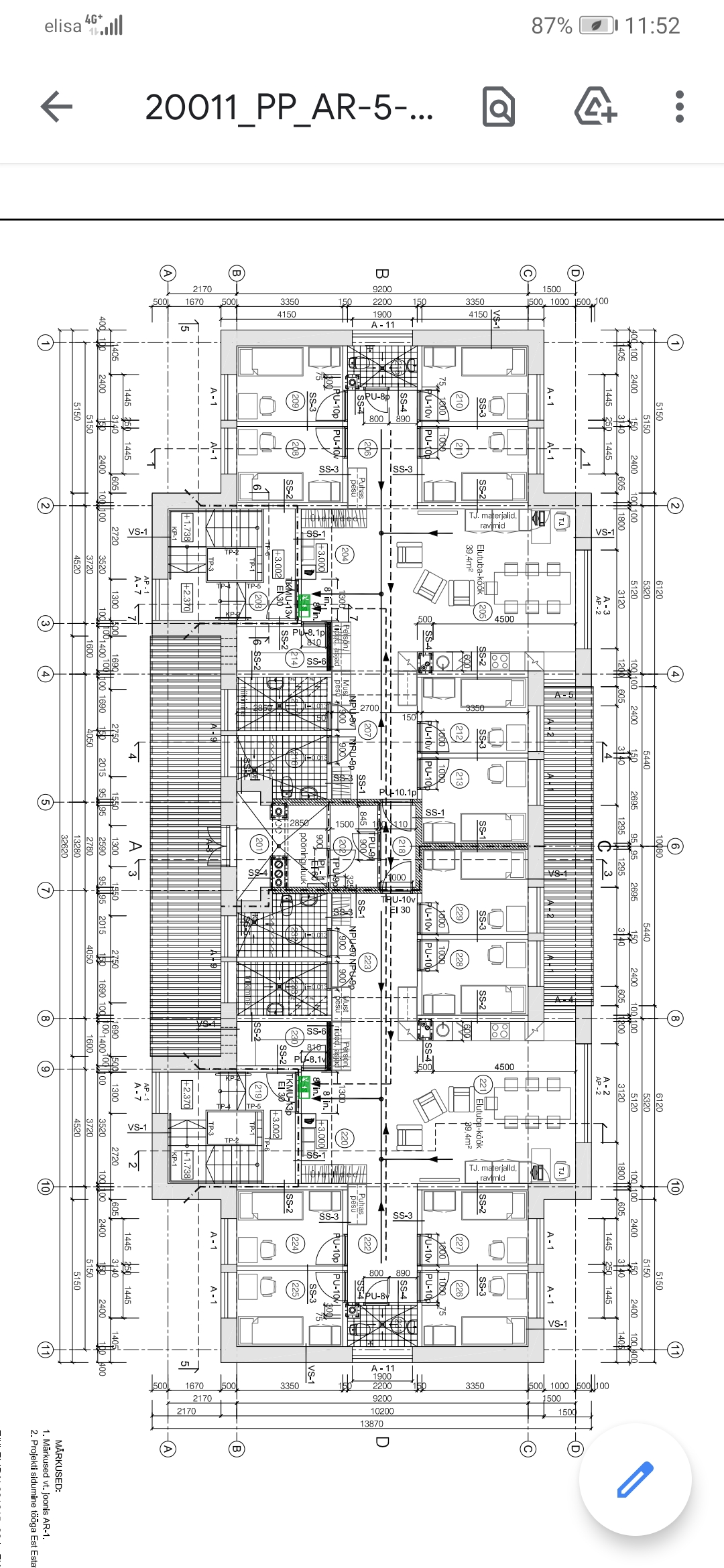
Millise hoonega on tegu (tööstushoone, korrusmaja...) ?
Kas on ainult fiboseinad või tuleb ka lagesid viimistleda, trepikojad ?
Kui kõrged on ruumid ja kas saaksite joonise lisada ruumide asetusest ja mõne pildi hetke olukorrast?

Teavita reeglite rikkumisest

Korraldaja vastus: 18.05.2021 11:58

Tere. Tegemist sotsiaalmajaga. Palju numbri tube.
2 korrust, lisan pildi plaanidest (üld plaanid).
Seina kõrgus kui ma ei eksi oli 2.3m.
Õigest olukorrast pilte kahjuks pole.

Teavita reeglite rikkumisest

Lisa küsimus

Lisa küsimus

Minu pakkumine

Reeglid

Pakkumise kirjelduse väli on mõeldud pakkumise detailsemaks lahti kirjutamiseks. Pikema teksti mugavaks sisestamiseks klikkige kasti paremal ülaservas oleval ikoonil.
Pakkumist tehes on keelatud postitada enda kontaktandmeid (nimi, telefon, aadress jne). Me jälgime ja analüüsime pakkumisi, et vältida pettuseid ja reeglite rikkumisi.
Rikkumise puhul kasutajakonto blokeeritakse.

 

Vanemad teated:

Vaata kõiki

Sellel veebilehel kasutatakse küpsiseid. Kasutamist jätkates nõustute küpsiste kasutamisega.

Sulge
 
Minu pakkumine

Reeglid

Pakkumise kirjelduse väli on mõeldud pakkumise detailsemaks lahti kirjutamiseks. Pikema teksti mugavaks sisestamiseks klikkige kasti paremal ülaservas oleval ikoonil.
Pakkumist tehes on keelatud postitada enda kontaktandmeid (nimi, telefon, aadress jne). Me jälgime ja analüüsime pakkumisi, et vältida pettuseid ja reeglite rikkumisi.
Rikkumise puhul kasutajakonto blokeeritakse.