+ Lisa oma töö      

Otsid ehitajat "Siseviimistlustööd" valdkonnast?

Parima pakkumise ja teostaja leidmiseks lisa oma töö.

Hange on lõppenud!

Võitjaks osutus kasutaja ID 52745

Parketi paigaldus ja liistud

ID 60222

600 vaatamist

Prindi

  • check Pakkumiste tegemine
    kuni 14.05.2021
  • check Võitja valik kuni
    21.05.2021
  • 3 Töö teostamine
    ja hinnang
Hanke lõpp: R, 14. mai, 2021
Maakond: Harjumaa
Muu asula: Tänassilma
Tööde algus: N, 20. mai, 2021 (Soovituslik)
Tööde lõpp: R, 28. mai, 2021 (Soovituslik)
Ehitusmaterjalid: Töö tellija poolt
Soovin pakkumisi: Summa kogu projektile

Töö sisu

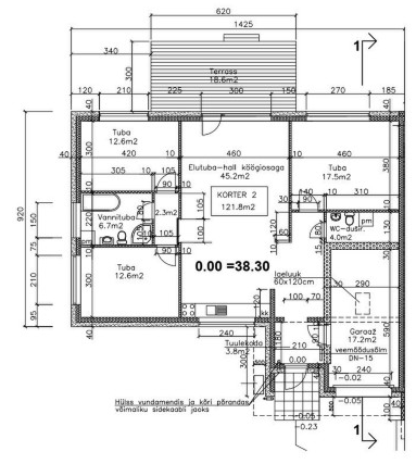
Parketi paigaldus ca 92,3m2, parkett ja alusvaip minu poolt, ülejäänud ehitaja poolt.

Joonis lisatud, kõik pörandad v.a garaaz/vannitoad pindalaga ~92,3m2

Lisaks vaja paigaldada liistud, liistud minu poolt. ca 100m.+-

Maja asub Saku/Laagri kandis, tallinnast ca 2km, esimene korrus.

Töödega saab alustada 20.05, tööd vaja lõpetada mida kiiremini seda parem, palun märkida tööde alustamise ja lõpetamise aeg.

Pildid, video ja failid

Hanke korraldaja: eraisik ID62049

Pakkumised

Pakkumisi kokku: 8

Ettevõte Summa Käibemaks Lisatud Vestlus
Kasutaja ikoon ID51140
Pakkuja profiil Väike nool paremale
1 100€ Sisaldab KM Sisaldab KM 11.05.2021 Vestlus (0)

Pakkumise kirjeldus:

Pakkumine parketi ja liistude paigaldusele.
Töödega saaks alustada 24.05 ja tööde kestvus ligikaudu 3-5 päeva

Kasutaja ikoon ID49238
Pakkuja profiil Väike nool paremale
1 000€ Sisaldab KM Sisaldab KM 11.05.2021 Vestlus (3)

Pakkumise kirjeldus:

Tere,

Hinnapakkumine sisaldab töötasu kirjeldatud töödele.
Alustada saaksime kohe.
Tööde kestvus maksimaalselt 3 päeva.

Parimat,

Mikk

Kasutaja ikoon ID61901
Pakkuja profiil Väike nool paremale
2 000€ Sisaldab KM Sisaldab KM 11.05.2021 Vestlus (0)

Pakkumise kirjeldus:

Vajadusel saame alustada 21.05 - ajakulu praegu raske hinnata.

Kasutaja ikoon ID59474
Pakkuja profiil Väike nool paremale
1 300€ Ei ole KMKR Ei ole KMKR 11.05.2021 Vestlus (0)
Kasutaja ikoon ID34611
Pakkuja profiil Väike nool paremale
730€ Ikoon kell KM lisandub KM lisandub 12.05.2021 Vestlus (0)
Kasutaja ikoon ID52745
Pakkuja profiil Väike nool paremale
980€ Ei ole KMKR Ei ole KMKR 12.05.2021 Vestlus (10)

Pakkumise kirjeldus:

Alustada saaks kuskil juuni esimesel poolel

Kasutaja ikoon ID50979
Pakkuja profiil Väike nool paremale
2 000€ Ei ole KMKR Ei ole KMKR 14.05.2021 Vestlus (0)

Pakkumise kirjeldus:

Leping,kvaliteet,garantii5aastat,ettemaksu ei soovi,km.ei lisandu

Kasutaja ikoon ID28645
Pakkuja profiil Väike nool paremale
1 500€ Ei ole KMKR Ei ole KMKR 14.05.2021 Vestlus (0)

Pakkumise kirjeldus:

Alustan kohe.

Küsimused hanke korraldajale

Küsimus: private ID59776   11.05.2021 17:03
Tere

Milline parkett ja liistud?

Teavita reeglite rikkumisest

Korraldaja vastus: 12.05.2021 13:06

Naturaalparkett, pole välja valitud. Puitliistud

Teavita reeglite rikkumisest

Küsimus: private ID47288   12.05.2021 09:20
Tere!

Minu teada vajavad need põrandad enne parketi paigaldamist tasandamist?

Teavita reeglite rikkumisest

Korraldaja vastus: 12.05.2021 13:06

Pörand tasandatakse enne.

Teavita reeglite rikkumisest

Lisa küsimus

Lisa küsimus

Minu pakkumine

Reeglid

Pakkumise kirjelduse väli on mõeldud pakkumise detailsemaks lahti kirjutamiseks. Pikema teksti mugavaks sisestamiseks klikkige kasti paremal ülaservas oleval ikoonil.
Pakkumist tehes on keelatud postitada enda kontaktandmeid (nimi, telefon, aadress jne). Me jälgime ja analüüsime pakkumisi, et vältida pettuseid ja reeglite rikkumisi.
Rikkumise puhul kasutajakonto blokeeritakse.

 

Teisi töid samas valdkonnas

Valdkonnas "Siseviimistlustööd" on 23 aktiivset tööd

Seinte värvimine

Asukoht: Harjumaa, Tallinn
Aega jäänud: 3h 43 min
Tehtud pakkumisi: 7

Seinte pahteldus ja värvimine

Asukoht: Harjumaa, Türisalu
Aega jäänud: 3p 3h
Tehtud pakkumisi: 7

Vanemad teated:

Vaata kõiki

Sellel veebilehel kasutatakse küpsiseid. Kasutamist jätkates nõustute küpsiste kasutamisega.

Sulge
 
Minu pakkumine

Reeglid

Pakkumise kirjelduse väli on mõeldud pakkumise detailsemaks lahti kirjutamiseks. Pikema teksti mugavaks sisestamiseks klikkige kasti paremal ülaservas oleval ikoonil.
Pakkumist tehes on keelatud postitada enda kontaktandmeid (nimi, telefon, aadress jne). Me jälgime ja analüüsime pakkumisi, et vältida pettuseid ja reeglite rikkumisi.
Rikkumise puhul kasutajakonto blokeeritakse.