+ Lisa oma töö      

Otsid ehitajat "Müüritööd" valdkonnast?

Parima pakkumise ja teostaja leidmiseks lisa oma töö.

Eramaja seinte ladumine

ID 60176

639 vaatamist

Prindi

  • check Pakkumiste tegemine
    kuni 24.05.2021
  • check Võitja valik kuni
    31.05.2021
  • 3 Töö teostamine
    ja hinnang
Hanke lõpp: E, 24. mai, 2021
Maakond: Harjumaa
Tööde algus: T, 01. juuni, 2021 (Soovituslik)
Tööde lõpp: E, 21. juuni, 2021 (Soovituslik)
Ehitusmaterjalid: Töö tellija poolt
Soovin pakkumisi: Summa kogu projektile

Töö sisu

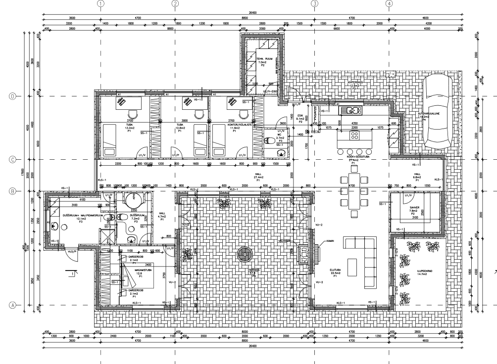
Eramaja seinte ladumine. Seinu ca 200-250rm Seina kõrgus 3200mm. Kiviks Lakka 400mm

Pildid, video ja failid

Hanke korraldaja: eraisik ID61963

Pakkumised

Pakkumisi kokku: 3

Ettevõte Summa Käibemaks Lisatud Vestlus
Kasutaja ikoon ID48843
Pakkuja profiil Väike nool paremale
7 500€ Sisaldab KM Sisaldab KM 10.05.2021 Vestlus (1)

Pakkumise kirjeldus:

Hind vastavalt hanke kirjeldusele. Olemas Lakka kivide ladumise kogemus, teadmised ja töövõtted.

Kasutaja ikoon ID58004
Pakkuja profiil Väike nool paremale
6 100€ Sisaldab KM Sisaldab KM 11.05.2021 Vestlus (8)

Pakkumise kirjeldus:

Tere

Antud hinnapakkumine on arvestatud 250m2 mahuga. Kui tegelik maht on väiksem või suurem siis sellest ka hind muutub.

Kasutaja ikoon ID55746
Pakkuja profiil Väike nool paremale
6 200€ Ei ole KMKR Ei ole KMKR 21.05.2021 Vestlus (0)

Pakkumise kirjeldus:

Tere,

Oleme meeskond kes teab ja tunneb oma ala töid. Meie teenusega kaasneb ka garantii 2 aastat. Saame aidata ka teiste erinevate töödega kui teil peaks vaja minema.

Parimate soovidega!!

Küsimused hanke korraldajale

Küsimus: private ID50821   11.05.2021 15:43
Tere
Kus kandis Harjumaal objekt asub?

Teavita reeglite rikkumisest

Korraldaja vastus: 11.05.2021 18:36

Tere!

Kose kandis!

Teavita reeglite rikkumisest

Lisa küsimus

Lisa küsimus

Minu pakkumine

Reeglid

Pakkumise kirjelduse väli on mõeldud pakkumise detailsemaks lahti kirjutamiseks. Pikema teksti mugavaks sisestamiseks klikkige kasti paremal ülaservas oleval ikoonil.
Pakkumist tehes on keelatud postitada enda kontaktandmeid (nimi, telefon, aadress jne). Me jälgime ja analüüsime pakkumisi, et vältida pettuseid ja reeglite rikkumisi.
Rikkumise puhul kasutajakonto blokeeritakse.

 

Teisi töid samas valdkonnas

Valdkonnas "Müüritööd" on 2 aktiivset tööd

Telliskivi seina taastamine, ehitus

Asukoht: Harjumaa, Kiisa
Aega jäänud: 2p 5h
Tehtud pakkumisi: 1

no-img Pilt puudub

Kivimaster

Asukoht: Harjumaa, Tallinn
Aega jäänud: 1p 5h
Tehtud pakkumisi: 0

Vanemad teated:

Vaata kõiki

Sellel veebilehel kasutatakse küpsiseid. Kasutamist jätkates nõustute küpsiste kasutamisega.

Sulge
 
Minu pakkumine

Reeglid

Pakkumise kirjelduse väli on mõeldud pakkumise detailsemaks lahti kirjutamiseks. Pikema teksti mugavaks sisestamiseks klikkige kasti paremal ülaservas oleval ikoonil.
Pakkumist tehes on keelatud postitada enda kontaktandmeid (nimi, telefon, aadress jne). Me jälgime ja analüüsime pakkumisi, et vältida pettuseid ja reeglite rikkumisi.
Rikkumise puhul kasutajakonto blokeeritakse.