+ Lisa oma töö      

Otsid ehitajat "Siseviimistlustööd" valdkonnast?

Parima pakkumise ja teostaja leidmiseks lisa oma töö.

Eramaja põranda plaatimine ja värvimistööd

ID 60130

421 vaatamist

Prindi

  • check Pakkumiste tegemine
    kuni 22.05.2021
  • check Võitja valik kuni
    29.05.2021
  • 3 Töö teostamine
    ja hinnang
Hanke lõpp: L, 22. mai, 2021
Maakond: Harjumaa
Muu asula: Harku
Tööde algus: T, 01. juuni, 2021 (Soovituslik)
Tööde lõpp: P, 05. september, 2021 (Soovituslik)
Ehitusmaterjalid: Töö tellija poolt
Soovin pakkumisi: Tüki- või ühikuhinda

Töö sisu

1. Köögimööbli osaline lahti võtmine ja tagasipanek (paigaldatud parketi peale)

2. Plaatimistööd
- vana parketi ja põrandaliistude eemaldamine elutoa-köögist ja koridorist
- pinna tasandus. Aluspind on betoon vesipõrandakütega.
- välisseina (fibo) ja põranda liitekoha pragude tihendamine
- plaatimine ja vuukimine. Sooviks on võimalikult kitsas vuuk (1-2mm) ja epoksiid vuugitäide. Plaadi mõõdud 120x20
- põrandaliistude paigaldus

3. Värvimistööd
- väiksete augude, pragude ja kasutusjälgede parandamine
- seinade ja lagede ülevärvivimine 1. korrusel

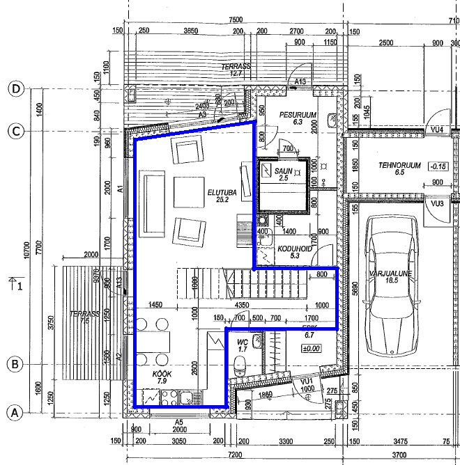
Plaaditav põrandapind kuni 40 m2 (märgitud sinisega maja plaanile)
Liistud u. 34 jm
Seinad u. 68 m2
Lagi u. 35 m2

Hinda võib pakkuda etappide kaupa.

Plaadid, vuugitäite, põrandaliistud ja värvid tellin ise. Tasandussegud ja muud abivahendid teenusepakkujalt.

Töö teostamise aeg suvel.

Pildid, video ja failid

Hanke korraldaja: eraisik ID42751

Pakkumised

Pakkumisi kokku: 2

Ettevõte Summa Käibemaks Lisatud Vestlus
Kasutaja ikoon ID46190
Pakkuja profiil Väike nool paremale
4 300€ KM lisandub KM lisandub 22.05.2021 Vestlus (0)

Pakkumise kirjeldus:

Tere,
* Köögimööbli osaline lahti võtmine ja tagasipanek - € 500.-
* vana parketi ja põrandaliistude eemaldamine, utiliseerimine - € 200.-
* pinna tasandus, pragude tihendamine - € 200.-
* plaatimine ja vuukimine 40 m2 x € 45.- = € 1800.- (mustadega materjalidega, ilma plaati ja vuuki maksumuseta)
* Liistud u. 34 jm x € 6.- = € 204 ... Rohkem

Kasutaja ikoon ID58217
Pakkuja profiil Väike nool paremale
4 000€ KM lisandub KM lisandub 22.05.2021 Vestlus (0)

Pakkumise kirjeldus:

Tere!

Pakkumine sisaldab ehitus-ja lammutusteenust, materjale ning ehitus-ja lammutusjääkide utiliseerimist. Täpsema hinnapakkumise saab teha peale objekti üle vaatamist. Töödega olema valmis alustama juuli esimeses pooles. Ettemaks läbirääkimiste küsimus.

Lugupidamisega,
Siim

Küsimused hanke korraldajale

Hanke korraldajale ei ole veel küsimusi esitatud.

Lisa küsimus

Lisa küsimus

Minu pakkumine

Reeglid

Pakkumise kirjelduse väli on mõeldud pakkumise detailsemaks lahti kirjutamiseks. Pikema teksti mugavaks sisestamiseks klikkige kasti paremal ülaservas oleval ikoonil.
Pakkumist tehes on keelatud postitada enda kontaktandmeid (nimi, telefon, aadress jne). Me jälgime ja analüüsime pakkumisi, et vältida pettuseid ja reeglite rikkumisi.
Rikkumise puhul kasutajakonto blokeeritakse.

 

Teisi töid samas valdkonnas

Valdkonnas "Siseviimistlustööd" on 25 aktiivset tööd

Korteri remont

Asukoht: Harjumaa, Muraste
Aega jäänud: 2p 10h
Tehtud pakkumisi: 15

no-img Pilt puudub

Laminaatparketi paigaldus

Asukoht: Harjumaa, Tallinn
Aega jäänud: 4p 10h
Tehtud pakkumisi: 8

Vanemad teated:

Vaata kõiki

Sellel veebilehel kasutatakse küpsiseid. Kasutamist jätkates nõustute küpsiste kasutamisega.

Sulge
 
Minu pakkumine

Reeglid

Pakkumise kirjelduse väli on mõeldud pakkumise detailsemaks lahti kirjutamiseks. Pikema teksti mugavaks sisestamiseks klikkige kasti paremal ülaservas oleval ikoonil.
Pakkumist tehes on keelatud postitada enda kontaktandmeid (nimi, telefon, aadress jne). Me jälgime ja analüüsime pakkumisi, et vältida pettuseid ja reeglite rikkumisi.
Rikkumise puhul kasutajakonto blokeeritakse.