+ Lisa oma töö      

Otsid ehitajat "Trepiehitus" valdkonnast?

Parima pakkumise ja teostaja leidmiseks lisa oma töö.

Hange on lõppenud!

Võitjaks osutus kasutaja ID 59917

Väli betoon trepi ehitus ja plaatimine

ID 60122

410 vaatamist

Prindi

  • check Pakkumiste tegemine
    kuni 10.05.2021
  • check Võitja valik kuni
    10.05.2021
  • 3 Töö teostamine
    ja hinnang
Hanke lõpp: E, 10. mai, 2021
Maakond: Harjumaa
Muu asula: Alliku
Tööde algus: E, 24. mai, 2021 (Soovituslik)
Tööde lõpp: E, 07. juuni, 2021 (Soovituslik)
Ehitusmaterjalid: Töö tegija poolt
Soovin pakkumisi: Summa kogu projektile

Töö sisu

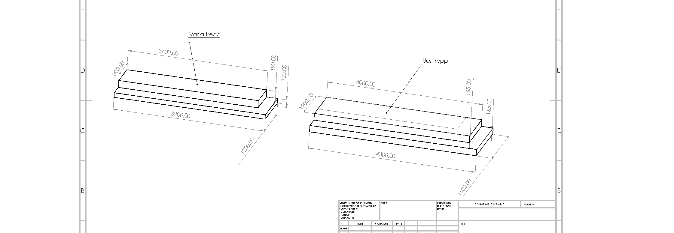
1. Olemasolevat betoon trepi vundamenti on vaja laiendada ja korrigeerida astmete sammu (2 astet) Referents mõõdud lisas

2. Astmete sisse paigaldada küttekaabel /matt (seina läbiviik olemas. ning elektrilised tööd eraldi ettevõtte poolt tellitud) Kokkuleppel - küttemati paigalduse ja tüübi vüib organiseerida tellija

3.Plaatimine. Plaat võiks olla 30 x 30 cm tumedama halli tooni

Pildid, video ja failid

Hanke korraldaja: ettevõte ID38018

Pakkumised

Pakkumisi kokku: 1

Ettevõte Summa Käibemaks Lisatud Vestlus
Kasutaja ikoon ID59917
Pakkuja profiil Väike nool paremale
2 100€ Ei ole KMKR Ei ole KMKR 10.05.2021 Vestlus (0)

Pakkumise kirjeldus:

võimalk saata fotod valatud treppidest

Küsimused hanke korraldajale

Hanke korraldajale ei ole veel küsimusi esitatud.

Lisa küsimus

Lisa küsimus

Minu pakkumine

Reeglid

Pakkumise kirjelduse väli on mõeldud pakkumise detailsemaks lahti kirjutamiseks. Pikema teksti mugavaks sisestamiseks klikkige kasti paremal ülaservas oleval ikoonil.
Pakkumist tehes on keelatud postitada enda kontaktandmeid (nimi, telefon, aadress jne). Me jälgime ja analüüsime pakkumisi, et vältida pettuseid ja reeglite rikkumisi.
Rikkumise puhul kasutajakonto blokeeritakse.

 

Vanemad teated:

Vaata kõiki

Sellel veebilehel kasutatakse küpsiseid. Kasutamist jätkates nõustute küpsiste kasutamisega.

Sulge
 
Minu pakkumine

Reeglid

Pakkumise kirjelduse väli on mõeldud pakkumise detailsemaks lahti kirjutamiseks. Pikema teksti mugavaks sisestamiseks klikkige kasti paremal ülaservas oleval ikoonil.
Pakkumist tehes on keelatud postitada enda kontaktandmeid (nimi, telefon, aadress jne). Me jälgime ja analüüsime pakkumisi, et vältida pettuseid ja reeglite rikkumisi.
Rikkumise puhul kasutajakonto blokeeritakse.