+ Lisa oma töö      

Otsid ehitajat "Katusetööd" valdkonnast?

Parima pakkumise ja teostaja leidmiseks lisa oma töö.

Viilkatuse ehitus ja vahetus

ID 59806

473 vaatamist

Prindi

  • check Pakkumiste tegemine
    kuni 02.06.2021
  • check Võitja valik kuni
    09.06.2021
  • 3 Töö teostamine
    ja hinnang
Hanke lõpp: K, 2. juuni, 2021
Maakond: Harjumaa
Tööde algus: K, 30. juuni, 2021 (Soovituslik)
Tööde lõpp: P, 31. oktoober, 2021 (Soovituslik)
Ehitusmaterjalid: Töö tellija poolt
Soovin pakkumisi: Summa kogu projektile

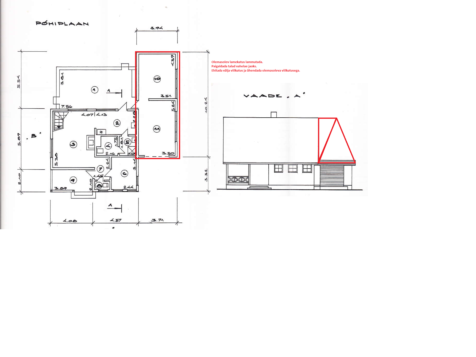
Töö sisu

Soov on garaaži/abihoone pealne väljaehitada.
Olemasolev lamekatus vaja lammutada ja paigaldada talda vahelea jaoks. Ehitada uus viilkatus.
Lisaks vahetada olemasolev maja viilkatus. Katusekatteks soovin eterniiti. Mõlemad katused vaja ka soojustada.
Olemasolev katus on lainepapp (eterniidi väilimusega). Seest kaetud voodrilauaga.
Võib pakkuda ka projekti uue katuse kohta, et vallast ehitusluba taotleda.

Pildid, video ja failid

Hanke korraldaja: eraisik ID59161

Pakkumised

Pakkumisi kokku: 1

Ettevõte Summa Käibemaks Lisatud Vestlus
Kasutaja ikoon ID61901
Pakkuja profiil Väike nool paremale
23 000€ Sisaldab KM Sisaldab KM 30.05.2021 Vestlus (0)

Küsimused hanke korraldajale

Hanke korraldajale ei ole veel küsimusi esitatud.

Lisa küsimus

Lisa küsimus

Minu pakkumine

Reeglid

Pakkumise kirjelduse väli on mõeldud pakkumise detailsemaks lahti kirjutamiseks. Pikema teksti mugavaks sisestamiseks klikkige kasti paremal ülaservas oleval ikoonil.
Pakkumist tehes on keelatud postitada enda kontaktandmeid (nimi, telefon, aadress jne). Me jälgime ja analüüsime pakkumisi, et vältida pettuseid ja reeglite rikkumisi.
Rikkumise puhul kasutajakonto blokeeritakse.

 

Teisi töid samas valdkonnas

Valdkonnas "Katusetööd" on 9 aktiivset tööd

no-img Pilt puudub

Käidava katuse PVC 54m2

Asukoht: Harjumaa, Muraste
Aega jäänud: 4p 7h
Tehtud pakkumisi: 3

Suvila

Asukoht: Pärnumaa, Eametsa
Aega jäänud: 7h 54 min
Tehtud pakkumisi: 2

Vanemad teated:

Vaata kõiki

Sellel veebilehel kasutatakse küpsiseid. Kasutamist jätkates nõustute küpsiste kasutamisega.

Sulge
 
Minu pakkumine

Reeglid

Pakkumise kirjelduse väli on mõeldud pakkumise detailsemaks lahti kirjutamiseks. Pikema teksti mugavaks sisestamiseks klikkige kasti paremal ülaservas oleval ikoonil.
Pakkumist tehes on keelatud postitada enda kontaktandmeid (nimi, telefon, aadress jne). Me jälgime ja analüüsime pakkumisi, et vältida pettuseid ja reeglite rikkumisi.
Rikkumise puhul kasutajakonto blokeeritakse.