+ Lisa oma töö      

Otsid ehitajat "Katusetööd" valdkonnast?

Parima pakkumise ja teostaja leidmiseks lisa oma töö.

Soovin lamekatuse hinnapakkumist.

ID 59642

437 vaatamist

Prindi

  • check Pakkumiste tegemine
    kuni 02.05.2021
  • check Võitja valik kuni
    09.05.2021
  • 3 Töö teostamine
    ja hinnang
Hanke lõpp: P, 2. mai, 2021
Maakond: Läänemaa
Muu asula: Lääne-Nigula
Tööde algus: K, 30. juuni, 2021 (Soovituslik)
Tööde lõpp: L, 10. juuli, 2021 (Soovituslik)
Ehitusmaterjalid: Töö tellija poolt
Soovin pakkumisi: Summa kogu projektile

Töö sisu

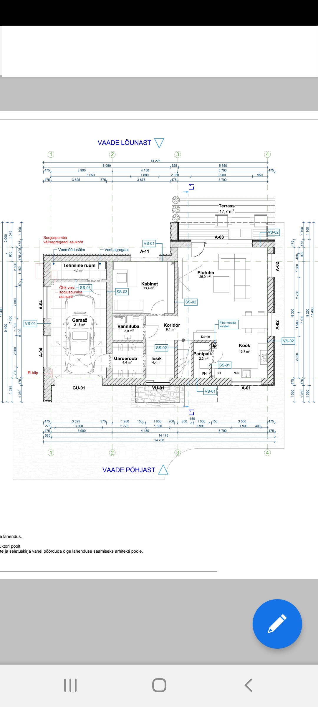
Soovin lamekatuse hinnapakkumist koos materjaliga 110m2 katuse pinda. Katuse aluseid on paneel.
Projekti saadan eraldi meilili huvilisele.

Pildid, video ja failid

Hanke korraldaja: eraisik ID61695

Pakkumised

Pakkumisi kokku: 2

Ettevõte Summa Käibemaks Lisatud Vestlus
Kasutaja ikoon ID50648
Pakkuja profiil Väike nool paremale
3 500€ Ei ole KMKR Ei ole KMKR 30.04.2021 Vestlus (0)

Pakkumise kirjeldus:

Pvc lamekatuse paigaldus ja tõsted ja läbiviigud, töislahendus ilma parapeti plekkideta.
Soojustus ja selle paigaldus eraldi

Paksem pvc mis peab kauem vastu 500 eur lisaks

Kasutaja ikoon ID35157
Pakkuja profiil Väike nool paremale
1 000€ Ei ole KMKR Ei ole KMKR 02.05.2021 Vestlus (0)

Pakkumise kirjeldus:

Tere. Täpsem pakkumine peale objekti ja projektiga tutvumist. Võimalus pakkuda nii PVC kui SBS lahendust.
Küsimustele vastame meeleldi vestlus rubriigis.
Lugupidamisega.

Küsimused hanke korraldajale

Küsimus: private ID54031   30.04.2021 07:16
Tere.Sooviks projekti näha

Teavita reeglite rikkumisest

Korraldaja vastus:
Hanke korraldaja ei ole küsimusele veel vastanud

Küsimus: private ID53460   30.04.2021 15:52
Tere

Sooviksin projekti, kuna raske hinda teha, kui ei tea kas tuleb soojustus( Kui palju soojustust)? Mis moodi kalded tulevad, või on kalded juba tehtud põhja peale?

Lugupidamisega
Tiit

Teavita reeglite rikkumisest

Korraldaja vastus:
Hanke korraldaja ei ole küsimusele veel vastanud

Lisa küsimus

Lisa küsimus

Minu pakkumine

Reeglid

Pakkumise kirjelduse väli on mõeldud pakkumise detailsemaks lahti kirjutamiseks. Pikema teksti mugavaks sisestamiseks klikkige kasti paremal ülaservas oleval ikoonil.
Pakkumist tehes on keelatud postitada enda kontaktandmeid (nimi, telefon, aadress jne). Me jälgime ja analüüsime pakkumisi, et vältida pettuseid ja reeglite rikkumisi.
Rikkumise puhul kasutajakonto blokeeritakse.

 

Teisi töid samas valdkonnas

Valdkonnas "Katusetööd" on 9 aktiivset tööd

no-img Pilt puudub

Käidava katuse PVC 54m2

Asukoht: Harjumaa, Muraste
Aega jäänud: 4p 7h
Tehtud pakkumisi: 3

Suvila

Asukoht: Pärnumaa, Eametsa
Aega jäänud: 7h 45 min
Tehtud pakkumisi: 2

Vanemad teated:

Vaata kõiki

Sellel veebilehel kasutatakse küpsiseid. Kasutamist jätkates nõustute küpsiste kasutamisega.

Sulge
 
Minu pakkumine

Reeglid

Pakkumise kirjelduse väli on mõeldud pakkumise detailsemaks lahti kirjutamiseks. Pikema teksti mugavaks sisestamiseks klikkige kasti paremal ülaservas oleval ikoonil.
Pakkumist tehes on keelatud postitada enda kontaktandmeid (nimi, telefon, aadress jne). Me jälgime ja analüüsime pakkumisi, et vältida pettuseid ja reeglite rikkumisi.
Rikkumise puhul kasutajakonto blokeeritakse.