+ Lisa oma töö      

Otsid ehitajat "Vundamenditööd" valdkonnast?

Parima pakkumise ja teostaja leidmiseks lisa oma töö.

Vundamendi ehitus

ID 59585

697 vaatamist

Prindi

  • check Pakkumiste tegemine
    kuni 29.05.2021
  • check Võitja valik kuni
    05.06.2021
  • 3 Töö teostamine
    ja hinnang
Hanke lõpp: L, 29. mai, 2021
Maakond: Lääne-Virumaa
Linn: Kunda
Tööde algus: P, 01. august, 2021 (Soovituslik)
Tööde lõpp: P, 15. august, 2021 (Soovituslik)
Ehitusmaterjalid: Töö tellija poolt
Soovin pakkumisi: Summa kogu projektile

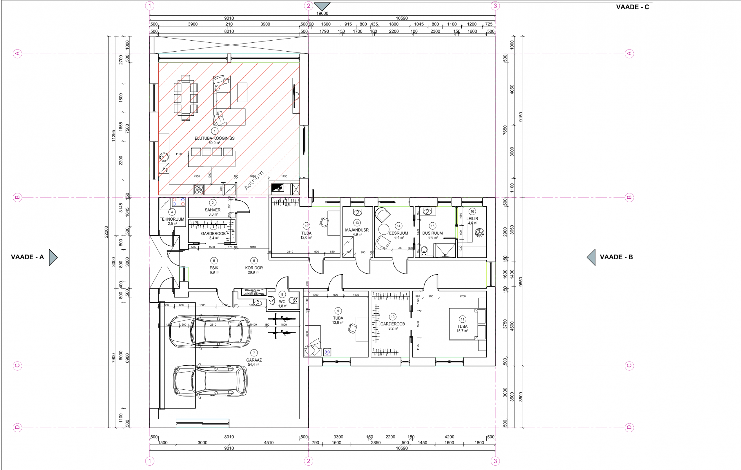
Töö sisu

Plaatvundamendi ehitus.
- Pinnase koorimine ja liiv tellija poolt.
- Tööde teostaja ehitab plaatvundamendi alates liiva tihendamisest kuni plaadi viimistlemiseni.
- Plaadi sees on põrandaküte, armeering vastavalt projektile ja kanalisatsiooni torud. -
- Tarbeveetorud põrandaplaadi sees.
- Hanke võitja poolt materjalid ja töövahendid.

Pildid, video ja failid

Hanke korraldaja: eraisik ID60252

Pakkumised

Pakkumisi kokku: 3

Ettevõte Summa Käibemaks Lisatud Vestlus
Kasutaja ikoon ID57033
Pakkuja profiil Väike nool paremale
42 192€ Sisaldab KM Sisaldab KM 29.04.2021 Vestlus (0)

Pakkumise kirjeldus:

tere .
töö kiire ja kvaliteetne.
töödele garantii

Kasutaja ikoon ID57167
Pakkuja profiil Väike nool paremale
43 200€ KM lisandub KM lisandub 04.05.2021 Vestlus (0)

Pakkumise kirjeldus:

Pakkumine koostatud vastavalt esitatud infole

Kasutaja ikoon ID2942
Pakkuja profiil Väike nool paremale
41 500€ Sisaldab KM Sisaldab KM 11.05.2021 Vestlus (4)

Pakkumise kirjeldus:

Tere.
kui vaja võin saata detailsema hinnapakkumise ! see on mul enda planketi peal. Kundasse teinud kolm vundamenti ja ka maja.
Tervitustega,

Küsimused hanke korraldajale

Hanke korraldajale ei ole veel küsimusi esitatud.

Lisa küsimus

Lisa küsimus

Minu pakkumine

Reeglid

Pakkumise kirjelduse väli on mõeldud pakkumise detailsemaks lahti kirjutamiseks. Pikema teksti mugavaks sisestamiseks klikkige kasti paremal ülaservas oleval ikoonil.
Pakkumist tehes on keelatud postitada enda kontaktandmeid (nimi, telefon, aadress jne). Me jälgime ja analüüsime pakkumisi, et vältida pettuseid ja reeglite rikkumisi.
Rikkumise puhul kasutajakonto blokeeritakse.

 

Vanemad teated:

Vaata kõiki

Sellel veebilehel kasutatakse küpsiseid. Kasutamist jätkates nõustute küpsiste kasutamisega.

Sulge
 
Minu pakkumine

Reeglid

Pakkumise kirjelduse väli on mõeldud pakkumise detailsemaks lahti kirjutamiseks. Pikema teksti mugavaks sisestamiseks klikkige kasti paremal ülaservas oleval ikoonil.
Pakkumist tehes on keelatud postitada enda kontaktandmeid (nimi, telefon, aadress jne). Me jälgime ja analüüsime pakkumisi, et vältida pettuseid ja reeglite rikkumisi.
Rikkumise puhul kasutajakonto blokeeritakse.