+ Lisa oma töö      

Otsid ehitajat "Üldehitus" valdkonnast?

Parima pakkumise ja teostaja leidmiseks lisa oma töö.

Pööningu eluruumideks ümberehitus

ID 59543

392 vaatamist

Prindi

  • check Pakkumiste tegemine
    kuni 28.05.2021
  • check Võitja valik kuni
    31.05.2021
  • 3 Töö teostamine
    ja hinnang
Hanke lõpp: R, 28. mai, 2021
Maakond: Viljandimaa
Linn: Viljandi
Tööde algus: T, 01. juuni, 2021 (Soovituslik)
Tööde lõpp: T, 31. august, 2021 (Soovituslik)
Ehitusmaterjalid: Töö tegija poolt
Soovin pakkumisi: Summa kogu projektile

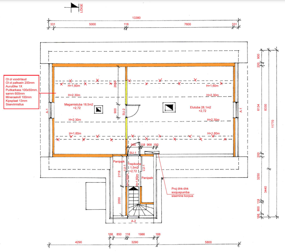
Töö sisu

Pakkumist sooviks ilma siseviimistluseta ehk kuni osb ja kipsini.
Tööde nimekiri:
- Põranda karkass, soojustus ja OSB-ga katmine.
- Katusealuse soojustamine (tuuletõke, vill, aurutõke, kips).
- Lae karkass ja soojustus .
- Uute katusepennide paigaldus.
- Akende paigaldus (2tk).
- Siseuste paigaldus (2tk).
- Elektritööd (kilp ja kaablite vedamine).
- Vaheseina ehitus.

Pildid, video ja failid

Hanke korraldaja: eraisik ID55657

Pakkumised

Pakkumisi kokku: 0

Küsimused hanke korraldajale

Küsimus: private ID58440   28.04.2021 16:24
Tere
Millal on plaanis töödega pihta hakata?

Teavita reeglite rikkumisest

Korraldaja vastus: 28.04.2021 16:43

Kindlat kuupäeva paigas ei ole, kõik oleneb pakkumisest.

Teavita reeglite rikkumisest

Lisa küsimus

Lisa küsimus

Minu pakkumine

Reeglid

Pakkumise kirjelduse väli on mõeldud pakkumise detailsemaks lahti kirjutamiseks. Pikema teksti mugavaks sisestamiseks klikkige kasti paremal ülaservas oleval ikoonil.
Pakkumist tehes on keelatud postitada enda kontaktandmeid (nimi, telefon, aadress jne). Me jälgime ja analüüsime pakkumisi, et vältida pettuseid ja reeglite rikkumisi.
Rikkumise puhul kasutajakonto blokeeritakse.

 

Teisi töid samas valdkonnas

Valdkonnas "Üldehitus" on 28 aktiivset tööd

Maja värvimine

Asukoht: Harjumaa, Saue
Aega jäänud: 2p 9h
Tehtud pakkumisi: 5

Terassi õlitamine, 13,7 ruutu

Asukoht: Harjumaa, Saue
Aega jäänud: 5p 9h
Tehtud pakkumisi: 5

Vanemad teated:

Vaata kõiki

Sellel veebilehel kasutatakse küpsiseid. Kasutamist jätkates nõustute küpsiste kasutamisega.

Sulge
 
Minu pakkumine

Reeglid

Pakkumise kirjelduse väli on mõeldud pakkumise detailsemaks lahti kirjutamiseks. Pikema teksti mugavaks sisestamiseks klikkige kasti paremal ülaservas oleval ikoonil.
Pakkumist tehes on keelatud postitada enda kontaktandmeid (nimi, telefon, aadress jne). Me jälgime ja analüüsime pakkumisi, et vältida pettuseid ja reeglite rikkumisi.
Rikkumise puhul kasutajakonto blokeeritakse.