+ Lisa oma töö      

Otsid ehitajat "Korterite remont" valdkonnast?

Parima pakkumise ja teostaja leidmiseks lisa oma töö.

Korteri kapitaalremont

ID 59542

567 vaatamist

Prindi

  • check Pakkumiste tegemine
    kuni 05.05.2021
  • check Võitja valik kuni
    10.05.2021
  • 3 Töö teostamine
    ja hinnang
Hanke lõpp: K, 5. mai, 2021
Maakond: Harjumaa
Linn: Tallinn
Tööde algus: T, 01. juuni, 2021 (Soovituslik)
Tööde lõpp: P, 01. august, 2021 (Soovituslik)
Ehitusmaterjalid: Töö tegija poolt
Soovin pakkumisi: Summa kogu projektile

Töö sisu

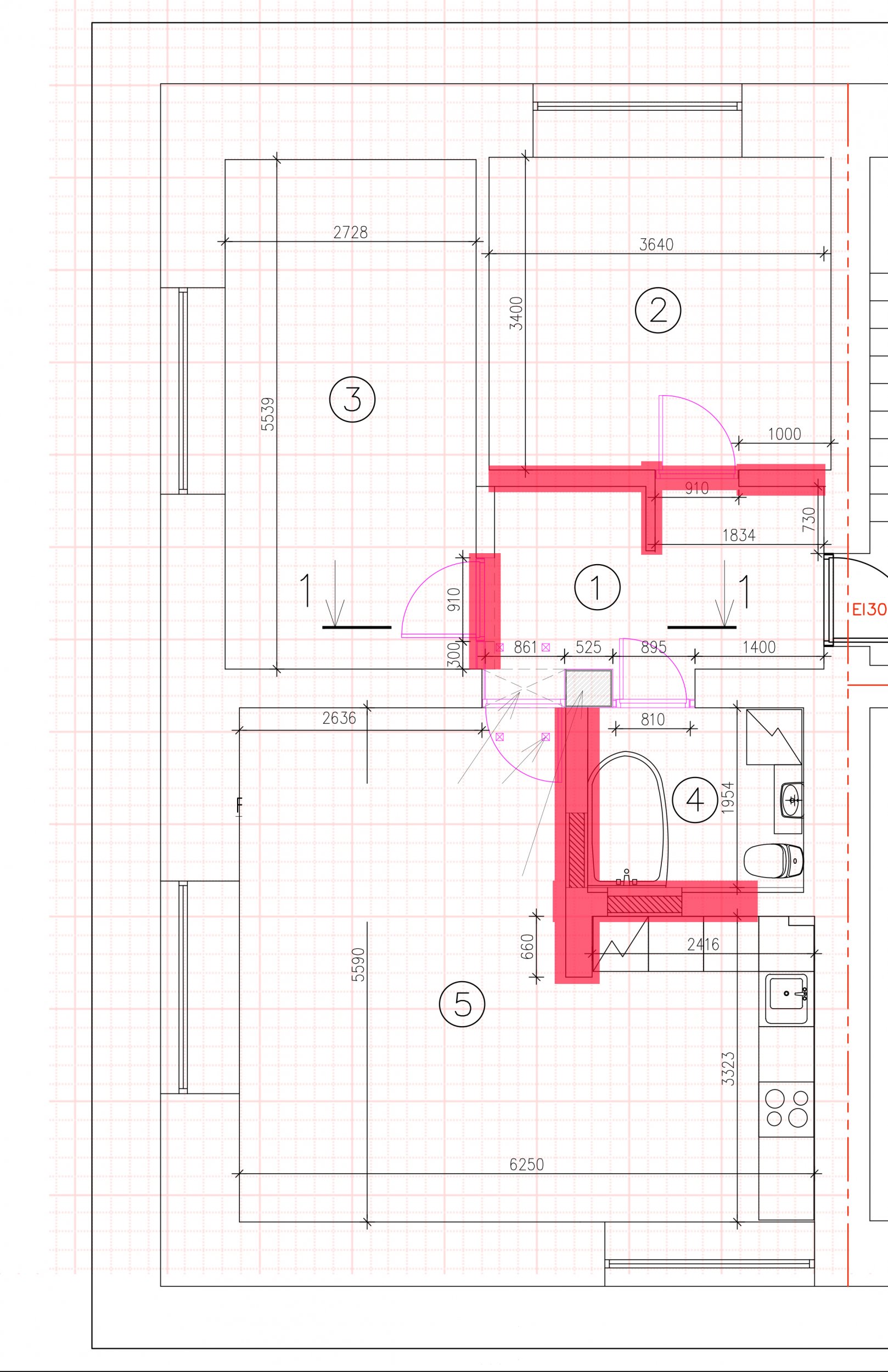
Korter on hetkel tehtud nn "puhtaks" ning oleks vaja uuesti üles ehitada - panna uued põrandad, ehitada tagasi vaheseinad, teha kandvasse seina ukseava (vastav projekt selleks on loodud arhitekti ning inseneri poolt, mida saaksin jagada edasise konsultatsiooni puhul; joonisel 1 märgitud rohelisega).
Natukene detailsemalt (väga oodatud on teie poolsed ideed ning nõustamised):
- Põrandad: sooviks kogu korterisse, v.a vannituba ning väike osa välisukse ees, parketti. Lahendus peaks olema ka võimalikult helikindel. Vannituppa sooviks plaatpõrandat koos soojustusega, välisukse ette samuti plaate (joonisel 1 märgitud sinise kastiga).
- Seinad: Vannitoa ümber vist tuleks laduda seinad kivist ja seestpoolt plaatida, esiku ning magamistoa vaheline sein võib olla kipsist, kuid samuti võimalikult tugeva heliisolatsiooniga. Olemasolevad seinad tuleks ilusaks ja siledaks teha ning lõppkihiks sooviksime värvida.
- Laed: lagedes on hetkel eelmisest laest jäänud puitkonstruktsioonid. Nendele tahaks peale panna kipsi. Esikusse sooviks taasluua ka laealuse panipaiga (joonisel 1 märgitud kollasega).

Elektrikutööde jaoks on meil omal meister olemas, kõiki ülejäänud töid sooviks teie poolt.

Lisatud mõned pildid. Joonisel 1 on soovitud tulemuse plaan; Joonisel 2 on korteri hetke situatsioon (seinad mis on hetkel puudu on ära markeeritud); lisaks ka paar pilti korteri hetke olukorrast.
Korteri pindala peale uue ukseava loomist on 70,1 m2, plaanil pidevpunane ruut = 1 m2; Korter asub kolmandal korrusel.

Pildid, video ja failid

Hanke korraldaja: eraisik ID61638

Pakkumised

Pakkumisi kokku: 4

Ettevõte Summa Käibemaks Lisatud Vestlus
Kasutaja ikoon ID59474
Pakkuja profiil Väike nool paremale
12 700€ Ei ole KMKR Ei ole KMKR 28.04.2021 Vestlus (0)
Kasutaja ikoon ID60984
Pakkuja profiil Väike nool paremale
10 780€ Sisaldab KM Sisaldab KM 29.04.2021 Vestlus (0)
Kasutaja ikoon ID58844
Pakkuja profiil Väike nool paremale
12 000€ Sisaldab KM Sisaldab KM 30.04.2021 Vestlus (0)
Kasutaja ikoon ID60879
Pakkuja profiil Väike nool paremale
12 500€ KM lisandub KM lisandub 05.05.2021 Vestlus (0)

Küsimused hanke korraldajale

Hanke korraldajale ei ole veel küsimusi esitatud.

Lisa küsimus

Lisa küsimus

Minu pakkumine

Reeglid

Pakkumise kirjelduse väli on mõeldud pakkumise detailsemaks lahti kirjutamiseks. Pikema teksti mugavaks sisestamiseks klikkige kasti paremal ülaservas oleval ikoonil.
Pakkumist tehes on keelatud postitada enda kontaktandmeid (nimi, telefon, aadress jne). Me jälgime ja analüüsime pakkumisi, et vältida pettuseid ja reeglite rikkumisi.
Rikkumise puhul kasutajakonto blokeeritakse.

 

Teisi töid samas valdkonnas

Valdkonnas "Korterite remont" on 2 aktiivset tööd

Vannitoa lampide paigaldus + erinevad pisiparandused korteris

Asukoht: Harjumaa, Tallinn
Aega jäänud: 1p 14h
Tehtud pakkumisi: 3

Korteri kapitaalremont ja ümberehitus (täielik siseviimistlus + elektritööd)

Asukoht: Järvamaa
Aega jäänud: 12p 14h
Tehtud pakkumisi: 0

Vanemad teated:

Vaata kõiki

Sellel veebilehel kasutatakse küpsiseid. Kasutamist jätkates nõustute küpsiste kasutamisega.

Sulge
 
Minu pakkumine

Reeglid

Pakkumise kirjelduse väli on mõeldud pakkumise detailsemaks lahti kirjutamiseks. Pikema teksti mugavaks sisestamiseks klikkige kasti paremal ülaservas oleval ikoonil.
Pakkumist tehes on keelatud postitada enda kontaktandmeid (nimi, telefon, aadress jne). Me jälgime ja analüüsime pakkumisi, et vältida pettuseid ja reeglite rikkumisi.
Rikkumise puhul kasutajakonto blokeeritakse.