+ Lisa oma töö      

Otsid ehitajat "Betoonitööd" valdkonnast?

Parima pakkumise ja teostaja leidmiseks lisa oma töö.

Põrandatööd

ID 59537

641 vaatamist

Prindi

  • check Pakkumiste tegemine
    kuni 14.05.2021
  • check Võitja valik kuni
    21.05.2021
  • 3 Töö teostamine
    ja hinnang
Hanke lõpp: R, 14. mai, 2021
Maakond: Läänemaa
Muu asula: Paralepa
Tööde algus: E, 24. mai, 2021 (Soovituslik)
Tööde lõpp: E, 14. juuni, 2021 (Soovituslik)
Ehitusmaterjalid: Töö tegija poolt
Soovin pakkumisi: Summa kogu projektile

Töö sisu

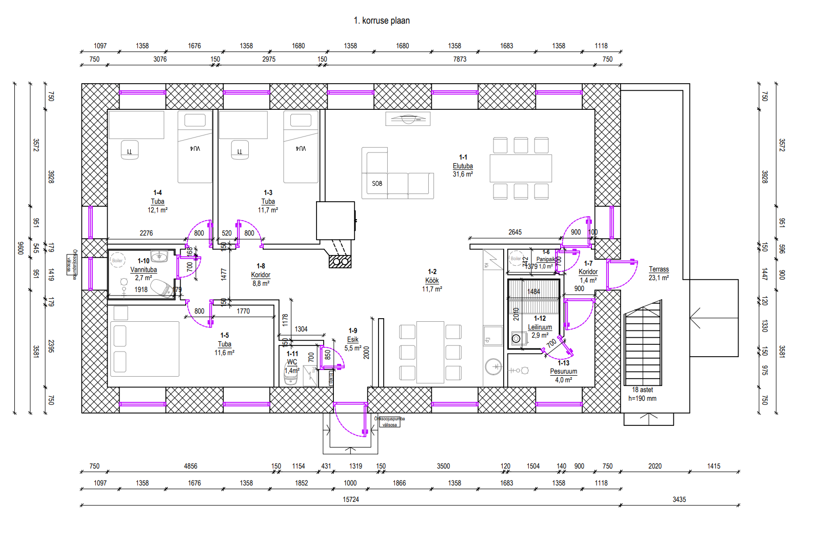
Eramaja põranda rekonstrueerimine. Soov valada majale uus põrand - 115 m2.

Põrand on praegu ehitatud tuulutatavana laagide peale, laagide vahed on täidetud kergkruusaga ja peale paigaldatud OSB plaat ja laminaatparkett. Majas sees on siseviimistlus tehtud. Tööde teostamise käigus on soov säilitada võimalikult palju olemasolevaid kergkonstruktsioonil seinu. Eelnevalt võtan ise üles parketi ja eemaldan siseuksed ja kogu mööbli. Torutööde ja kommunikatsioonide vedamiseks on kohalik ettevõte olemas. Vannitubasid/saunasid on kaks - kokku kolm trappi, mille jaoks on vaja ka kalded valada. Palun hinnapakkumisi järgnevatele töö etappidele:

1) Põranda OSB plaatide ja laagide üles võtmine ning kergkruusa eemaldamine ja utiliseerimine.
2) Põranda ettevalmistamine valamiseks - täide, tihendamine, EPS, kile, armatuur, põrandaküttetoru vedamine, servalint ja kõik vajaminev kvaliteetse põranda valamiseks.
3) Põranda valamine 115m2, minimaalselt 8 cm kiht. Pinna töötlemine siledaks.

Pildid, video ja failid

Hanke korraldaja: eraisik ID58562

Pakkumised

Pakkumisi kokku: 1

Ettevõte Summa Käibemaks Lisatud Vestlus
Kasutaja ikoon ID50979
Pakkuja profiil Väike nool paremale
8 000€ Ei ole KMKR Ei ole KMKR 14.05.2021 Vestlus (5)

Pakkumise kirjeldus:

Pakkumine ei sisalda materjale,vajadusele tarne meilt

Küsimused hanke korraldajale

Küsimus: private ID60110   05.05.2021 21:21
Tere,

Kas ja millal oleks võimalik objektiga tutvuma tulla?

Teavita reeglite rikkumisest

Korraldaja vastus: 06.05.2021 10:24

Tere! On ikka võimalik tutvuda, palun jätke oma kontakt. Lisan hankele rohkem pilte.

Teavita reeglite rikkumisest

Küsimus: private ID56040   13.05.2021 22:37
Tere
Soovitaks kaaluda kipsivalu (nagu põrandavalukeskuses) koos soojustuse ja küttekontuuriga,
betooniga samad omadused
õhem valukiht,
ei vaja armaruuri,
isetasanduv,
Terv.

Teavita reeglite rikkumisest

Korraldaja vastus:
Hanke korraldaja ei ole küsimusele veel vastanud

Lisa küsimus

Lisa küsimus

Minu pakkumine

Reeglid

Pakkumise kirjelduse väli on mõeldud pakkumise detailsemaks lahti kirjutamiseks. Pikema teksti mugavaks sisestamiseks klikkige kasti paremal ülaservas oleval ikoonil.
Pakkumist tehes on keelatud postitada enda kontaktandmeid (nimi, telefon, aadress jne). Me jälgime ja analüüsime pakkumisi, et vältida pettuseid ja reeglite rikkumisi.
Rikkumise puhul kasutajakonto blokeeritakse.

 

Teisi töid samas valdkonnas

Valdkonnas "Betoonitööd" on 5 aktiivset tööd

Betoonist platsi valamine väljas.

Asukoht: Harjumaa, Luige
Aega jäänud: 17h 29 min
Tehtud pakkumisi: 4

Betoonpõranda valu

Asukoht: Harjumaa, Jõelähtme
Aega jäänud: 2p 17h
Tehtud pakkumisi: 3

Vanemad teated:

Vaata kõiki

Sellel veebilehel kasutatakse küpsiseid. Kasutamist jätkates nõustute küpsiste kasutamisega.

Sulge
 
Minu pakkumine

Reeglid

Pakkumise kirjelduse väli on mõeldud pakkumise detailsemaks lahti kirjutamiseks. Pikema teksti mugavaks sisestamiseks klikkige kasti paremal ülaservas oleval ikoonil.
Pakkumist tehes on keelatud postitada enda kontaktandmeid (nimi, telefon, aadress jne). Me jälgime ja analüüsime pakkumisi, et vältida pettuseid ja reeglite rikkumisi.
Rikkumise puhul kasutajakonto blokeeritakse.