+ Lisa oma töö      

Otsid ehitajat "Korterite remont" valdkonnast?

Parima pakkumise ja teostaja leidmiseks lisa oma töö.

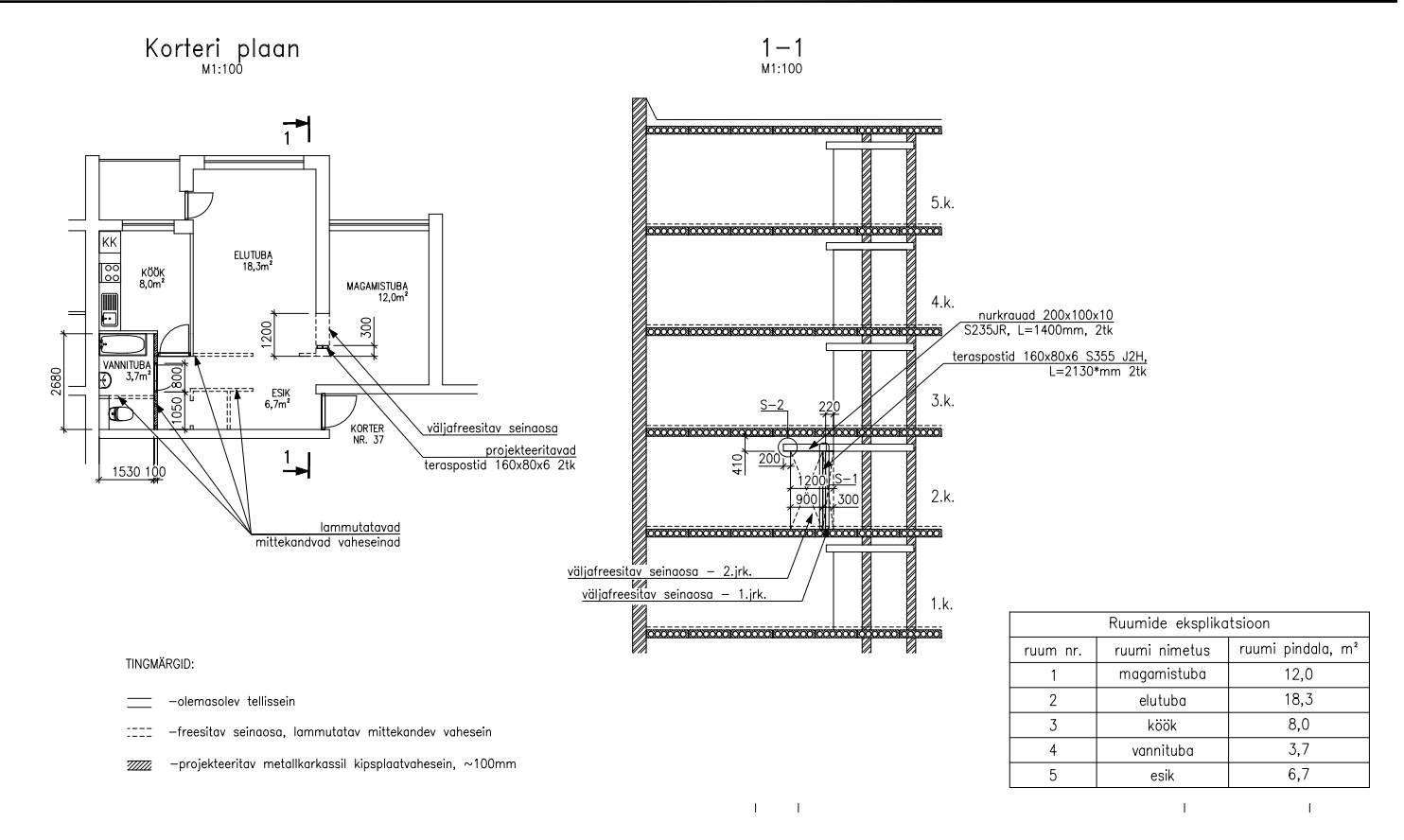
Ukseava liigutamine kandvas seinas

ID 59145

581 vaatamist

Prindi

  • check Pakkumiste tegemine
    kuni 05.05.2021
  • check Võitja valik kuni
    05.05.2021
  • 3 Töö teostamine
    ja hinnang
Hanke lõpp: K, 5. mai, 2021
Maakond: Harjumaa
Tööde algus: K, 21. aprill, 2021 (Soovituslik)
Tööde lõpp: E, 31. mai, 2021 (Soovituslik)
Ehitusmaterjalid: Töö tegija poolt
Soovin pakkumisi: Summa kogu projektile

Töö sisu

Töövõtjal peab olema on MTR-is vastav registreering.

1. Enne tööde algust teha selgeks, kus jooksevad elektrijuhtmed. Elektrijuhtmed, mis lõigatakse
läbi, tuleb välja võtta ja vooluvõrgust eraldada.
2. Toestada laed ajutise tugistusega kahelt poolt ava sammuga ca ~700-1000mm.
3. Enne ava freesimist toestada olemasolev r/b sillus ajutise tugistusega.
4. Paigaldatavate teraskonstruktsioonide asukohas krohv maha taguda.
5. Teraselemendid puhastada roostest ja kruntida.
6. Ava lõikamisel tuleb kasutada vibratsioonivaba tehnoloogiat (teemantsaagimine) ja minimeerida
naaberkorteritesse ja koridori kanduvat müra ja tolmu. Freesimistöid võib teostada
ehitusettevõte mis omab vastavat registreeringut Majandustegevuse Registris.
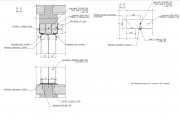
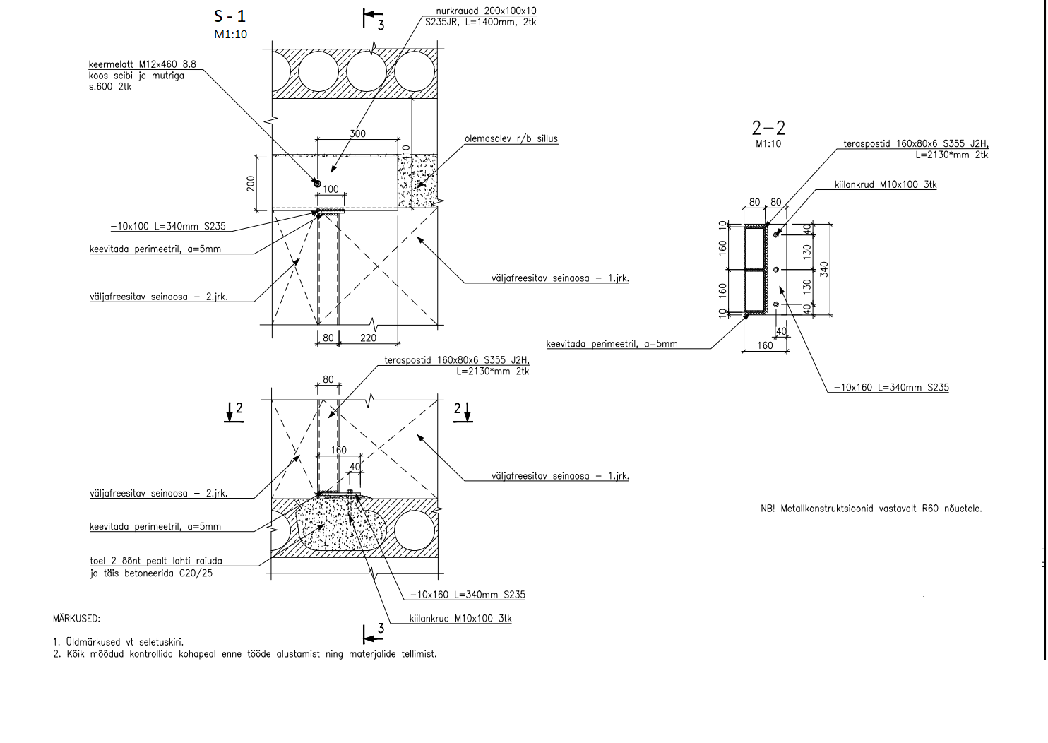
7. Freesida ühel pool seina horisontaalvagu esimese nurkraua paigaldamiseks.
8. Freesida teisele poole seina horisontaalvagu teise nurkraua paigaldamiseks.
9. Freesida välja 300mm seina (vt joonis ST-003, Lõige 1-1).
10. Paigaldada teraspostid.
11. Paigaldada esimene nurkraud ning keevitada see kinni teraspostile toetuspinnal.
12. Paigaldada teine nurkraud ning keevitada see kinni teraspostile toetuspinnal.
13. Nurkrauad peavad olema tihedalt kiilutud vastu toetuspinda kogu toetuspinna ulatuses.
14. Nurkrauad ühendada omavahel keermelattidega M12x460 8.8 s.600mm.
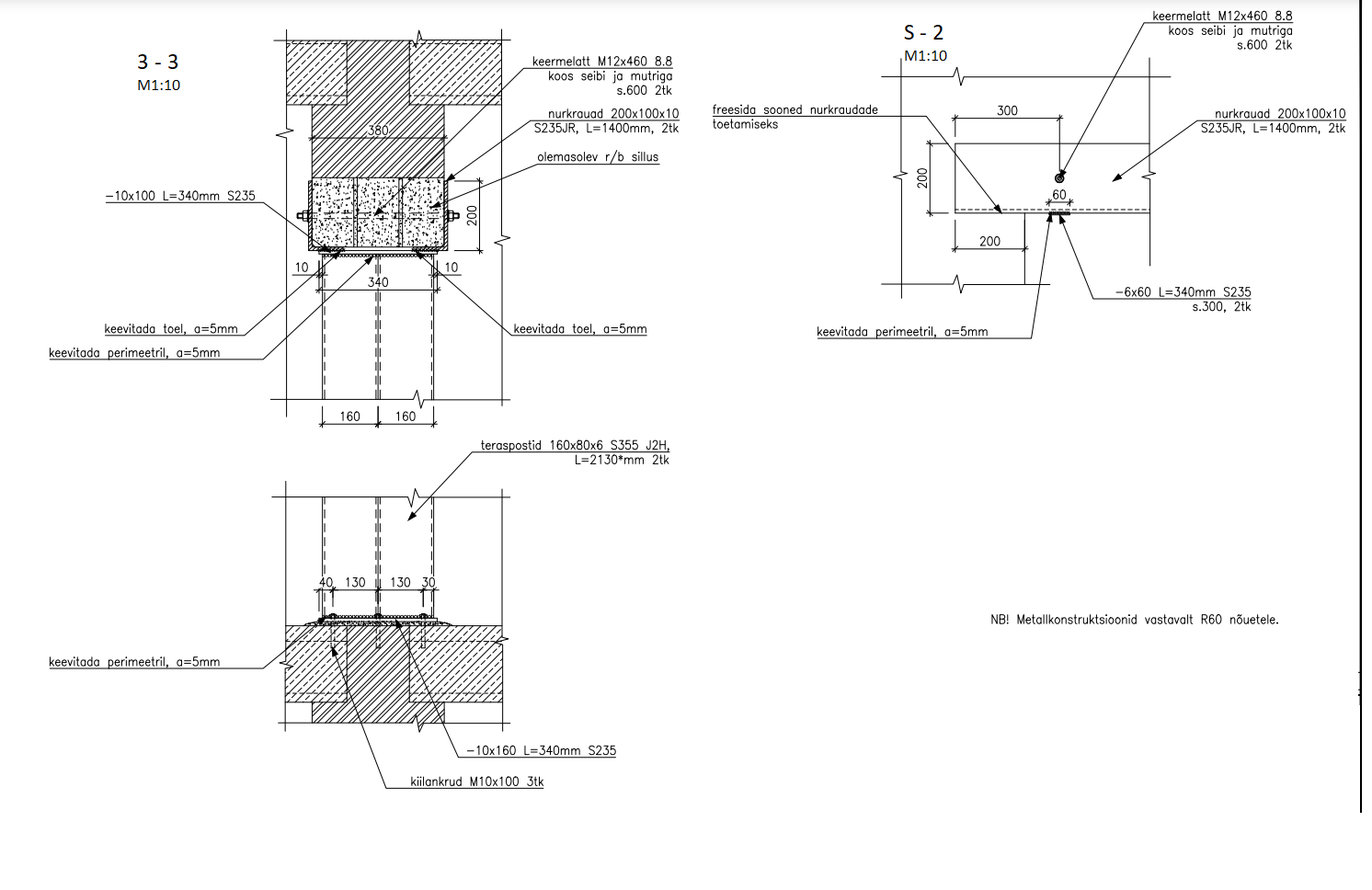
15. Freesida välja ülejäänud seinaosa (vt joonis EK-7-01 Lõige 1-1).
16. Keevitada nurkraudadele ühenduslapid -6x60 l=340mm. Keevise kõrgus a=5mm.
17. Ajutised tugistused võib eemaldada.
18. Tugevduste teraskonstruktsioonide tulele avatud pinnad tuleb katta tulekaitse kipsplaatidega või
tulekaitsevärviga vastavalt tulepüsivusnõudele R60.
19. Materjalide ajutine ladustamine toimub korteris. Ehitustööde lõpetamisel tuleb ehitusjäätmed
koristada, sorteerida ja käidelda vastavalt jäätmekäitluse eeskirjadele.
Jäätmevedu on lubatud ainult selleks ette nähtud kohtadesse.
20. Korteri rekonstrueerimisega seoses tekkinud ehituspraht, ladustatakse 4m3
konteinerisse, mida
paigaldatakse asfalteeritud teel korteriühistu prügikonteinerite kõrvale. Peale tööde lõpetamist,
ehituspraht viib välja firma, mis omab ehitusprahi väljaveo litsensi

Pildid, video ja failid

Hanke korraldaja: eraisik ID61362

Pakkumised

Pakkumisi kokku: 0

Küsimused hanke korraldajale

Hanke korraldajale ei ole veel küsimusi esitatud.

Lisa küsimus

Lisa küsimus

Minu pakkumine

Reeglid

Pakkumise kirjelduse väli on mõeldud pakkumise detailsemaks lahti kirjutamiseks. Pikema teksti mugavaks sisestamiseks klikkige kasti paremal ülaservas oleval ikoonil.
Pakkumist tehes on keelatud postitada enda kontaktandmeid (nimi, telefon, aadress jne). Me jälgime ja analüüsime pakkumisi, et vältida pettuseid ja reeglite rikkumisi.
Rikkumise puhul kasutajakonto blokeeritakse.

 

Teisi töid samas valdkonnas

Valdkonnas "Korterite remont" on 2 aktiivset tööd

Vannitoa lampide paigaldus + erinevad pisiparandused korteris

Asukoht: Harjumaa, Tallinn
Aega jäänud: 1p 19h
Tehtud pakkumisi: 3

Korteri kapitaalremont ja ümberehitus (täielik siseviimistlus + elektritööd)

Asukoht: Järvamaa
Aega jäänud: 12p 19h
Tehtud pakkumisi: 0

Vanemad teated:

Vaata kõiki

Sellel veebilehel kasutatakse küpsiseid. Kasutamist jätkates nõustute küpsiste kasutamisega.

Sulge
 
Minu pakkumine

Reeglid

Pakkumise kirjelduse väli on mõeldud pakkumise detailsemaks lahti kirjutamiseks. Pikema teksti mugavaks sisestamiseks klikkige kasti paremal ülaservas oleval ikoonil.
Pakkumist tehes on keelatud postitada enda kontaktandmeid (nimi, telefon, aadress jne). Me jälgime ja analüüsime pakkumisi, et vältida pettuseid ja reeglite rikkumisi.
Rikkumise puhul kasutajakonto blokeeritakse.