+ Lisa oma töö      

Otsid ehitajat "Katusetööd" valdkonnast?

Parima pakkumise ja teostaja leidmiseks lisa oma töö.

Eterniitkatuse vahetamine

ID 58886

474 vaatamist

Prindi

  • check Pakkumiste tegemine
    kuni 29.04.2021
  • check Võitja valik kuni
    06.05.2021
  • 3 Töö teostamine
    ja hinnang
Hanke lõpp: N, 29. aprill, 2021
Maakond: Tartumaa
Muu asula: Vissi
Tööde algus: K, 01. september, 2021 (Soovituslik)
Tööde lõpp: N, 30. september, 2021 (Soovituslik)
Ehitusmaterjalid: Töö tegija poolt
Soovin pakkumisi: Tüki- või ühikuhinda

Töö sisu

- Vana eterniitkatuse ja roovituse utiliseerimine;
- Uue roovituse paigaldamine;
- Uue eterniitkatuse paigaldamine;
- Katuseluukide ja vihmaveesüsteemi paigaldamine;
- Vintskappide laudise vahetamine;
- Vintskappide ja sarikavahede soojustamine;
- Ühe korstna parandamine.

Hinnapakkumises peaksid kajastuma kõik vajaminevad ehitusmaterjalid ning nende transport Tartumaale.

Pildid, video ja failid

Hanke korraldaja: eraisik ID60833

Pakkumised

Pakkumisi kokku: 1

Ettevõte Summa Käibemaks Lisatud Vestlus
Kasutaja ikoon ID47387
Pakkuja profiil Väike nool paremale
125 320€ KM lisandub KM lisandub 18.04.2021 Vestlus (1)

Küsimused hanke korraldajale

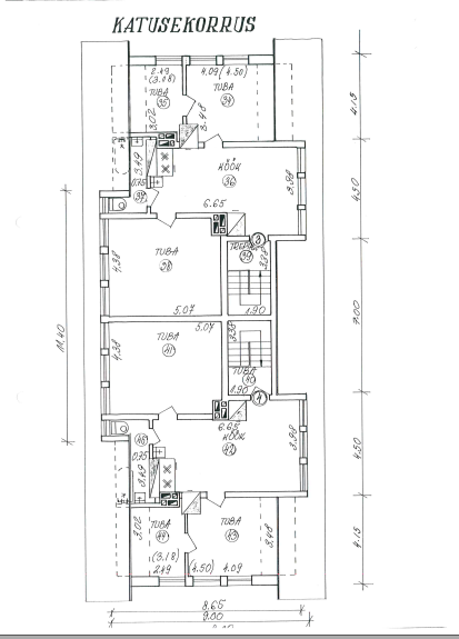
Küsimus: private ID58440   16.04.2021 06:43
Tere

Mis on katuse mõõdud?

Teavita reeglite rikkumisest

Korraldaja vastus: 16.04.2021 10:48

Tere
Katusekorruse plaani järgi paistab, et katuse mõõdud on 25 x 10 meetrit.

Teavita reeglite rikkumisest

Lisa küsimus

Lisa küsimus

Minu pakkumine

Reeglid

Pakkumise kirjelduse väli on mõeldud pakkumise detailsemaks lahti kirjutamiseks. Pikema teksti mugavaks sisestamiseks klikkige kasti paremal ülaservas oleval ikoonil.
Pakkumist tehes on keelatud postitada enda kontaktandmeid (nimi, telefon, aadress jne). Me jälgime ja analüüsime pakkumisi, et vältida pettuseid ja reeglite rikkumisi.
Rikkumise puhul kasutajakonto blokeeritakse.

 

Teisi töid samas valdkonnas

Valdkonnas "Katusetööd" on 9 aktiivset tööd

no-img Pilt puudub

Käidava katuse PVC 54m2

Asukoht: Harjumaa, Muraste
Aega jäänud: 4p 7h
Tehtud pakkumisi: 3

Suvila

Asukoht: Pärnumaa, Eametsa
Aega jäänud: 7h 59 min
Tehtud pakkumisi: 2

Vanemad teated:

Vaata kõiki

Sellel veebilehel kasutatakse küpsiseid. Kasutamist jätkates nõustute küpsiste kasutamisega.

Sulge
 
Minu pakkumine

Reeglid

Pakkumise kirjelduse väli on mõeldud pakkumise detailsemaks lahti kirjutamiseks. Pikema teksti mugavaks sisestamiseks klikkige kasti paremal ülaservas oleval ikoonil.
Pakkumist tehes on keelatud postitada enda kontaktandmeid (nimi, telefon, aadress jne). Me jälgime ja analüüsime pakkumisi, et vältida pettuseid ja reeglite rikkumisi.
Rikkumise puhul kasutajakonto blokeeritakse.