+ Lisa oma töö      

Otsid ehitajat "Vundamenditööd" valdkonnast?

Parima pakkumise ja teostaja leidmiseks lisa oma töö.

Suitsusauna vundamendi ehitus

ID 58830

494 vaatamist

Prindi

  • check Pakkumiste tegemine
    kuni 22.04.2021
  • check Võitja valik kuni
    27.04.2021
  • 3 Töö teostamine
    ja hinnang
Hanke lõpp: N, 22. aprill, 2021
Maakond: Lääne-Virumaa
Tööde algus: L, 01. mai, 2021 (Soovituslik)
Tööde lõpp: R, 14. mai, 2021 (Soovituslik)
Ehitusmaterjalid: Töö tegija poolt
Soovin pakkumisi: Summa kogu projektile

Töö sisu

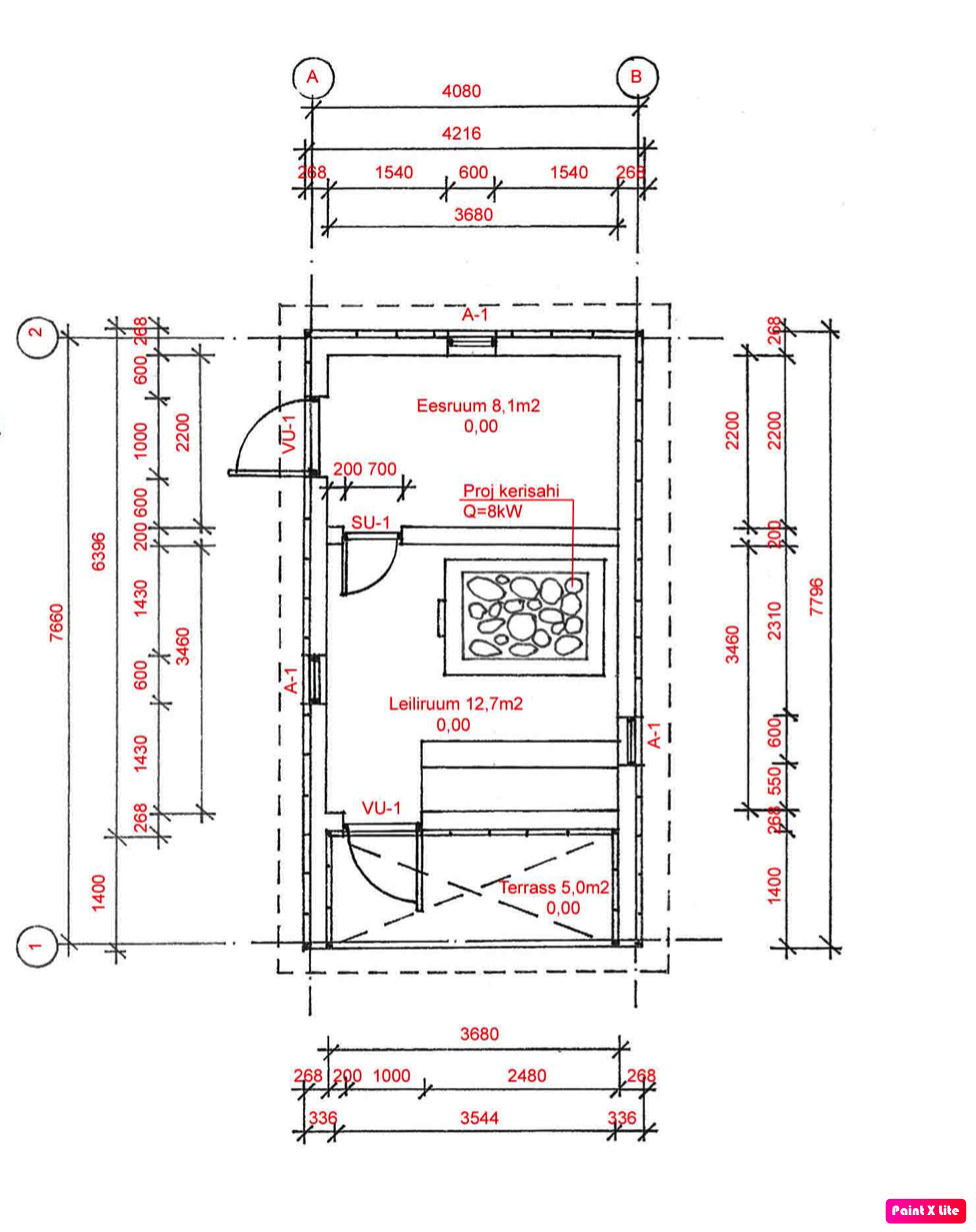
Suitsusauna alla plaatvundamendi ehitus.

Suitsusauna lõige ja põhiplaan lisatud pakkumise manusesse.

Pakkumises tuleb arvestada järgmiste asjadega (mis pole projektis kirjas):

1. Kogu palgialusele osale tuleb 50-100mm kõrgendus (kõrgus sõltub kasutatavast materjalist), et vältida vee voolamist palgivöö alla;

2. Teiseks pesuruumis tuleb pikk trapp soonega. Ehk pesuruumi põrand tuleb kaldega trapi poole;

3.. Terrassi all olev betoon on maja perimeetri poole kaldu, et vihmase ilma korral vesi jookseks eemale;

4. Ahju aluse betooni valamisel arvestada sinna tuleva ca 5 t ahjuga;

5. Valatud betooni lõppviimistlus peab olema sile (kopteriga üle lastud.

Pildid, video ja failid

Hanke korraldaja: eraisik ID30476

Pakkumised

Pakkumisi kokku: 1

Ettevõte Summa Käibemaks Lisatud Vestlus
Kasutaja ikoon ID60083
Pakkuja profiil Väike nool paremale
8 000€ Ei ole KMKR Ei ole KMKR 15.04.2021 Vestlus (0)

Pakkumise kirjeldus:

Tere,

Pakkumine vastavalt küsitule, oleme puhtust hoidvad, töökad ja suurte oskustega meeskond.

Peale hanke võitjaks kuulutamist alustamine 10 tööpäeva jooksul.

Töödele leping ja 2 aastat garantii.
Hinnangud on meil samuti head!!

Parimate soovidega!!

Küsimused hanke korraldajale

Hanke korraldajale ei ole veel küsimusi esitatud.

Lisa küsimus

Lisa küsimus

Minu pakkumine

Reeglid

Pakkumise kirjelduse väli on mõeldud pakkumise detailsemaks lahti kirjutamiseks. Pikema teksti mugavaks sisestamiseks klikkige kasti paremal ülaservas oleval ikoonil.
Pakkumist tehes on keelatud postitada enda kontaktandmeid (nimi, telefon, aadress jne). Me jälgime ja analüüsime pakkumisi, et vältida pettuseid ja reeglite rikkumisi.
Rikkumise puhul kasutajakonto blokeeritakse.

 

Vanemad teated:

Vaata kõiki

Sellel veebilehel kasutatakse küpsiseid. Kasutamist jätkates nõustute küpsiste kasutamisega.

Sulge
 
Minu pakkumine

Reeglid

Pakkumise kirjelduse väli on mõeldud pakkumise detailsemaks lahti kirjutamiseks. Pikema teksti mugavaks sisestamiseks klikkige kasti paremal ülaservas oleval ikoonil.
Pakkumist tehes on keelatud postitada enda kontaktandmeid (nimi, telefon, aadress jne). Me jälgime ja analüüsime pakkumisi, et vältida pettuseid ja reeglite rikkumisi.
Rikkumise puhul kasutajakonto blokeeritakse.