+ Lisa oma töö      

Otsid ehitajat "Ventilatsioonitööd" valdkonnast?

Parima pakkumise ja teostaja leidmiseks lisa oma töö.

Ventilatsiooni ehitus eramule vastavalt ehitusprojektile

ID 58794

1074 vaatamist

Prindi

  • check Pakkumiste tegemine
    kuni 28.04.2021
  • check Võitja valik kuni
    05.05.2021
  • 3 Töö teostamine
    ja hinnang
Hanke lõpp: K, 28. aprill, 2021
Maakond: Tartumaa
Muu asula: Lalli
Tööde algus: E, 03. mai, 2021 (Soovituslik)
Tööde lõpp: L, 31. juuli, 2021 (Soovituslik)
Ehitusmaterjalid: Töö tegija poolt
Soovin pakkumisi: Summa kogu projektile

Töö sisu

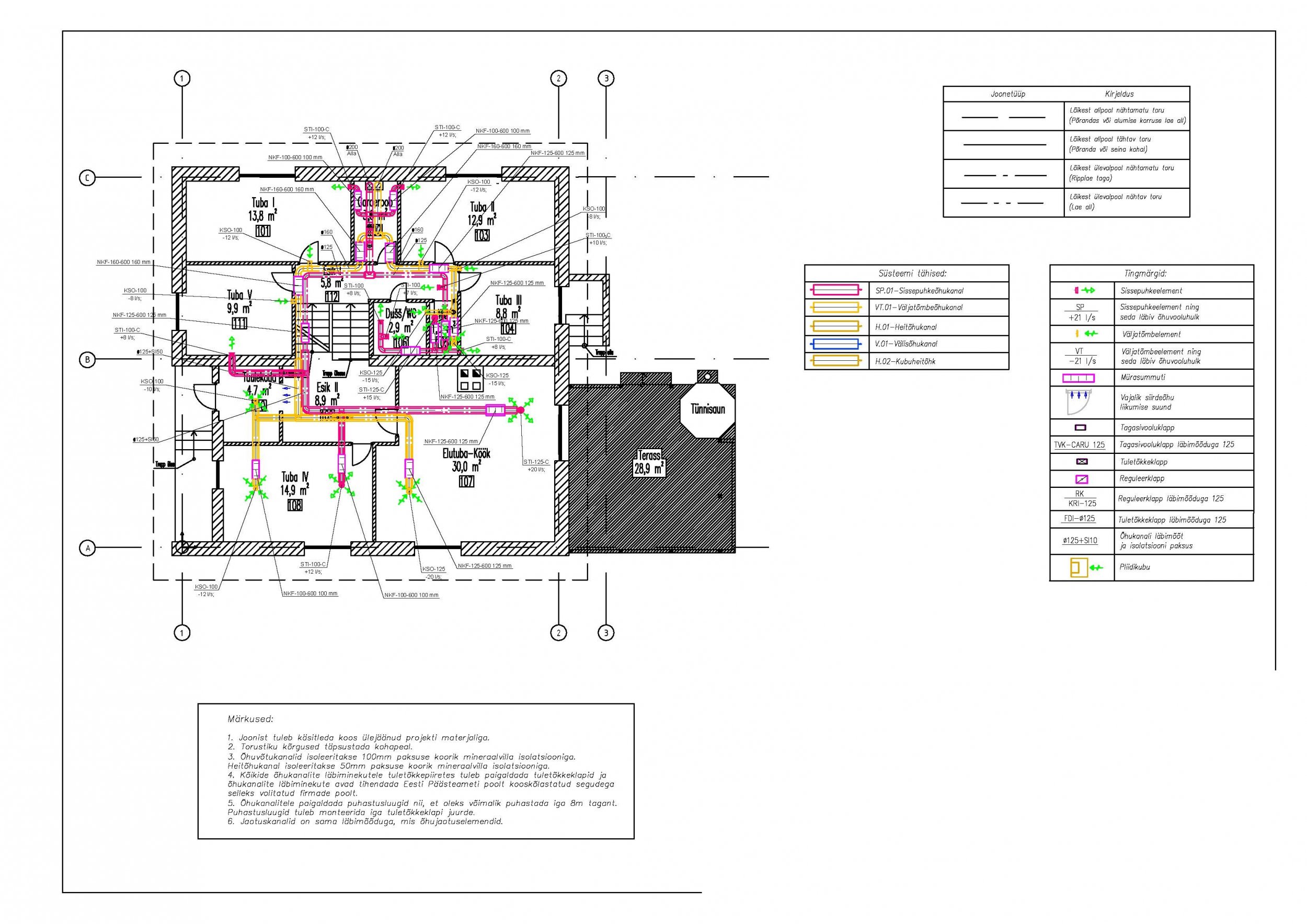
Ehitada elamule ventilatsioon vastavalt projektile.
Teostatavad tööd:
1. vajalikud puurimis- ja ehitustööd ventilatsioonitorude jm paigaldamiseks
2. ventilatsioonitorude jm materjalide ja seadmete paigaldamine
3. ehitusjärgne viimistlus
Hoonesse rajatav ventilatsioonisüsteem peab tagama sisekliima õhuvahetuse) II klassile vastava sisekliima hoone põhiruumides. Sissepuhke- ja väljatõmbeõhk tuleb ventilatsiooniagregaadis filtreerida vastavalt F7 sissepuhkel ja M5 filtritega väljatõmbel. Üldruumide siseõhu CO2 tase ei tohiks tõusta üle 500 ppm võrreldes välisõhu kontsentratsioonist (kuni 900 ppm kogukontsentratsioonina). Ventilatsioonisüsteemid tuleb rajada vähemalt kooskõlas õhutiheduse klass B-ga standardite EVS-EN 12237:2003 ja EVS-EN 1507:2006 kohaselt.

Eelistame pakkujat, kes rekonstrueerib ka küttesüsteemi (hanke ID 58738)

Pildid, video ja failid

Hanke korraldaja: eraisik ID61100

Pakkumised

Pakkumisi kokku: 2

Ettevõte Summa Käibemaks Lisatud Vestlus
Kasutaja ikoon ID43451
Pakkuja profiil Väike nool paremale
10 900€ Sisaldab KM Sisaldab KM 22.04.2021 Vestlus (4)
Kasutaja ikoon ID51879
Pakkuja profiil Väike nool paremale
11 760€ Sisaldab KM Sisaldab KM 25.04.2021 Vestlus (2)

Pakkumise kirjeldus:

Pakkumine sisaldab:

Ventilatsiooniseade Domekt 500 R
+seinapealne juhtpaneel puutetundlik.
Ventilatsioonimaterjalid vastavalt spetsile+lisamaterjal,kinnitusvahendid ja abimaterjal.
Avade puurimine,paigaldustööd,isolatsioonitööd. Mõõdistamine/seadistamine.Transport.

Ettemaks 50% 4900+km
2000+km materjal objektil
2500+km torustik paigaldatud ... Rohkem

Küsimused hanke korraldajale

Küsimus: private ID43451   15.04.2021 07:33
Kas skeemi ei ole võimalik postitada pdfina, tekst on raskesti loetav. Kus torud kulgevad? Kas esimest korrust varustatakse läbi pööningul paikenva jaotustorustiku?

Keldritorustik jääb lae alla? Kas hoones elatakse tööde ajal sees?

Parimat

Teavita reeglite rikkumisest

Korraldaja vastus: 15.04.2021 09:00

Esimese korruse lõuna- ja põhjapoolsed ruumid asuvad eritasapindadel. Lõunapoolsed ruumid varustatakse keldrist ja põhjapoolsed läbi pööningu. Lisan joonised ka pdf-failidena.
Keldris soovime torustikku nii lae alla ja seina äärde kui võimalik, kuid arvestama peab küttetorude paigaldusega.
Hoones elatakse sees, tegemist on 1989.a valminud majaga.

Teavita reeglite rikkumisest

Küsimus: private ID43451   15.04.2021 07:44
Mis materjalist on konstruktsioon, kas esineb vajadust läbi betooni või paekivi avade puurimisele?

Teavita reeglite rikkumisest

Korraldaja vastus: 15.04.2021 08:52

Auke on vaja teha läbi betooni ja tuhaplokkide.

Teavita reeglite rikkumisest

Küsimus: private ID43451   22.04.2021 16:02
Kas ehitusjärgse viimistluse võib jätta ka pakkumata ning lahendada see tööde järgselt lisatööde pakkumisega?

Teavita reeglite rikkumisest

Korraldaja vastus: 22.04.2021 16:16

Jah, võib jätta välja. Pakkumises välja tuua, mis tööd selle pakkunise sisse kuuluvad.

Teavita reeglite rikkumisest

Küsimus: private ID43451   22.04.2021 16:23
Kas tooted tuleb valida projekti järgi? Silmas peame näiteks plafoone. Projekti on pandud disainilt teistsugused, kui meie vaikimisei pakume. Meie pakuks selliseid: https://www.onninen.ee/opal-opal-valjatombeplafoon-opv-100-ja-raam/p/AMA861 väljatõmbe jaoks.

Teavita reeglite rikkumisest

Korraldaja vastus: 22.04.2021 16:32

Tooted peavad olema projektis väljatoodutega samaväärsed, kuid ei pea olema samad. Disain ei ole oluline, tähtis on efektiivsus ja töökindlus.

Teavita reeglite rikkumisest

Küsimus: private ID43451   22.04.2021 17:08
Meie pakkumine läks kogemata liiga vara teele. Hinnakõikumine on max 5% (puurimistööde arvelt, ning pigem läheb odavamaks) ning ettemaks 40%.
Pakume hiljemalt esmaspäevaks ka küttesüsteemi ehitust.

Teavita reeglite rikkumisest

Korraldaja vastus: 22.04.2021 18:03

Aitäh pakkumise eest!

Teavita reeglite rikkumisest

Küsimus: private ID51879   25.04.2021 20:45
Pakkumise lisaks: Saaksime alustada koheselt peale ettemaksu tasumist.

Teavita reeglite rikkumisest

Korraldaja vastus: 26.04.2021 08:28

Aitäh pakkumise eest!

Teavita reeglite rikkumisest

Lisa küsimus

Lisa küsimus

Minu pakkumine

Reeglid

Pakkumise kirjelduse väli on mõeldud pakkumise detailsemaks lahti kirjutamiseks. Pikema teksti mugavaks sisestamiseks klikkige kasti paremal ülaservas oleval ikoonil.
Pakkumist tehes on keelatud postitada enda kontaktandmeid (nimi, telefon, aadress jne). Me jälgime ja analüüsime pakkumisi, et vältida pettuseid ja reeglite rikkumisi.
Rikkumise puhul kasutajakonto blokeeritakse.

 

Teisi töid samas valdkonnas

Valdkonnas "Ventilatsioonitööd" on 3 aktiivset tööd

Eramaja ventilatsioonitööd

Asukoht: Tartumaa, Soinaste
Aega jäänud: 6p 1h
Tehtud pakkumisi: 1

no-img Pilt puudub

Ventilatsiooni paigaldamine

Asukoht: Tartumaa, Tartu
Aega jäänud: 3p 1h
Tehtud pakkumisi: 0

Vanemad teated:

Vaata kõiki

Sellel veebilehel kasutatakse küpsiseid. Kasutamist jätkates nõustute küpsiste kasutamisega.

Sulge
 
Minu pakkumine

Reeglid

Pakkumise kirjelduse väli on mõeldud pakkumise detailsemaks lahti kirjutamiseks. Pikema teksti mugavaks sisestamiseks klikkige kasti paremal ülaservas oleval ikoonil.
Pakkumist tehes on keelatud postitada enda kontaktandmeid (nimi, telefon, aadress jne). Me jälgime ja analüüsime pakkumisi, et vältida pettuseid ja reeglite rikkumisi.
Rikkumise puhul kasutajakonto blokeeritakse.