+ Lisa oma töö      

Otsid ehitajat "Küttesüsteemid" valdkonnast?

Parima pakkumise ja teostaja leidmiseks lisa oma töö.

Küttesüsteemi rekonstrueerimine vastavalt olemasolevale projektile

ID 58738

422 vaatamist

Prindi

  • check Pakkumiste tegemine
    kuni 28.04.2021
  • check Võitja valik kuni
    28.04.2021
  • 3 Töö teostamine
    ja hinnang
Hanke lõpp: K, 28. aprill, 2021
Maakond: Tartumaa
Muu asula: Lalli
Tööde algus: E, 03. mai, 2021 (Soovituslik)
Tööde lõpp: L, 31. juuli, 2021 (Soovituslik)
Ehitusmaterjalid: Töö tegija poolt
Soovin pakkumisi: Summa kogu projektile

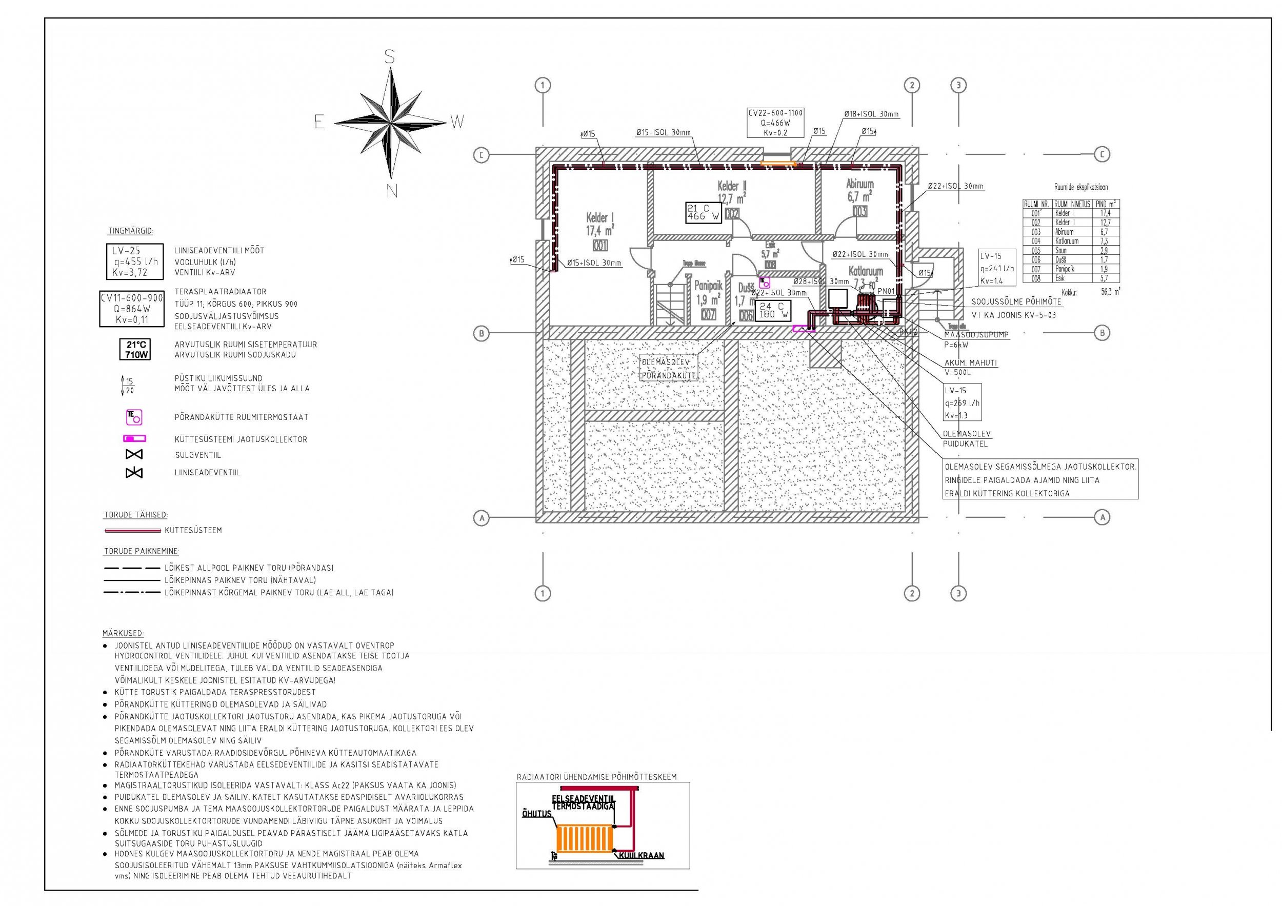
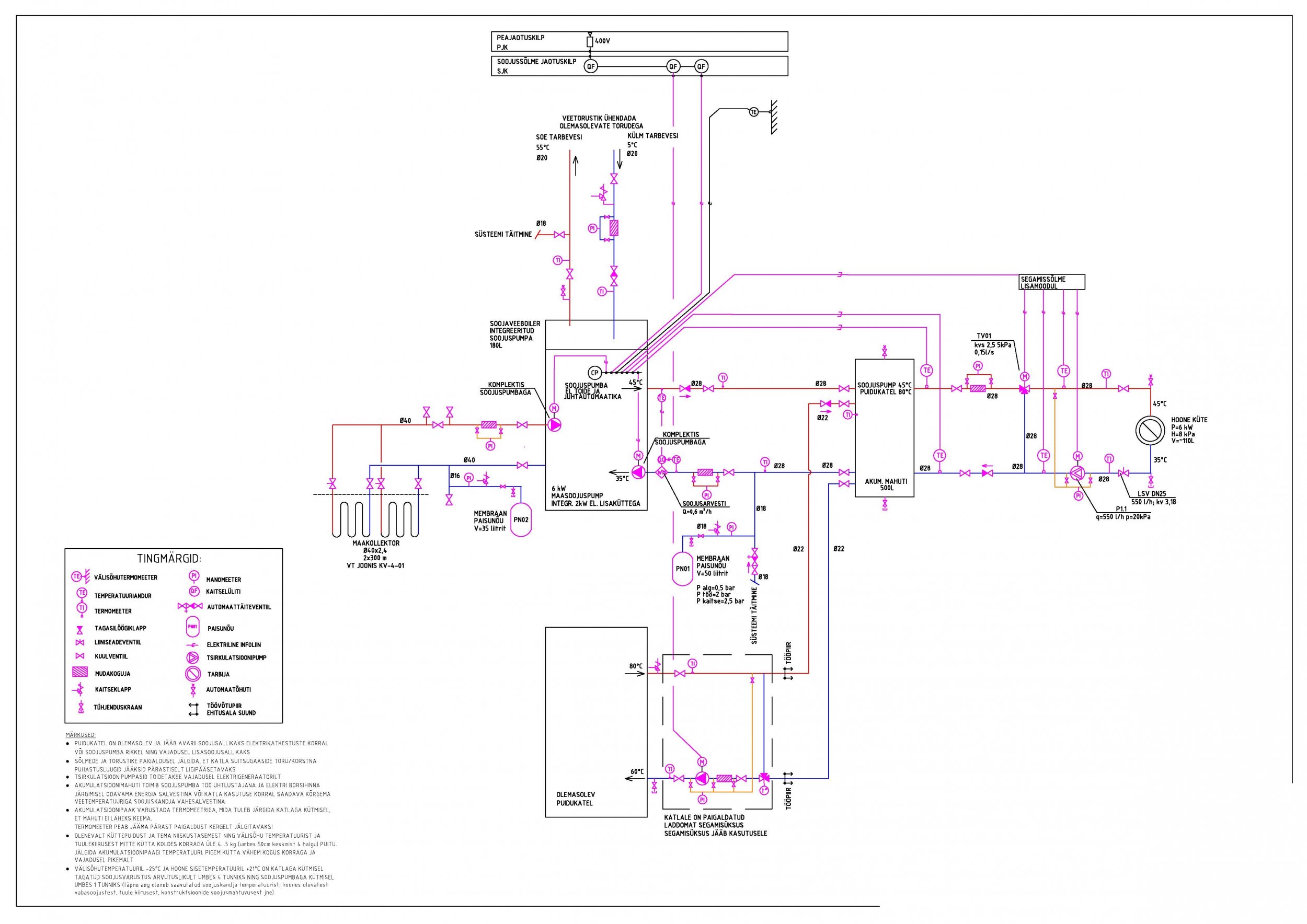
Töö sisu

Küttesüsteemi rekonstrueerimiseks vajalikud materjalid on toodud failides "vajalikud materjalid" ja "näidiskütteseadmed". Need arvestada projektimaksumuse sisse koos paigaldusega seotud kuludega.
Teostatavad tööd:
1. Maakütte kollektor paigaldada
2. maasoojuspump paigaldada
3. vana torustik ümber ehitada
4. akupaak asendada
5. 4 malm radiaatorit asendada
6. 1 uus radiaator paigaldada
7. juhtautomaatika paigaldada

Eelistame ettevõtet, kes teeb pakkumise ka ventilatsiooni väljaehitamisele (hanke ID 58794)

Pildid, video ja failid

Hanke korraldaja: eraisik ID61100

Pakkumised

Pakkumisi kokku: 0

Küsimused hanke korraldajale

Hanke korraldajale ei ole veel küsimusi esitatud.

Lisa küsimus

Lisa küsimus

Minu pakkumine

Reeglid

Pakkumise kirjelduse väli on mõeldud pakkumise detailsemaks lahti kirjutamiseks. Pikema teksti mugavaks sisestamiseks klikkige kasti paremal ülaservas oleval ikoonil.
Pakkumist tehes on keelatud postitada enda kontaktandmeid (nimi, telefon, aadress jne). Me jälgime ja analüüsime pakkumisi, et vältida pettuseid ja reeglite rikkumisi.
Rikkumise puhul kasutajakonto blokeeritakse.

 

Teisi töid samas valdkonnas

Valdkonnas "Küttesüsteemid" on 2 aktiivset tööd

no-img Pilt puudub

Küttesüsteemi püstakute vahetus ja radiaatoritega ühendamine

Asukoht: Järvamaa, Paide
Aega jäänud: 3p 7h
Tehtud pakkumisi: 2

Cooper&Hunter Consol Inverter 18

Asukoht: Harjumaa, Tallinn
Aega jäänud: 7h 20 min
Tehtud pakkumisi: 1

Vanemad teated:

Vaata kõiki

Sellel veebilehel kasutatakse küpsiseid. Kasutamist jätkates nõustute küpsiste kasutamisega.

Sulge
 
Minu pakkumine

Reeglid

Pakkumise kirjelduse väli on mõeldud pakkumise detailsemaks lahti kirjutamiseks. Pikema teksti mugavaks sisestamiseks klikkige kasti paremal ülaservas oleval ikoonil.
Pakkumist tehes on keelatud postitada enda kontaktandmeid (nimi, telefon, aadress jne). Me jälgime ja analüüsime pakkumisi, et vältida pettuseid ja reeglite rikkumisi.
Rikkumise puhul kasutajakonto blokeeritakse.