+ Lisa oma töö      

Otsid ehitajat "Korterite remont" valdkonnast?

Parima pakkumise ja teostaja leidmiseks lisa oma töö.

Hange on lõppenud!

Võitjaks osutus kasutaja ID 57475

Korraldaja hinnang tehtud tööle

5.0
18.06.2021
Töökiirus: 12345
Kvaliteet: 12345
Hind: 12345

Korteri seina avade lõikamine/terasraamide paigaldamine

ID 58374

1391 vaatamist

Prindi

  • check Pakkumiste tegemine
    kuni 17.05.2021
  • check Võitja valik kuni
    17.05.2021
  • 3 Töö teostamine
    ja hinnang
Hanke lõpp: E, 17. mai, 2021
Maakond: Viljandimaa
Linn: Viljandi
Tööde algus: N, 20. mai, 2021 (Soovituslik)
Tööde lõpp: R, 21. mai, 2021 (Soovituslik)
Ehitusmaterjalid: Töö tellija poolt
Soovin pakkumisi: Summa kogu projektile

Töö sisu

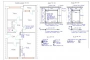
Korteri kandvasse vaheseina avade lõikamine ja toestusraamide paigaldamine vastavalt projektile.
1. ava köögi ja suure toa vaheline sein 2100x2100
2. ava suure toa ja koridori vahelise seina ukse laiendus 1500x2100

TELLITAVAD TÖÖD
1. Toestada vahelagi mõlemalt poolt seina.
3. Olemasolevale seinale seinaava asukoha märkimine.
4. Seina sisse ava lõikamine, alustades ava ülemisest osast, silluse tasapinnas.
5. Terasraami paigaldamine lõigatud ava sisse.
6. Raami kinnitamine seina külge ja kokku keevitamine vastavalt projektile
7. Raami tala ülemise vöö ja seina ülaosa vahelise tühemiku kiilutamine teraskiiludega.

LISATÖÖD
1. Terasraami materjalide transport maja eest korterisse 4 korrusel
2. Eemaldatud seinaosade transport korterist maja ette kaubikusse
3. Vajadusel tööpiirkonna kiletamine tolmutõkkeks
4. Trepikoja koristamine transpordiprügist

Nõuded:

Töid tuleb teostada võimalikult tolmuvabalt samas naabrile veekahjustusi tegemata.

Seina paksus 130mm raudbetoonpaneel.

NB! Terasmaterjal on minu poolt olemas ja mõõtu lõigatud, vaja on transportida korterisse ja kohapeal kokku keevitada.

Terastala HEB 140
Tugipostid kanttoru 140x80x6
Kõige raskem terasraami osa kaalub ca 80kg

Pildid, video ja failid

Hanke korraldaja: ettevõte ID52700

Pakkumised

Pakkumisi kokku: 1

Ettevõte Summa Käibemaks Lisatud Vestlus
Kasutaja ikoon ID57475
Pakkuja profiil Väike nool paremale
1 000€ KM lisandub KM lisandub 16.05.2021 Vestlus (0)

Pakkumise kirjeldus:

Tere,


Meie hind antud tööde kirjeldusele oleks 1000€+km, kui soovite arve alusel tasuda. Töö kestvuseks hindame 3 päeva. Töö saaks teostatud mai kuu jooksul. Omame vastavat MTR-i litsentsi ehitusalal ja teostaksime selle töö kvaliteetselt.

Lisaküsimustele vastan meeleldi ja kui soovite meiega ühendust võtta on meie kontaktid teile näht ... Rohkem

Küsimused hanke korraldajale

Hanke korraldajale ei ole veel küsimusi esitatud.

Lisa küsimus

Lisa küsimus

Minu pakkumine

Reeglid

Pakkumise kirjelduse väli on mõeldud pakkumise detailsemaks lahti kirjutamiseks. Pikema teksti mugavaks sisestamiseks klikkige kasti paremal ülaservas oleval ikoonil.
Pakkumist tehes on keelatud postitada enda kontaktandmeid (nimi, telefon, aadress jne). Me jälgime ja analüüsime pakkumisi, et vältida pettuseid ja reeglite rikkumisi.
Rikkumise puhul kasutajakonto blokeeritakse.

 

Teisi töid samas valdkonnas

Valdkonnas "Korterite remont" on 2 aktiivset tööd

Vannitoa lampide paigaldus + erinevad pisiparandused korteris

Asukoht: Harjumaa, Tallinn
Aega jäänud: 1p 21h
Tehtud pakkumisi: 3

Korteri kapitaalremont ja ümberehitus (täielik siseviimistlus + elektritööd)

Asukoht: Järvamaa
Aega jäänud: 12p 21h
Tehtud pakkumisi: 0

Vanemad teated:

Vaata kõiki

Sellel veebilehel kasutatakse küpsiseid. Kasutamist jätkates nõustute küpsiste kasutamisega.

Sulge
 
Minu pakkumine

Reeglid

Pakkumise kirjelduse väli on mõeldud pakkumise detailsemaks lahti kirjutamiseks. Pikema teksti mugavaks sisestamiseks klikkige kasti paremal ülaservas oleval ikoonil.
Pakkumist tehes on keelatud postitada enda kontaktandmeid (nimi, telefon, aadress jne). Me jälgime ja analüüsime pakkumisi, et vältida pettuseid ja reeglite rikkumisi.
Rikkumise puhul kasutajakonto blokeeritakse.