+ Lisa oma töö      

Otsid ehitajat "Vundamenditööd" valdkonnast?

Parima pakkumise ja teostaja leidmiseks lisa oma töö.

Aiamaja

ID 57901

1173 vaatamist

Prindi

  • check Pakkumiste tegemine
    kuni 30.03.2021
  • check Võitja valik kuni
    06.04.2021
  • 3 Töö teostamine
    ja hinnang
Hanke lõpp: T, 30. märts, 2021
Maakond: Lääne-Virumaa
Muu asula: Kadrina
Tööde algus: R, 16. aprill, 2021 (Soovituslik)
Tööde lõpp: K, 21. aprill, 2021 (Soovituslik)
Ehitusmaterjalid: Töö tegija poolt
Soovin pakkumisi: Summa kogu projektile

Töö sisu

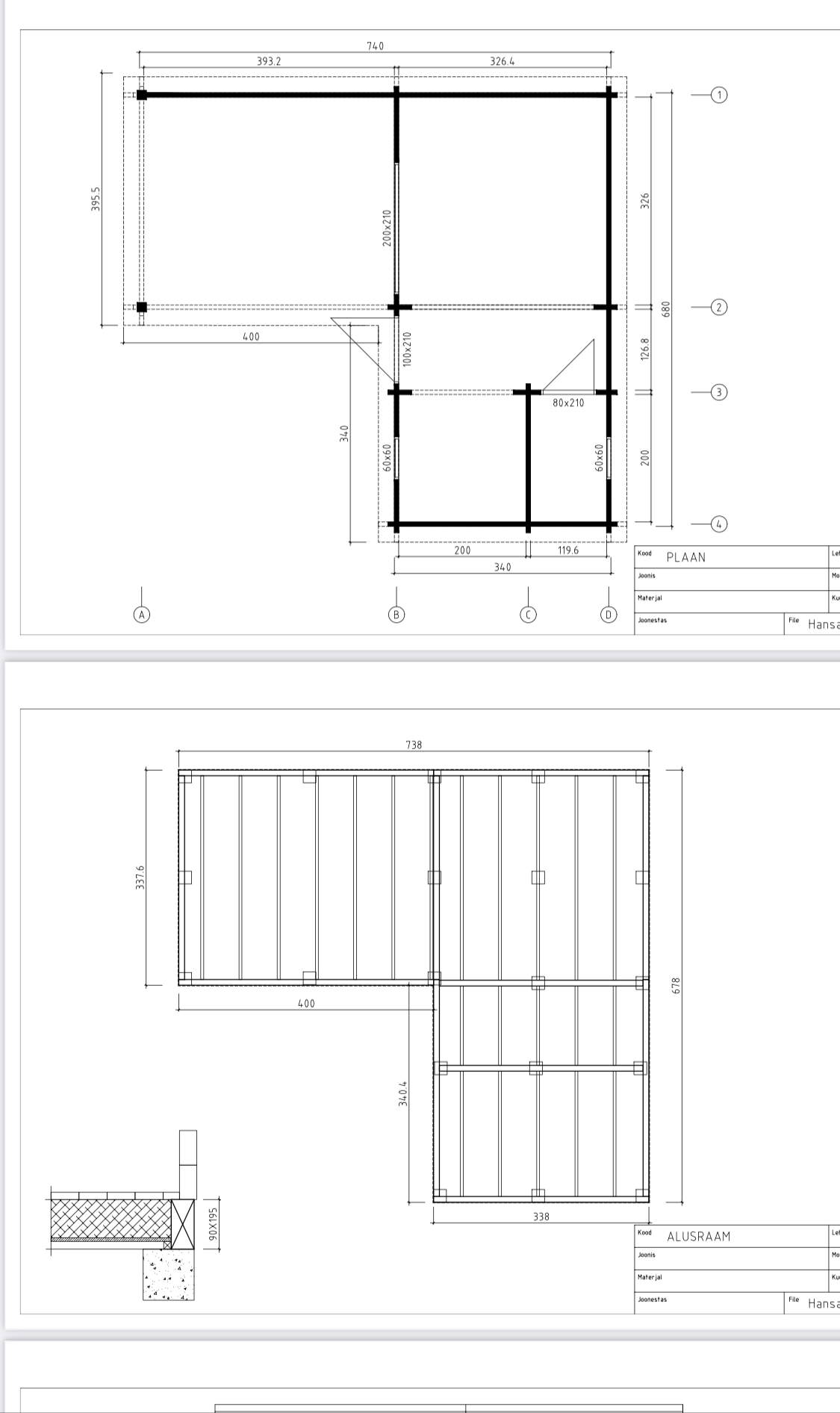
Aiamaja postvundamendi ehitus. Kokku 21 kannu. Sooviksin hinda koos materjaliga.

Pildid, video ja failid

Hanke korraldaja: eraisik ID59379

Pakkumised

Pakkumisi kokku: 2

Ettevõte Summa Käibemaks Lisatud Vestlus
Kasutaja ikoon ID53098
Pakkuja profiil Väike nool paremale
1 200€ Sisaldab KM Sisaldab KM 28.03.2021 Vestlus (0)

Pakkumise kirjeldus:

Hinnapakkumises 21 puuraugu puurimine kuni 1m sügavuseni Killustik taldade rajamine aukudesse, 21 betoonposti valamine koos armatuuriga. Vajadusel prussikingade lisamine postimõõdud 160mm x max1100mm (pikemate postide korral võib hind muutuda.

Ettemaks sisaldab betooni, armatuuri ja vent.torust valuvorme.
vajadusel prussikingasid
Hind võib kõikud ... Rohkem

Kasutaja ikoon ID55675
Pakkuja profiil Väike nool paremale
1 175€ Sisaldab KM Sisaldab KM 30.03.2021 Vestlus (0)

Küsimused hanke korraldajale

Küsimus: private ID55769   27.03.2021 20:47
Tere. Kas ainult postid vaja valada antud hankes? Kas alusraami alla soovite ka killustiku põhja kogu ajamaja aluse ulatuses? Kas väljakaevatud pinnas tuleb utiliseerida?

Teavita reeglite rikkumisest

Korraldaja vastus: 27.03.2021 20:58

Tere. Ainult postid. Väljakaevatud pinnast pole vaja utiliseerida.

Teavita reeglite rikkumisest

Küsimus: private ID38844   27.03.2021 21:44
Tere. Kas sobib, kui kannud teha 120mm läbimõõduga ümmargusest torust, mis on täis betoneeritud? Tervitades, Gunnar

Teavita reeglite rikkumisest

Korraldaja vastus: 27.03.2021 22:02

Tere. Miinimum vōiks olla 160mm.

Teavita reeglite rikkumisest

Küsimus: private ID59776   29.03.2021 09:03
Tere

Mis pinnasga on tegu?

Teavita reeglite rikkumisest

Korraldaja vastus: 29.03.2021 09:10

Tere! Muld ja mureen.

Teavita reeglite rikkumisest

Küsimus: private ID59776   29.03.2021 09:42
Tere

Kui sügavale tuleks kannud puurida?

Teavita reeglite rikkumisest

Korraldaja vastus: 29.03.2021 11:28

Tere. Külmumis piiri ehk 1m ja 20cm.

Teavita reeglite rikkumisest

Lisa küsimus

Lisa küsimus

Minu pakkumine

Reeglid

Pakkumise kirjelduse väli on mõeldud pakkumise detailsemaks lahti kirjutamiseks. Pikema teksti mugavaks sisestamiseks klikkige kasti paremal ülaservas oleval ikoonil.
Pakkumist tehes on keelatud postitada enda kontaktandmeid (nimi, telefon, aadress jne). Me jälgime ja analüüsime pakkumisi, et vältida pettuseid ja reeglite rikkumisi.
Rikkumise puhul kasutajakonto blokeeritakse.

 

Vanemad teated:

Vaata kõiki

Sellel veebilehel kasutatakse küpsiseid. Kasutamist jätkates nõustute küpsiste kasutamisega.

Sulge
 
Minu pakkumine

Reeglid

Pakkumise kirjelduse väli on mõeldud pakkumise detailsemaks lahti kirjutamiseks. Pikema teksti mugavaks sisestamiseks klikkige kasti paremal ülaservas oleval ikoonil.
Pakkumist tehes on keelatud postitada enda kontaktandmeid (nimi, telefon, aadress jne). Me jälgime ja analüüsime pakkumisi, et vältida pettuseid ja reeglite rikkumisi.
Rikkumise puhul kasutajakonto blokeeritakse.