+ Lisa oma töö      

Otsid ehitajat "Betoonitööd" valdkonnast?

Parima pakkumise ja teostaja leidmiseks lisa oma töö.

Betoonist välistrepid

ID 57828

1059 vaatamist

Prindi

  • check Pakkumiste tegemine
    kuni 01.04.2021
  • check Võitja valik kuni
    08.04.2021
  • 3 Töö teostamine
    ja hinnang
Hanke lõpp: N, 1. aprill, 2021
Maakond: Harjumaa
Tööde algus: N, 01. aprill, 2021 (Soovituslik)
Tööde lõpp: N, 15. aprill, 2021 (Soovituslik)
Ehitusmaterjalid: Töö tegija poolt
Soovin pakkumisi: Summa kogu projektile

Töö sisu

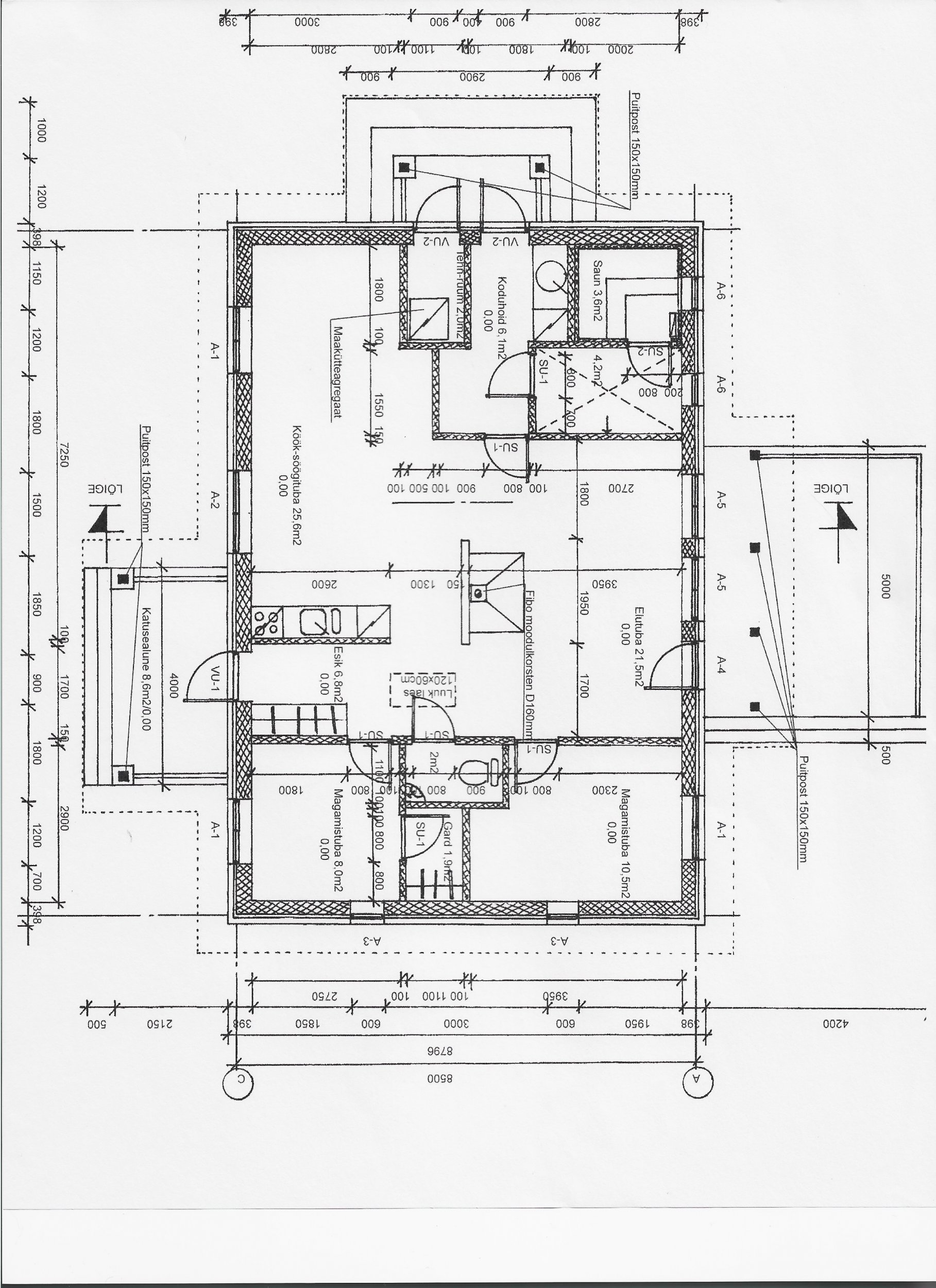
Betoonist välistrepid maja ette ja küljepeale.

Pildid, video ja failid

Hanke korraldaja: eraisik ID39994

Pakkumised

Pakkumisi kokku: 5

Ettevõte Summa Käibemaks Lisatud Vestlus
Kasutaja ikoon ID59917
Pakkuja profiil Väike nool paremale
3 900€ Ei ole KMKR Ei ole KMKR 26.03.2021 Vestlus (0)

Pakkumise kirjeldus:

arveldamine kolmes võrdses osas

Kasutaja ikoon ID50594
Pakkuja profiil Väike nool paremale
3 820€ KM lisandub KM lisandub 30.03.2021 Vestlus (0)

Pakkumise kirjeldus:

Tere,

Hinnapakkumine koostatud vastavalt hanke sisule.

Kui õigesti aru saada joonisest, siis treppe tuleb kaks. Kolmas oleks ka nagu paista, joonis jääb ühest küljest lühikeseks.
(Pakkumine tehtud kahele trepile)

On ette näidata betoonist treppe ja kaldteid.


Lgp. Taivo

Kasutaja ikoon ID60083
Pakkuja profiil Väike nool paremale
3 560€ Ei ole KMKR Ei ole KMKR 01.04.2021 Vestlus (0)

Pakkumise kirjeldus:

Tere,

Pakkumine vastavalt küsitule, oleme puhtust hoidvad, töökad ja suurte oskustega meeskond. Töödele leping ja 2 aastat garantii.
Hinnangud on meil samuti head!!

Parimate soovidega!!

Kasutaja ikoon ID57033
Pakkuja profiil Väike nool paremale
3 700€ Sisaldab KM Sisaldab KM 01.04.2021 Vestlus (0)

Pakkumise kirjeldus:

Töid teostavad oma ala spetsjalistid. Tööd saame kohe ette võtta.

Kasutaja ikoon ID28394
Pakkuja profiil Väike nool paremale
3 200€ Sisaldab KM Sisaldab KM 01.04.2021 Vestlus (0)

Pakkumise kirjeldus:

Betoontreppide (2 tk) valmistamise hind.
Trepile süvendi kaevamine, saalungi valmistamine, armeerimine ja valu.

Küsimused hanke korraldajale

Küsimus: private ID50594   27.03.2021 15:41
Tere,

Mis on treppide mõõtmed?
Pikkus, laius ja kõrgus?

Lgp. Taivo

Teavita reeglite rikkumisest

Korraldaja vastus: 28.03.2021 15:36

Tere. Lisasin maja plaani mõõtudega.

Teavita reeglite rikkumisest

Lisa küsimus

Lisa küsimus

Minu pakkumine

Reeglid

Pakkumise kirjelduse väli on mõeldud pakkumise detailsemaks lahti kirjutamiseks. Pikema teksti mugavaks sisestamiseks klikkige kasti paremal ülaservas oleval ikoonil.
Pakkumist tehes on keelatud postitada enda kontaktandmeid (nimi, telefon, aadress jne). Me jälgime ja analüüsime pakkumisi, et vältida pettuseid ja reeglite rikkumisi.
Rikkumise puhul kasutajakonto blokeeritakse.

 

Teisi töid samas valdkonnas

Valdkonnas "Betoonitööd" on 5 aktiivset tööd

Betoonist platsi valamine väljas.

Asukoht: Harjumaa, Luige
Aega jäänud: 18h 32 min
Tehtud pakkumisi: 4

Betoonpõranda valu

Asukoht: Harjumaa, Jõelähtme
Aega jäänud: 2p 18h
Tehtud pakkumisi: 3

Vanemad teated:

Vaata kõiki

Sellel veebilehel kasutatakse küpsiseid. Kasutamist jätkates nõustute küpsiste kasutamisega.

Sulge
 
Minu pakkumine

Reeglid

Pakkumise kirjelduse väli on mõeldud pakkumise detailsemaks lahti kirjutamiseks. Pikema teksti mugavaks sisestamiseks klikkige kasti paremal ülaservas oleval ikoonil.
Pakkumist tehes on keelatud postitada enda kontaktandmeid (nimi, telefon, aadress jne). Me jälgime ja analüüsime pakkumisi, et vältida pettuseid ja reeglite rikkumisi.
Rikkumise puhul kasutajakonto blokeeritakse.