+ Lisa oma töö      

Otsid ehitajat "Torutööd" valdkonnast?

Parima pakkumise ja teostaja leidmiseks lisa oma töö.

Kanalisatsiooni ja külma vee toru paigaldus

ID 57792

1036 vaatamist

Prindi

  • check Pakkumiste tegemine
    kuni 27.03.2021
  • check Võitja valik kuni
    03.04.2021
  • 3 Töö teostamine
    ja hinnang
Hanke lõpp: L, 27. märts, 2021
Maakond: Tartumaa
Muu asula: Lombi
Tööde algus: E, 19. aprill, 2021 (Kohustuslik)
Tööde lõpp: T, 20. aprill, 2021
Ehitusmaterjalid: Töö tegija poolt
Soovin pakkumisi: Summa kogu projektile

Töö sisu

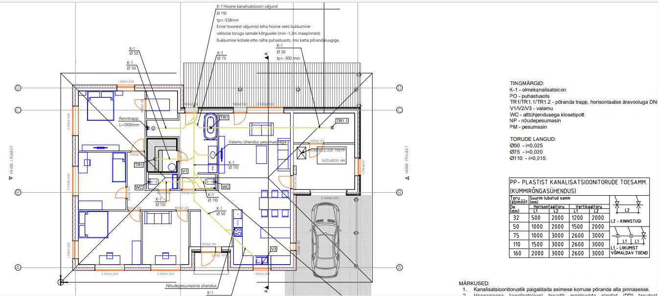
Kanalisatsioonitoru ja külma vee toru paigaldamine valmivale majale.
Majal tuleb plaatvundament ja oleks vaja leida töö teostajat,
kes paigaldaks kanali ja vee toru liiva sisse ära.
Eriosade projektid olemas.
Töö teostamise aeg: 19.04
Lisan pildi eriosade projektidest.

Pildid, video ja failid

Hanke korraldaja: eraisik ID57180

Pakkumised

Pakkumisi kokku: 1

Ettevõte Summa Käibemaks Lisatud Vestlus
Kasutaja ikoon ID50618
Pakkuja profiil Väike nool paremale
750€ KM lisandub KM lisandub 27.03.2021 Vestlus (2)

Pakkumise kirjeldus:

Hind sisaldab:
- kanalisatsiooni toru, liitmike ja paigaldust
- külma tarbevee toru ja selle paigaldust

Küsimused hanke korraldajale

Küsimus: private ID33769   25.03.2021 18:31
Tere.

Kas jutt käib liitumispunktist kuni tehnoruumis torudest või maja sisestest torudest?

Teavita reeglite rikkumisest

Korraldaja vastus: 25.03.2021 20:06

Tere,
Kanal - majataha tuleb suunamuutev kaev, majja sisse toon 110 toru ise sisse ära, sealt edasi on vaja kanal viia igasse tarbepunkti nagu joonisel näha on.
Plaatvundamndi likva põhja teen ära ja siis on vaja liivaseest kanal vedada.
Külm vesi - külma vee torud tuleb samuti paigaldada liiva seest tehnoruumist igasse tarbepunkti mis on joonisel näha.

Kuna majal tuleb topelt plaatvundament, siis kui koostöö sujub on pakkuda ka teise plaadi kihi sisse käivat põrandakütte, sooja vee ja tsirkulatsiooni paigaldust.

Teavita reeglite rikkumisest

Küsimus: private ID55335   26.03.2021 08:07
Tere
Kas oleks võimalik paluda mõõtkavaga joonist või, siis ehituslik joonis kõrvale, et võimalik täpsemalt kokku lüüa toru meetreid.

Ette tänades

Teavita reeglite rikkumisest

Korraldaja vastus: 26.03.2021 09:15

Tere,
Jooniste mõõtkava on 1:100.

Teavita reeglite rikkumisest

Lisa küsimus

Lisa küsimus

Minu pakkumine

Reeglid

Pakkumise kirjelduse väli on mõeldud pakkumise detailsemaks lahti kirjutamiseks. Pikema teksti mugavaks sisestamiseks klikkige kasti paremal ülaservas oleval ikoonil.
Pakkumist tehes on keelatud postitada enda kontaktandmeid (nimi, telefon, aadress jne). Me jälgime ja analüüsime pakkumisi, et vältida pettuseid ja reeglite rikkumisi.
Rikkumise puhul kasutajakonto blokeeritakse.

 

Teisi töid samas valdkonnas

Valdkonnas "Torutööd" on 2 aktiivset tööd

Kaarhalli soojaku torustiku renoveerimine

Asukoht: Harjumaa, Saue
Aega jäänud: 13h 18 min
Tehtud pakkumisi: 4

Köögi äravoolu paigaldus

Asukoht: Harjumaa, Tallinn
Aega jäänud: 4p 13h
Tehtud pakkumisi: 2

Vanemad teated:

Vaata kõiki

Sellel veebilehel kasutatakse küpsiseid. Kasutamist jätkates nõustute küpsiste kasutamisega.

Sulge
 
Minu pakkumine

Reeglid

Pakkumise kirjelduse väli on mõeldud pakkumise detailsemaks lahti kirjutamiseks. Pikema teksti mugavaks sisestamiseks klikkige kasti paremal ülaservas oleval ikoonil.
Pakkumist tehes on keelatud postitada enda kontaktandmeid (nimi, telefon, aadress jne). Me jälgime ja analüüsime pakkumisi, et vältida pettuseid ja reeglite rikkumisi.
Rikkumise puhul kasutajakonto blokeeritakse.