+ Lisa oma töö      

Otsid ehitajat "Maalritööd" valdkonnast?

Parima pakkumise ja teostaja leidmiseks lisa oma töö.

Eramu siseviimistlus (maalritööd)

ID 57589

1285 vaatamist

Prindi

  • check Pakkumiste tegemine
    kuni 23.03.2021
  • check Võitja valik kuni
    30.03.2021
  • 3 Töö teostamine
    ja hinnang
Hanke lõpp: T, 23. märts, 2021
Maakond: Harjumaa
Muu asula: Alliku
Tööde algus: E, 29. märts, 2021 (Soovituslik)
Tööde lõpp: R, 30. aprill, 2021 (Soovituslik)
Ehitusmaterjalid: Töö tegija poolt
Soovin pakkumisi: Summa kogu projektile

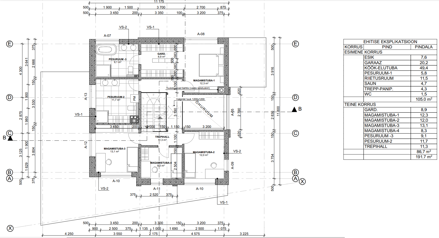
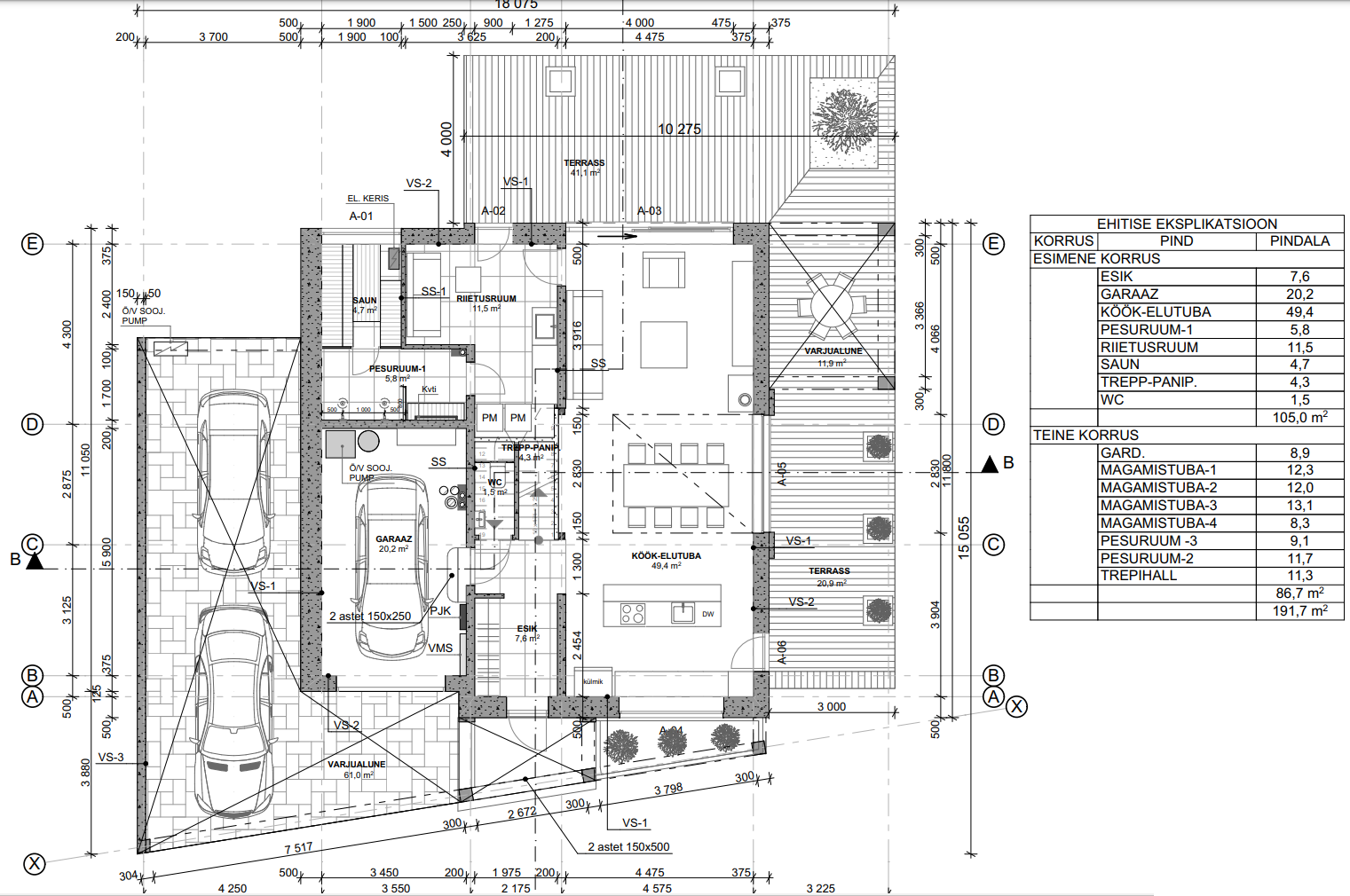
Töö sisu

Eramu siseviimistlus (maalritööd). Seinad laotud Bauroc plokist (seinad sirged), osaliselt kipsplaat. Laed osaliselt Bauroc paneelid, osaliselt 2x kipsplaat. Kuivades ruumides viimistleda seinad ja laed. Niisketes ruumides viimistleda laed.

1) Seinad (Bauroc) - krohv (võrguga), pahteldus, kruntvärv, 2x lõppvärv
Seinapind 280 m2 (netopind ilma akende-usteta)

2) Seinad (kipsplaat) - pahteldus, kruntvärv, 2x lõppvärv
Seinapind 35 m2

3) Laed (Bauroc) - pahteldus, kruntvärv, 2x lõppvärv
Laepind 55 m2

4) Laed (2x kipsplaat) - pahteldus, kruntvärv, 2x lõppvärv  
Laepind 112 m2

5) Aknapaled (Tycroc) - pahteldus, kruntvärv, 2x lõppvärv
Maht 71 jm

6) Valguskarniisid lagede ääres (kipsplaat) - pahteldus, kruntvärv, 2x lõppvärv
Maht 37 jm  

7) Trepi varvaslauad (Bauroc) - krohv (võrguga), pahteldus, kruntvärv, 2x lõppvärv, akrüülimine
Maht 1 jm x 17 tk

1. korruse lagede kõrgus 2.60m - 2.85m. 2. korruse lagede kõrgus 2.50m. Elutoa õhuruumi kõrgus 5.65m, seega vajalik tellingute kasutamine.

Töö maht on nn. võtmed kätte ehk alustades akende jm kinnikatmisest kuni lõppkoristuseni, sh. vuugid, nurgaprofiilide paigaldus, pahteldus, lihvimine, kruntimine, akrüülimine, 2x värvimine.
Viimane kiht värvida pärast trepi astmelaudade ja parketi paigaldust.

Joonised ja fotod objektist lisatud.

Pildid, video ja failid

Hanke korraldaja: eraisik ID7967

Pakkumised

Pakkumisi kokku: 15

Ettevõte Summa Käibemaks Lisatud Vestlus
Kasutaja ikoon ID57033
Pakkuja profiil Väike nool paremale
9 744€ Sisaldab KM Sisaldab KM 20.03.2021 Vestlus (0)

Pakkumise kirjeldus:

Pakkumine koostatud kogu projektile.
Töid teostavad oma ala asjatundajad .
Töödele garantii

Kasutaja ikoon ID52783
Pakkuja profiil Väike nool paremale
9 100€ Sisaldab KM Sisaldab KM 20.03.2021 Vestlus (0)

Pakkumise kirjeldus:

Tere.

Krohv, viimistlus lõpp värvini.
Kinnikatmiseid, lõpu koristus.
Eelpool mainitud hind, sisaldab tööd koos vajaminevate materjalidega.(kattematerjalid,nake,võrk, krohv, pahtel, akrüül, krunt, värv jne.
Alustada saame orjenteeruvalt 2-3 tööpäeva jooksul.

Kasutaja ikoon ID53785
Pakkuja profiil Väike nool paremale
12 000€ Ei ole KMKR Ei ole KMKR 20.03.2021 Vestlus (0)
Kasutaja ikoon ID59043
Pakkuja profiil Väike nool paremale
10 200€ Ei ole KMKR Ei ole KMKR 21.03.2021 Vestlus (0)
Kasutaja ikoon ID45266
Pakkuja profiil Väike nool paremale
13 226€ KM lisandub KM lisandub 21.03.2021 Vestlus (0)

Pakkumise kirjeldus:

Tere

Pakkumuses on arvestatud Bauroc seinte ja lagede nakkekrundiga kruntimist. Bauroc seinte pahteldus võrguga.

Kasutaja ikoon ID58478
Pakkuja profiil Väike nool paremale
10 770€ Ikoon kell KM lisandub KM lisandub 21.03.2021 Vestlus (0)
Kasutaja ikoon ID59496
Pakkuja profiil Väike nool paremale
13 000€ KM lisandub KM lisandub 21.03.2021 Vestlus (0)
Kasutaja ikoon ID59233
Pakkuja profiil Väike nool paremale
12 000€ KM lisandub KM lisandub 21.03.2021 Vestlus (0)
Kasutaja ikoon ID47351
Pakkuja profiil Väike nool paremale
8 800€ Sisaldab KM Sisaldab KM 21.03.2021 Vestlus (0)

Pakkumise kirjeldus:

Hind sisaldab kõike mis on antud tööde kvaliteetseks teostamiseks vajalik. Kui on küsimusi siis vastan heameelega.

Kasutaja ikoon ID58720
Pakkuja profiil Väike nool paremale
9 000€ KM lisandub KM lisandub 21.03.2021 Vestlus (0)

Pakkumise kirjeldus:

Hind sisaldab võtmed kätte lahendust nagu soovitud.
Hange.ee keskkonnas oleme uued kuna oleme viimased aastad peamiselt tegutsenud soomes LTM Team Oy nime all. Hetke olukorrast tulenavalt on meil väga head krohvijad ja maalrid jäänud Eesti. Töödega saaksime alustada soovitud kuupäevadel. Võimalik saata tehtud töödest pilte.

Kasutaja ikoon ID52001
Pakkuja profiil Väike nool paremale
14 758€ Sisaldab KM Sisaldab KM 21.03.2021 Vestlus (0)

Pakkumise kirjeldus:

Kogu maksumus sisaldab sisseviimistluse materjalid, tööraha,tellingud , lõppkorristus ja
oma prügiväljavedu.
Käibemaks on hinna sees.

Kasutaja ikoon ID8633
Pakkuja profiil Väike nool paremale
10 850€ KM lisandub KM lisandub 21.03.2021 Vestlus (0)
Kasutaja ikoon ID53194
Pakkuja profiil Väike nool paremale
11 050€ Sisaldab KM Sisaldab KM 22.03.2021 Vestlus (0)
Kasutaja ikoon ID60163
Pakkuja profiil Väike nool paremale
9 900€ Ei ole KMKR Ei ole KMKR 22.03.2021 Vestlus (0)

Pakkumise kirjeldus:

Hind sisaldab materjalide poolest kõike Bauroci nakkekrundist lõppvärvini.
Teen viimistlust nii värvitud lagede, kui ka täpplagedega, latiga krohvimist sirgeks kui ka loodi.
Valdan erinevaid krohvimistehnikaid: pritsiga, käsnaga, hõõrutiga, harjaga, labidatega, kips-, lubja- ja tsemendikrohvidega
Samuti valdan fassaadide krohvimist. Teen pritsiga ... Rohkem

Kasutaja ikoon ID31957
Pakkuja profiil Väike nool paremale
11 800€ KM lisandub KM lisandub 22.03.2021 Vestlus (0)

Pakkumise kirjeldus:

Tere,

Pakkumine vastavalt hankes küsitule.

Lugupidamisega

Küsimused hanke korraldajale

Küsimus: private ID47351   21.03.2021 10:45
Kas lõpukoristuse all mõtlete ennem sissekolimist koristust või tööde järgset koristust.

Teavita reeglite rikkumisest

Korraldaja vastus: 21.03.2021 10:47

Tere! Töödejärgset koristust koos tööde käigus tekkinud prügi utiliseerimisega.

Teavita reeglite rikkumisest

Küsimus: private ID31957   22.03.2021 15:50
Tere,

Mõne täpsustavad küsimused.

1) Bauroc seinad, kas soovite need kindlasti krohvida? Viimastel objektidel oleme paigaldanud aluspahtli koos võrguga. Tulemus sama, mis krohvides, ainult seina viimistluskihi paksus jääb ca 5-6 mm õhem.
2) Laed Bauroc? Kas tein kasutatud bauroci paneele?
3) Soovite maksumust kogu projektile, st koos lõppviimistlusmaterjalidega. Kas on kindlad tootja eelistused?
4) Milline võiks olla lõpptärmin tööde valmimiseks?

Lugupidamisega

Teavita reeglite rikkumisest

Korraldaja vastus: 22.03.2021 16:06

Tere

1) Soovin Bauroc seinad ka krohvida
2) 55 m2 on Bauroc lagesid (Bauroc laepaneelid), viimistlus jääb vuukidega. Lagesid krohvida pole vaja. 112 m2 on kipslagesid (2x kipsplaat)
3) Tootja eelistusi pole, aga lõpptulemus peab olema kvaliteetne
4) Hiljemalt 15. mai 2021. Viimane värvikiht võib olla hiljem (pärast parketi ja uste paigaldust).

Teavita reeglite rikkumisest

Lisa küsimus

Lisa küsimus

Minu pakkumine

Reeglid

Pakkumise kirjelduse väli on mõeldud pakkumise detailsemaks lahti kirjutamiseks. Pikema teksti mugavaks sisestamiseks klikkige kasti paremal ülaservas oleval ikoonil.
Pakkumist tehes on keelatud postitada enda kontaktandmeid (nimi, telefon, aadress jne). Me jälgime ja analüüsime pakkumisi, et vältida pettuseid ja reeglite rikkumisi.
Rikkumise puhul kasutajakonto blokeeritakse.

 

Vanemad teated:

Vaata kõiki

Sellel veebilehel kasutatakse küpsiseid. Kasutamist jätkates nõustute küpsiste kasutamisega.

Sulge
 
Minu pakkumine

Reeglid

Pakkumise kirjelduse väli on mõeldud pakkumise detailsemaks lahti kirjutamiseks. Pikema teksti mugavaks sisestamiseks klikkige kasti paremal ülaservas oleval ikoonil.
Pakkumist tehes on keelatud postitada enda kontaktandmeid (nimi, telefon, aadress jne). Me jälgime ja analüüsime pakkumisi, et vältida pettuseid ja reeglite rikkumisi.
Rikkumise puhul kasutajakonto blokeeritakse.