+ Lisa oma töö      

Otsid ehitajat "Eritellimusmööbel" valdkonnast?

Parima pakkumise ja teostaja leidmiseks lisa oma töö.

Hange on lõppenud!

Võitjaks osutus kasutaja ID 53210

Korraldaja hinnang tehtud tööle

5.0
26.03.2021
Töökiirus: 12345
Kvaliteet: 12345
Hind: 12345

Igati rahul. Töö alustati ning lõpetati õigeaegselt. Tulemus nagu ootasin. - Krister S.

Uue köögimööbli paigaldus

ID 57035

1159 vaatamist

Prindi

  • check Pakkumiste tegemine
    kuni 03.03.2021
  • check Võitja valik kuni
    03.03.2021
  • 3 Töö teostamine
    ja hinnang
Hanke lõpp: K, 3. märts, 2021
Maakond: Harjumaa
Muu asula: Suurupi
Tööde algus: K, 10. märts, 2021 (Soovituslik)
Tööde lõpp: P, 14. märts, 2021 (Soovituslik)
Ehitusmaterjalid: Töö tellija poolt
Soovin pakkumisi: Summa kogu projektile

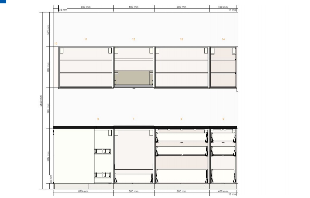
Töö sisu

Ikea köögimööbli paigaldus uude eramusse

Töö sisaldab:

1. Mööbli paigaldamine
2. Pliidi, kubu, nõudepesumasina ühendamine vooluvõrku (harukarpi)
3. Valamu ja pliidi ava sisselõige tööpida.
4. Veevärgi ühendamine (peale ja äravool loomulikul seintesse ja põrandasse juba veetud)

Pildid, video ja failid

Hanke korraldaja: eraisik ID49530

Pakkumised

Pakkumisi kokku: 3

Ettevõte Summa Käibemaks Lisatud Vestlus
Kasutaja ikoon ID53210
Pakkuja profiil Väike nool paremale
420€ Ei ole KMKR Ei ole KMKR 02.03.2021 Vestlus (9)

Pakkumise kirjeldus:

Tere.
Panen kokku ning paigaldan Teie Ikea köögimööbli.

Mööblipaigalduses 3a kogemust.

Kasutaja ikoon ID56371
Pakkuja profiil Väike nool paremale
360€ Ei ole KMKR Ei ole KMKR 02.03.2021 Vestlus (0)

Pakkumise kirjeldus:

Hinnas sisaldub köögimööbli ja seadmete paigaldus. ( kokkupanek ei ole hinnas)

Santehnilised, elektri ja ventilatsiooni tööd ja materjal tuleb juurde arvestada, kuna nende töömahtu ja kulu me ei tea.

Soliidne lõpptulemus on Teile garanteeritud.

Kasutaja ikoon ID54982
Pakkuja profiil Väike nool paremale
900€ Ei ole KMKR Ei ole KMKR 02.03.2021 Vestlus (0)

Pakkumise kirjeldus:

Pakkumine tehtud võttes arvesse köögi suurust.

Tööaeg 3 päeva.
Pakun välja kuupäevadeks 18-21.03.

Eritellimusel ja IKEA köökide ja muu mööbli paigalduses pikaajaline kogemus nii Eestis kui ka mujal Euroopas.
Äsja lõpetatud ka ühe pisikese köögi renoveerimine ja mööbli ning tehnika paigaldus.

Küsimused hanke korraldajale

Küsimus: private ID49238   02.03.2021 13:52
Kas IKEAst on tellitud ka metallsiin? Mis materjalist seinad?

Teavita reeglite rikkumisest

Korraldaja vastus: 02.03.2021 13:56

Tere,

Kiviseinad (Fibo plokk)

Siini kohta pean täpsustama kuid eeldame, et puudub

Teavita reeglite rikkumisest

Lisa küsimus

Lisa küsimus

Minu pakkumine

Reeglid

Pakkumise kirjelduse väli on mõeldud pakkumise detailsemaks lahti kirjutamiseks. Pikema teksti mugavaks sisestamiseks klikkige kasti paremal ülaservas oleval ikoonil.
Pakkumist tehes on keelatud postitada enda kontaktandmeid (nimi, telefon, aadress jne). Me jälgime ja analüüsime pakkumisi, et vältida pettuseid ja reeglite rikkumisi.
Rikkumise puhul kasutajakonto blokeeritakse.

 

Teisi töid samas valdkonnas

Valdkonnas "Eritellimusmööbel" on 2 aktiivset tööd

no-img Pilt puudub

Jalanõude riiul/istepink

Asukoht: Pärnumaa, Pärnu
Aega jäänud: 1p 20h
Tehtud pakkumisi: 0

Seinakapp kaldlae alla

Asukoht: Harjumaa, Tänassilma
Aega jäänud: 2p 20h
Tehtud pakkumisi: 0

Vanemad teated:

Vaata kõiki

Sellel veebilehel kasutatakse küpsiseid. Kasutamist jätkates nõustute küpsiste kasutamisega.

Sulge
 
Minu pakkumine

Reeglid

Pakkumise kirjelduse väli on mõeldud pakkumise detailsemaks lahti kirjutamiseks. Pikema teksti mugavaks sisestamiseks klikkige kasti paremal ülaservas oleval ikoonil.
Pakkumist tehes on keelatud postitada enda kontaktandmeid (nimi, telefon, aadress jne). Me jälgime ja analüüsime pakkumisi, et vältida pettuseid ja reeglite rikkumisi.
Rikkumise puhul kasutajakonto blokeeritakse.