+ Lisa oma töö      

Otsid ehitajat "Eramu ehitus" valdkonnast?

Parima pakkumise ja teostaja leidmiseks lisa oma töö.

Eramu rekonstrueerimine SA Kredex kaasrahastusega

ID 56936

804 vaatamist

Prindi

  • check Pakkumiste tegemine
    kuni 05.03.2021
  • check Võitja valik kuni
    12.03.2021
  • 3 Töö teostamine
    ja hinnang
Hanke lõpp: R, 5. märts, 2021
Maakond: Harjumaa
Muu asula: Peetri
Tööde algus: N, 15. aprill, 2021 (Soovituslik)
Tööde lõpp: K, 01. detsember, 2021 (Soovituslik)
Ehitusmaterjalid: Töö tellija poolt
Soovin pakkumisi: Summa kogu projektile

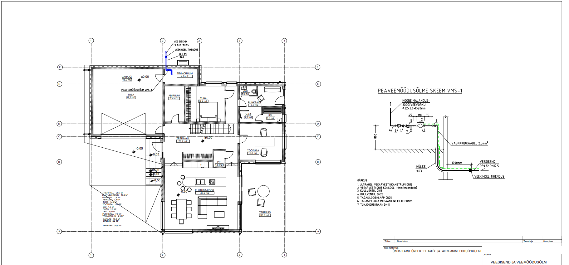
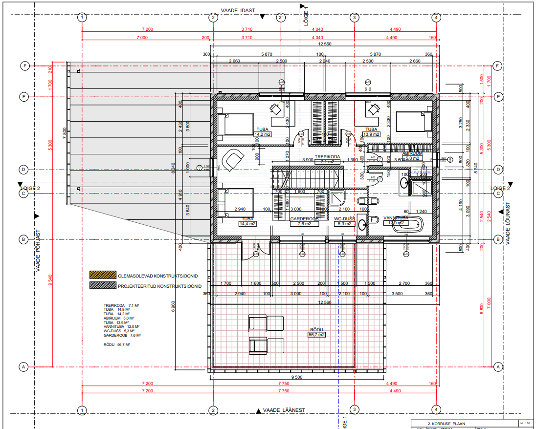
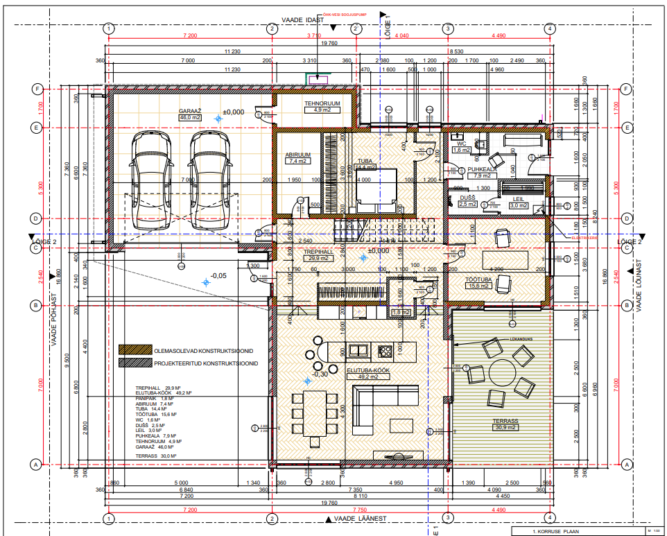
Töö sisu

Terviklik rekonstrueerimine, projektid olemas.
Viilkatusega kahekordne eramu terviklik rekonstrueerimine kahekordseks SBS lamekatusega eramuks koos väljaehitatud juurdeehituse ning garaažiga. Kogu maja rekonstrueeriti aastal 2000, sealhulgas ka vundament. Maja laotud Fibo blokist, seega viilkatuse madalamad osad vaja tõsta sama kõrgele kui olemasolev katusehari.
Voodrilauast fassaad, tuuletõkkeplaat ja vill läheb maha ning peale uus soojustus ja fassaadiks osaliselt krohv ning laudis.
Eelnev ehitaja (2000a) jättis Fibole nö tuulutusavad osadele blokkidele mis tuleks samuti seguga kinni teha. Korsten vaja lammutada. Alumisel korrusel säilivad kõik kandvad seinad, ülemisel korrusel ainult kaks kipsseina mis lähevad maha ning tulevad uued kipseinad. Ülemise korruse põrand säilib, välja arvatud trepi asukoha muutus.
Lisaks:
Uued aknad ja uksed.
Uus küttesüsteem (õhk-vesi põrandaküte).
Ventilatsiooni väljaehitamine.
Katuse ning fassaadi soojustamine.
Kipsist siseseinte ehitamine.
Elektri- ning torutööd.
Vannitubade x3 väljaehitamine.
Teisele korrusele trepi paigaldus.
Välis- ning siseviimistlus.
Ehitusjäätmete utiliseerimine.
Ühesõnaga terviklik rekonstrueerimine.
Päikesepaneelid lähevad katusele hiljem ning nendega palun mitte arvestada.

Pildid, video ja failid

Hanke korraldaja: ettevõte ID48606

Pakkumised

Pakkumisi kokku: 2

Ettevõte Summa Käibemaks Lisatud Vestlus
Kasutaja ikoon ID50329
Pakkuja profiil Väike nool paremale
240 000€ KM lisandub KM lisandub 27.02.2021 Vestlus (0)
Kasutaja ikoon ID59809
Pakkuja profiil Väike nool paremale
185 000€ KM lisandub KM lisandub 05.03.2021 Vestlus (0)

Pakkumise kirjeldus:

Tere! Kõik etteantud tööd. Kasutan koostöö partnereid.

Küsimused hanke korraldajale

Hanke korraldajale ei ole veel küsimusi esitatud.

Lisa küsimus

Lisa küsimus

Minu pakkumine

Reeglid

Pakkumise kirjelduse väli on mõeldud pakkumise detailsemaks lahti kirjutamiseks. Pikema teksti mugavaks sisestamiseks klikkige kasti paremal ülaservas oleval ikoonil.
Pakkumist tehes on keelatud postitada enda kontaktandmeid (nimi, telefon, aadress jne). Me jälgime ja analüüsime pakkumisi, et vältida pettuseid ja reeglite rikkumisi.
Rikkumise puhul kasutajakonto blokeeritakse.

 

Vanemad teated:

Vaata kõiki

Sellel veebilehel kasutatakse küpsiseid. Kasutamist jätkates nõustute küpsiste kasutamisega.

Sulge
 
Minu pakkumine

Reeglid

Pakkumise kirjelduse väli on mõeldud pakkumise detailsemaks lahti kirjutamiseks. Pikema teksti mugavaks sisestamiseks klikkige kasti paremal ülaservas oleval ikoonil.
Pakkumist tehes on keelatud postitada enda kontaktandmeid (nimi, telefon, aadress jne). Me jälgime ja analüüsime pakkumisi, et vältida pettuseid ja reeglite rikkumisi.
Rikkumise puhul kasutajakonto blokeeritakse.