+ Lisa oma töö      

Otsid ehitajat "Maalritööd" valdkonnast?

Parima pakkumise ja teostaja leidmiseks lisa oma töö.

Maalritööd

ID 56884

1086 vaatamist

Prindi

  • check Pakkumiste tegemine
    kuni 26.02.2021
  • check Võitja valik kuni
    05.03.2021
  • 3 Töö teostamine
    ja hinnang
Hanke lõpp: R, 26. veebruar, 2021
Maakond: Harjumaa
Muu asula: Lagedi
Tööde algus: K, 10. märts, 2021 (Soovituslik)
Tööde lõpp: L, 10. aprill, 2021 (Soovituslik)
Ehitusmaterjalid: Töö tegija poolt
Soovin pakkumisi: Summa kogu projektile

Töö sisu

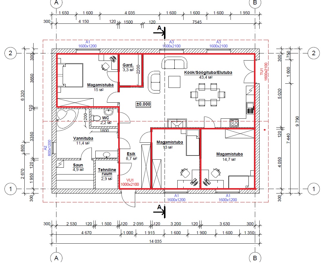
Ühekordse maja maalritööd.
Uus maja, OSB all, kips peal (nii seintes kui laes). Küte sees.
Laepinda kokku: 98 m2, lae kõrgus 2.5m.
Seinapinda kokku: 224 m2 (millest siseuste pind 20 m2, akende ja välisuste pind 18 m2).
Töö tegijalt ootan lauspahtel + krunt + 2 x värv, korrektsed sise- ja välisnurgad.
Pildil märgitud maalritöid vajav ala punasega.
Materjalid töö tegija poolt.
Töö tellija: eraisik.

Pildid, video ja failid

Hanke korraldaja: eraisik ID53109

Pakkumised

Pakkumisi kokku: 23

Ettevõte Summa Käibemaks Lisatud Vestlus
Kasutaja ikoon ID53785
Pakkuja profiil Väike nool paremale
3 600€ Ei ole KMKR Ei ole KMKR 23.02.2021 Vestlus (0)
Kasutaja ikoon ID8633
Pakkuja profiil Väike nool paremale
4 200€ KM lisandub KM lisandub 23.02.2021 Vestlus (0)

Pakkumise kirjeldus:

töö,materjal

Kasutaja ikoon ID57179
Pakkuja profiil Väike nool paremale
3 500€ Sisaldab KM Sisaldab KM 24.02.2021 Vestlus (0)
Kasutaja ikoon ID47549
Pakkuja profiil Väike nool paremale
3 900€ KM lisandub KM lisandub 24.02.2021 Vestlus (0)

Pakkumise kirjeldus:

hind sisaldab materjale ja tööd. Lugupidamisega Siim

Kasutaja ikoon ID57033
Pakkuja profiil Väike nool paremale
3 740€ Sisaldab KM Sisaldab KM 24.02.2021 Vestlus (0)

Pakkumise kirjeldus:

Tere,

Kogemustega ja heade kommetega meeskond aitab teid!!

Alustada saame kohe.

Kasutaja ikoon ID49809
Pakkuja profiil Väike nool paremale
4 347€ KM lisandub KM lisandub 24.02.2021 Vestlus (0)
Kasutaja ikoon ID59496
Pakkuja profiil Väike nool paremale
3 800€ Ei ole KMKR Ei ole KMKR 24.02.2021 Vestlus (0)
Kasutaja ikoon ID50979
Pakkuja profiil Väike nool paremale
4 000€ Ei ole KMKR Ei ole KMKR 24.02.2021 Vestlus (0)

Pakkumise kirjeldus:

Leping,kvaliteet,garantii5aastat,ettemaksu ei soovi,km.ei lisandu,nmaterjal kvaliteetne,maalrid pika kogemusega spetsialistid.Töö kestvus 2-3 nädalat.Lisaküsimused Vestluses.Peatsele koostööle lootes.Margus

Kasutaja ikoon ID58669
Pakkuja profiil Väike nool paremale
3 475€ Sisaldab KM Sisaldab KM 24.02.2021 Vestlus (0)

Pakkumise kirjeldus:

Kohe kui saab alustad teeme töö ära

Kasutaja ikoon ID56500
Pakkuja profiil Väike nool paremale
4 100€ Ei ole KMKR Ei ole KMKR 24.02.2021 Vestlus (0)
Kasutaja ikoon ID44278
Pakkuja profiil Väike nool paremale
4 560€ Ei ole KMKR Ei ole KMKR 24.02.2021 Vestlus (0)

Pakkumise kirjeldus:

Hind sisaldab Teie poolt väljatoodud töid ning vajaminevaid materjale.
Arve tasumine 7 päeva jooksul, peale objekti üleandmist.

Parimat,
Kati

Kasutaja ikoon ID47351
Pakkuja profiil Väike nool paremale
3 100€ Sisaldab KM Sisaldab KM 24.02.2021 Vestlus (0)
Kasutaja ikoon ID58808
Pakkuja profiil Väike nool paremale
4 025€ Sisaldab KM Sisaldab KM 24.02.2021 Vestlus (0)
Kasutaja ikoon ID54702
Pakkuja profiil Väike nool paremale
4 380€ Ei ole KMKR Ei ole KMKR 24.02.2021 Vestlus (0)
Kasutaja ikoon ID52783
Pakkuja profiil Väike nool paremale
3 600€ Sisaldab KM Sisaldab KM 24.02.2021 Vestlus (0)

Pakkumise kirjeldus:

Teostame antud töö pakkumise, esimesel võimalusel ja teile sobival ajal.
Kõik vajaminev on meie poolt.Ka.materjal.

Kasutaja ikoon ID45063
Pakkuja profiil Väike nool paremale
3 550€ Sisaldab KM Sisaldab KM 24.02.2021 Vestlus (0)

Pakkumise kirjeldus:

Hind sisaldab Teie poolt soovitud töid koos vajaminevate materjalidega. Hind ei sisalda lõpukoristust!
Lugupidamisega Priit

Kasutaja ikoon ID55548
Pakkuja profiil Väike nool paremale
3 400€ KM lisandub KM lisandub 24.02.2021 Vestlus (0)

Pakkumise kirjeldus:

Tere.
Teen pakkumise teie tööle.
Katame kõik pinnad kinni mis vajavad katmist. Pahteldame vajadusel mitu korda, krundime ja 2x pinnavärv peale.
Olen lisanud siia kasutaja alla mõningad pildid, saate aimu millega tegeleme.
Töödega saame alustada vajadusel koheselt.
Puhtus, töökvaliteet ja kliendi rahulolu on meile kõige tähtsam.
Loodame me ... Rohkem

Kasutaja ikoon ID44093
Pakkuja profiil Väike nool paremale
3 750€ Sisaldab KM Sisaldab KM 25.02.2021 Vestlus (0)

Pakkumise kirjeldus:

Tere,

Teostame täpselt sarnaseid värskendustöid. Alustada võime esimesel võimalusel. Olemas kõik vahendid tööde teostamiseks ning vastavad teadmised materjali osades. Omaltpoolt pakume igakülgset abi ning konsultatsiooni kõikides küsimustes.
Tasumine toimub nii arvega kui ka sularahas.
Parimat!
A.

Kasutaja ikoon ID53275
Pakkuja profiil Väike nool paremale
4 290€ KM lisandub KM lisandub 25.02.2021 Vestlus (0)

Pakkumise kirjeldus:

Tere
Pakkumine sisaldab ~282m2 pinna ning akna ja uksepalede viimistlust koos materjaliga.
Kogenud töömehed ja kindel kvaliteet! Leping +2a garantiiaeg.

Lugupidamisega
A.K.

Kasutaja ikoon ID59759
Pakkuja profiil Väike nool paremale
3 000€ Sisaldab KM Sisaldab KM 26.02.2021 Vestlus (0)

Pakkumise kirjeldus:

Tere!

Olen usaldusväärne, töökas ja hea suhtleja. Mul on kogemus ehitusvaldkonnas (sh ka majade värvimises) kogemust üle 5 aasta.
Kindlasti on minu üheks boonuseks pro-aktiivsus ja iseseisev mõtlemisvõime, mis hoiab ära kõikvõimalikud jamad ja soodustab töö kiiret laabumist:)
Igaks juhuks ka lisan, et olen kanadalane ja räägin vaid ingl ... Rohkem

Kasutaja ikoon ID44917
Pakkuja profiil Väike nool paremale
4 000€ Ei ole KMKR Ei ole KMKR 26.02.2021 Vestlus (0)

Pakkumise kirjeldus:

Hinnapakkumine sisaldab tööd ja materjale.
Tööaeg 3 nädalat.

Kasutaja ikoon ID56753
Pakkuja profiil Väike nool paremale
3 100€ KM lisandub KM lisandub 26.02.2021 Vestlus (0)

Pakkumise kirjeldus:

Tere,
hind vastavalt hankes kirjeldatule.
Tööde käigus tekkinud prahi koristame enda järelt.

Kasutaja ikoon ID58038
Pakkuja profiil Väike nool paremale
4 500€ KM lisandub KM lisandub 26.02.2021 Vestlus (0)

Küsimused hanke korraldajale

Küsimus: private ID50106   24.02.2021 00:14
Tere,
Kas ettevalmistatud kipsipindaadest võimalik mõned pildid lisada hankesse?

Teavita reeglite rikkumisest

Korraldaja vastus: 24.02.2021 08:28

Tere,

Paigaldatud on OSB. Kipsi paigaldus on järgmisel nädalal, enne maalriga konsulteerides, et kõik saaks vastavalt maalritööde tegija soovidele paigaldatud (faasid jms).

Teavita reeglite rikkumisest

Küsimus: private ID47351   24.02.2021 12:12
Kui kaua maja küttes on olnud? Ärge kipsiga kiirustage enne kui osb on ilusti kuivanud. Võib juhtuda et kruvipead lööb lahti. Kas on ka mingeid karniise või muid kipsi erilahendusi?

Teavita reeglite rikkumisest

Korraldaja vastus: 24.02.2021 14:19

Tere,

Maja küttes on olnud 2-3 nädalat (eletktripuhuritega). Erilahendusi kipsil ei ole, kõik laed sirged, seinad samamoodi. Lagi tuleb valge, seinad heledates toonides.

Teavita reeglite rikkumisest

Lisa küsimus

Lisa küsimus

Minu pakkumine

Reeglid

Pakkumise kirjelduse väli on mõeldud pakkumise detailsemaks lahti kirjutamiseks. Pikema teksti mugavaks sisestamiseks klikkige kasti paremal ülaservas oleval ikoonil.
Pakkumist tehes on keelatud postitada enda kontaktandmeid (nimi, telefon, aadress jne). Me jälgime ja analüüsime pakkumisi, et vältida pettuseid ja reeglite rikkumisi.
Rikkumise puhul kasutajakonto blokeeritakse.

 

Vanemad teated:

Vaata kõiki

Sellel veebilehel kasutatakse küpsiseid. Kasutamist jätkates nõustute küpsiste kasutamisega.

Sulge
 
Minu pakkumine

Reeglid

Pakkumise kirjelduse väli on mõeldud pakkumise detailsemaks lahti kirjutamiseks. Pikema teksti mugavaks sisestamiseks klikkige kasti paremal ülaservas oleval ikoonil.
Pakkumist tehes on keelatud postitada enda kontaktandmeid (nimi, telefon, aadress jne). Me jälgime ja analüüsime pakkumisi, et vältida pettuseid ja reeglite rikkumisi.
Rikkumise puhul kasutajakonto blokeeritakse.