+ Lisa oma töö      

Otsid ehitajat "Fassaaditööd" valdkonnast?

Parima pakkumise ja teostaja leidmiseks lisa oma töö.

Puiteramu renoveerimine

ID 56851

664 vaatamist

Prindi

  • check Pakkumiste tegemine
    kuni 20.03.2021
  • check Võitja valik kuni
    28.03.2021
  • 3 Töö teostamine
    ja hinnang
Hanke lõpp: L, 20. märts, 2021
Maakond: Harjumaa
Linn: Tallinn
Tööde algus: E, 05. aprill, 2021 (Soovituslik)
Tööde lõpp: P, 31. oktoober, 2021 (Soovituslik)
Ehitusmaterjalid: Töö tegija poolt
Soovin pakkumisi: Summa kogu projektile

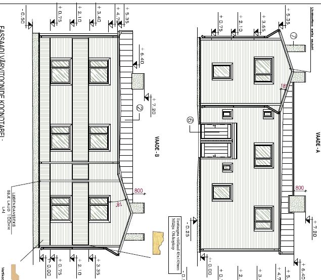
Töö sisu

Soovin pakkumist järgmisele:
- vana fassaadi (krohvitud plaat ning laudis; osaliselt voodrilaud) eemaldamine, sh saepuru soojustusmaterjali eemaldamine seinast
- terve majaseina katmine ühes tasapinnas 10 cm täiendavate voodrilaua alusliistudega (et võimaldada lisaks eelnevale + 10 cm kivivilla paigaldus)
- fassaadi soojustamine kivivllaga (15 + 10 cm), lisaks tuuletõkkeplaat
- uue puitfassaadi paigaldus (voodrilaud vastavalt projektile)
- kõikide akende vahetus puitalumiiniumakende vastu (avatäited on kajastatud projektis ning avatäidete koondis), sh liistud ning viimistlus
- katusealuse soojustamine kivivllaga (min 30 cm)
- sokli soojustamine (10 cm soojustusplaat) ja krohvimine (vastavalt projektile)
- esimese korruse laudispõranda (põrandalaud, parkett) lahti võtmine ja soojustamine ca 40 m2 osas (20 cm kivivill). Tagasi läheb uus laudis (min 28 mm) ning olemasolev puitparkett (ca 2,2 x 0,2 m plaadid) koos alusmattidega
Soovin saada hinnad tööde kaupa

Pildid, video ja failid

Hanke korraldaja: eraisik ID59710

Pakkumised

Pakkumisi kokku: 4

Ettevõte Summa Käibemaks Lisatud Vestlus
Kasutaja ikoon ID4459
Pakkuja profiil Väike nool paremale
28 000€ Ei ole KMKR Ei ole KMKR 24.02.2021 Vestlus (0)

Pakkumise kirjeldus:

Hinnapakkumine tehtud hankes oleva tööde sisu, piltide ja jooniste põhjal uue fassadi ehitusele koos materjalidega
Vana fassadikatete ja soojustusmaterjali(saepuru) eemaldus ja utiliseerimine 3600€
Uue fassadi ehitus ( karkassi paigaldus , soojustuse 100+150mm paigaldus, tuuletõkke paigaldus, fassaadi ja akende liitekohtade tihendamine ja teipimine ... Rohkem

Kasutaja ikoon ID54702
Pakkuja profiil Väike nool paremale
39 500€ Ei ole KMKR Ei ole KMKR 24.02.2021 Vestlus (0)
Kasutaja ikoon ID58961
Pakkuja profiil Väike nool paremale
24 000€ KM lisandub KM lisandub 24.02.2021 Vestlus (0)
Kasutaja ikoon ID54854
Pakkuja profiil Väike nool paremale
32 200€ KM lisandub KM lisandub 15.03.2021 Vestlus (0)

Pakkumise kirjeldus:

Pakkumine kogu projektile

Küsimused hanke korraldajale

Hanke korraldajale ei ole veel küsimusi esitatud.

Lisa küsimus

Lisa küsimus

Minu pakkumine

Reeglid

Pakkumise kirjelduse väli on mõeldud pakkumise detailsemaks lahti kirjutamiseks. Pikema teksti mugavaks sisestamiseks klikkige kasti paremal ülaservas oleval ikoonil.
Pakkumist tehes on keelatud postitada enda kontaktandmeid (nimi, telefon, aadress jne). Me jälgime ja analüüsime pakkumisi, et vältida pettuseid ja reeglite rikkumisi.
Rikkumise puhul kasutajakonto blokeeritakse.

 

Teisi töid samas valdkonnas

Valdkonnas "Fassaaditööd" on 12 aktiivset tööd

Akende ja viilude parandus ja värvimine

Asukoht: Valgamaa, Valga
Aega jäänud: 12h 37 min
Tehtud pakkumisi: 3

Eramaja vintskapide laudise paigaldus

Asukoht: Pärnumaa, Pärnu-Jaagupi
Aega jäänud: 9p 12h
Tehtud pakkumisi: 2

Vanemad teated:

Vaata kõiki

Sellel veebilehel kasutatakse küpsiseid. Kasutamist jätkates nõustute küpsiste kasutamisega.

Sulge
 
Minu pakkumine

Reeglid

Pakkumise kirjelduse väli on mõeldud pakkumise detailsemaks lahti kirjutamiseks. Pikema teksti mugavaks sisestamiseks klikkige kasti paremal ülaservas oleval ikoonil.
Pakkumist tehes on keelatud postitada enda kontaktandmeid (nimi, telefon, aadress jne). Me jälgime ja analüüsime pakkumisi, et vältida pettuseid ja reeglite rikkumisi.
Rikkumise puhul kasutajakonto blokeeritakse.