+ Lisa oma töö      

Otsid ehitajat "Üldehitus" valdkonnast?

Parima pakkumise ja teostaja leidmiseks lisa oma töö.

Hange on lõppenud!

Võitjaks osutus kasutaja ID 36326

Korraldaja hinnang tehtud tööle

5.0
25.03.2021
Töökiirus: 12345
Kvaliteet: 12345
Hind: 12345

Väga kiire ja meeldiv koostöö.Pärast oli kõik puhas ja korda tehtud. Kvaliteediga jäin rahule. - Kristo M.

Ukseava lõikamine

ID 56575

1171 vaatamist

Prindi

  • check Pakkumiste tegemine
    kuni 08.03.2021
  • check Võitja valik kuni
    08.03.2021
  • 3 Töö teostamine
    ja hinnang
Hanke lõpp: E, 8. märts, 2021
Maakond: Viljandimaa
Tööde algus: L, 01. mai, 2021 (Soovituslik)
Tööde lõpp: E, 31. mai, 2021 (Soovituslik)
Ehitusmaterjalid: Töö tegija poolt
Soovin pakkumisi: Summa kogu projektile

Töö sisu

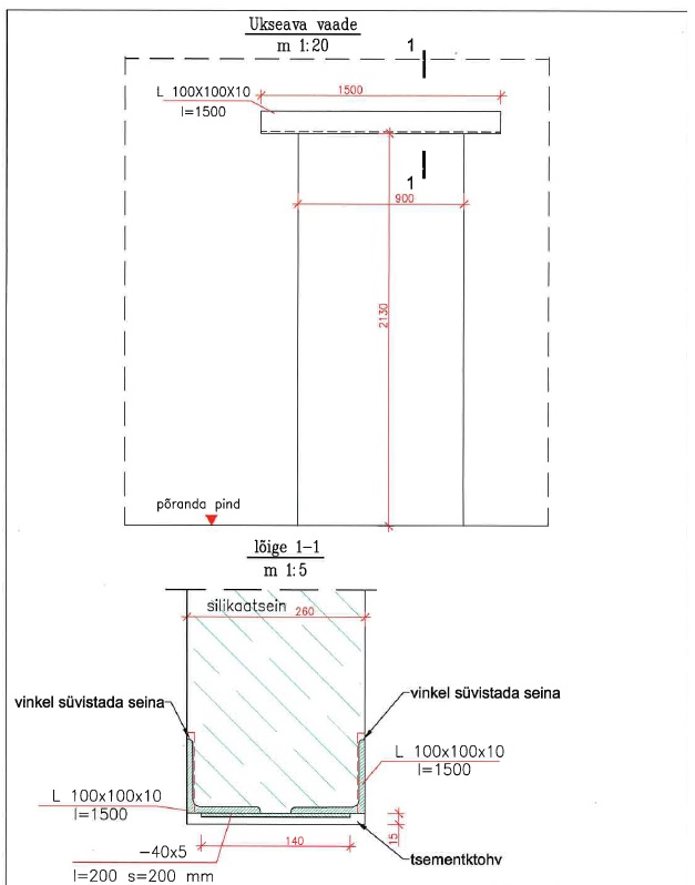
Ukseava lõikamine vastavalt projektile. Töö peab sisaldama vajalikke töid
(märg)lõikamist, silluse paigaldust ja materjale.
Sein on tehtud tuhaplokist. Tööde teostaja peab dokumenteerima tegevust selliselt, et omavalitsusest oleks võimalik saada kasutusluba. Ehitusteatis on olemas. Objekt asub korterelamu teisel korrusel.

Pildid, video ja failid

Hanke korraldaja: eraisik ID59486

Pakkumised

Pakkumisi kokku: 2

Ettevõte Summa Käibemaks Lisatud Vestlus
Kasutaja ikoon ID54172
Pakkuja profiil Väike nool paremale
960€ KM lisandub KM lisandub 07.03.2021 Vestlus (0)

Pakkumise kirjeldus:

Tere

Pakkumine sisaldab kõiki hankes kirjeldatud töid.

Kasutaja ikoon ID36326
Pakkuja profiil Väike nool paremale
960€ Ei ole KMKR Ei ole KMKR 07.03.2021 Vestlus (0)

Pakkumise kirjeldus:

Ehitusööd koos vajaliku täitedokumentatsiooniga.

Küsimused hanke korraldajale

Küsimus: private ID45731   12.02.2021 22:03
Tere.
Joonisel on silikaatsein, hanke kirjelduses tuhaplokk sein?
Kumb siis täpsemalt, tuhaplokk ei pruugi kannatada sellist toestust.
Kas projekteerija koostas joonise kohapeal olukorda hinnates või hoone andmeid vaadates kuskil arvutis?
Mitme korruseline hoone?
Mis on vahelagede materjaliks, paneel, raudbetoon?
Tänan

Teavita reeglite rikkumisest

Korraldaja vastus: 13.02.2021 09:11

Tere
Projekteerija ja ka ehitusinsener käis kohal ning langetas sellise otsuse.
Tegemist on 2 -korruselise kortermajaga, kus on kokku 4 korterit. Ukseava on mõeldud 2 korteri ühendamiseks. Vahelaeks on paneel.

Teavita reeglite rikkumisest

Lisa küsimus

Lisa küsimus

Minu pakkumine

Reeglid

Pakkumise kirjelduse väli on mõeldud pakkumise detailsemaks lahti kirjutamiseks. Pikema teksti mugavaks sisestamiseks klikkige kasti paremal ülaservas oleval ikoonil.
Pakkumist tehes on keelatud postitada enda kontaktandmeid (nimi, telefon, aadress jne). Me jälgime ja analüüsime pakkumisi, et vältida pettuseid ja reeglite rikkumisi.
Rikkumise puhul kasutajakonto blokeeritakse.

 

Teisi töid samas valdkonnas

Valdkonnas "Üldehitus" on 27 aktiivset tööd

Terassi õlitamine, 13,7 ruutu

Asukoht: Harjumaa, Saue
Aega jäänud: 5p 16h
Tehtud pakkumisi: 4

Eramaja ehitus

Asukoht: Harjumaa, Suurupi
Aega jäänud: 4p 16h
Tehtud pakkumisi: 4

Vanemad teated:

Vaata kõiki

Sellel veebilehel kasutatakse küpsiseid. Kasutamist jätkates nõustute küpsiste kasutamisega.

Sulge
 
Minu pakkumine

Reeglid

Pakkumise kirjelduse väli on mõeldud pakkumise detailsemaks lahti kirjutamiseks. Pikema teksti mugavaks sisestamiseks klikkige kasti paremal ülaservas oleval ikoonil.
Pakkumist tehes on keelatud postitada enda kontaktandmeid (nimi, telefon, aadress jne). Me jälgime ja analüüsime pakkumisi, et vältida pettuseid ja reeglite rikkumisi.
Rikkumise puhul kasutajakonto blokeeritakse.