+ Lisa oma töö      

Otsid ehitajat "Renoveerimine" valdkonnast?

Parima pakkumise ja teostaja leidmiseks lisa oma töö.

Üksikelamu katusekorruse väljaehitamine

ID 55794

753 vaatamist

Prindi

  • check Pakkumiste tegemine
    kuni 20.01.2021
  • check Võitja valik kuni
    27.01.2021
  • 3 Töö teostamine
    ja hinnang
Hanke lõpp: K, 20. jaanuar, 2021
Maakond: Järvamaa
Muu asula: Lõõla küla
Tööde algus: E, 04. oktoober, 2021 (Soovituslik)
Tööde lõpp: E, 03. oktoober, 2022 (Soovituslik)
Ehitusmaterjalid: Töö tegija poolt
Soovin pakkumisi: Summa kogu projektile

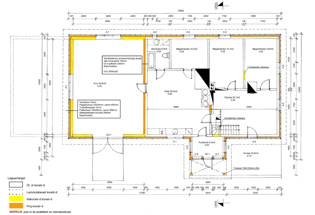
Töö sisu

Hoone katusekorruse välisseinad puitkarkassil 150x50mm, samm 600mm.
Seinakarkass isoleerida 150mm mineraalvillaga, seinte välisküljele paigaldada
lisakarkass 150x50mm, samm 600mm, lisasoojustuse (150mm mineraalvill)
paigaldamiseks. Katusekorruse välisseina karkass väljast katta 13mm
tuuletõkkeplaadiga, tuuletõkke plaatide vuugid tihendada. Seestpoolt katta
katusekorruse välisseinad aurutõkke alusel 15mm metallkarkassil kipsplaadiga.

Olemasolevad kandvad seinad kuuluvad hoones valdavalt säilitamisele, v a
olemasoleva köögi ja elutoa vaheline sein, mis osaliselt ehitatakse ümber, kasutades
puitkarkassi 150x50mm, samm 600mm. Lammutustöödel tagada olemasolevate
säilitatavate konstruktsioonide püstuvus.

Projekteeritavad mittekandvad vaheseinad katusekorrusel metallkarkassil
kipsplaadist. Seinakarkass isoleerida 100mm mineraalvillaga. Niiskete ruumide
seinad katta niiskustõkkega.

Olemasolev põhi- ja katusekorruse vaheline lagi puittaladel 150x100mm, samm
~1000mm. Vahelae rekonstrueerimise käigus kontrollida olemasoleva talastiku
seisukorda ning amortiseerunud vahelae puitkonstruktsioonid plommida või vajadusel
väljavahetada. Olemasolev vahelae isolatsioon eemaldada ning utiliseerida.
Katusekorrusele lisanduvate täiendavate koormuste kompenseerimiseks paigaldada
vahelae rekonstrueerimise käigus lisatalastik 200x50mm, samm ~1000mm.
Katusekorruse põrandatalastik katta 22mm puitlaastplaadiga ning viimistleda.
Vahelagi isoleerida 200mm mineraalvillaga. Põhikorruse lae viimistlusena säilub
olemasolev voodrilaud.
Katusekorruse lagi rekonstrueerida – paigaldada laetaladeks puittalad 150x50mm,
samm ~500mm. Lagi isoleerida 400mm mineraalvillaga ning viimistleda altpoolt
aurutõkke alusel 18mm voodrilauaga 25x100mm roovituse alusel.
Projekteeritava rõdu põranda kandetalastik 200x50mm, samm 600mm. Kandetaladele
paigaldada täiendav puitkarkass 100x50mm, samm 600mm lisasoojustuse
paigaldamiseks. Rõdu aluspõrand isoleerida kokku 300mm mineraalvillaga.

Põrandakarkass katta 22mm niiskuskindla vineeriga 13mm tuuletõkkeplaadi ja
50x50mm dist-liistu alusel ning katta 2x SBS-rullmaterjaliga. Rõdu põranda
viimistluseks kasutada puitreste.
Elamu mahus paikneva kuuri lagi kõrge katuslaena.

Põrandatel eluruumides parkett, san-ruumi põrand viimistleda keraamiliste
plaatidega. Projekteeritav terrass kestvuspuidust põrandalauadadest puittalastiku
200x50mm, samm 600mm alusel.

Välistrepid ja sisetrepp puitkanduritel puidust astmelaudadega.

Pildid, video ja failid

Hanke korraldaja: eraisik ID51166

Pakkumised

Pakkumisi kokku: 2

Ettevõte Summa Käibemaks Lisatud Vestlus
Kasutaja ikoon ID58725
Pakkuja profiil Väike nool paremale
18 765€ Sisaldab KM Sisaldab KM 03.01.2021 Vestlus (0)
Kasutaja ikoon ID46180
Pakkuja profiil Väike nool paremale
35 450€ Sisaldab KM Sisaldab KM 05.01.2021 Vestlus (0)

Küsimused hanke korraldajale

Küsimus: private ID46180   31.12.2020 14:12
Küsimused hanke korraldajale:
Avatäited on olemas?
Mida kujutab endast rõdu puitrest? Komposiit moodulid või immutatud terassilaud?
Kas trepi kohta saaks lisainfot, avatud tagusega või kinnine, mis puidust, käsipuude kuju ja kinnitus jne?
Parketi tüüp? Plaatide tüüp?
Terassilaua tüüp ja toon?
Kuuri põranda lahendus?
Laudise tüüp ja toon?
Maalritööd? Liistud?
Katuse olukord? Kas pööningul on toolvärk vms? Pilt aitaks aru saada hetke olukorrast.
Akende/uste ümbrus? Liistud? Pale suurus?
Krohvi toon?
Elektritööd?
Terassi taldmiku soov?
Palun postitada pilte olemasolevast olukorrrast seest ja väljast!

Lugupidamisega
Peeter

Teavita reeglite rikkumisest

Korraldaja vastus: 12.01.2021 21:01

Avatäited ei ole, vajame.
Rõdu puitresti, trepi, parketi, plaatide, terrassilaua, kuuri põranda ja laudise puhul puhul võiksite välja pakkuda oma nägemuse, eelistatult odavamapoolse.
Maalritöid, liiste, elektritöid, akende, uste ümbruse töid , elektritöid hetkel ei sooviks.
Katus läheb vahetamisele eraldi hankega ja kardetavasti pildid praegusest olukorrast väga juurde ei annaks.

Teavita reeglite rikkumisest

Lisa küsimus

Lisa küsimus

Minu pakkumine

Reeglid

Pakkumise kirjelduse väli on mõeldud pakkumise detailsemaks lahti kirjutamiseks. Pikema teksti mugavaks sisestamiseks klikkige kasti paremal ülaservas oleval ikoonil.
Pakkumist tehes on keelatud postitada enda kontaktandmeid (nimi, telefon, aadress jne). Me jälgime ja analüüsime pakkumisi, et vältida pettuseid ja reeglite rikkumisi.
Rikkumise puhul kasutajakonto blokeeritakse.

 

Teisi töid samas valdkonnas

Valdkonnas "Renoveerimine" on 2 aktiivset tööd

no-img Pilt puudub

Renoveerimisprojekti koostamine

Asukoht: Läänemaa, Matsalu
Aega jäänud: 2p 12h
Tehtud pakkumisi: 4

Saunamaja renoveerimine väljastpoolt

Asukoht: Ida-Virumaa, Kiviõli
Aega jäänud: 12h 59 min
Tehtud pakkumisi: 0

Vanemad teated:

Vaata kõiki

Sellel veebilehel kasutatakse küpsiseid. Kasutamist jätkates nõustute küpsiste kasutamisega.

Sulge
 
Minu pakkumine

Reeglid

Pakkumise kirjelduse väli on mõeldud pakkumise detailsemaks lahti kirjutamiseks. Pikema teksti mugavaks sisestamiseks klikkige kasti paremal ülaservas oleval ikoonil.
Pakkumist tehes on keelatud postitada enda kontaktandmeid (nimi, telefon, aadress jne). Me jälgime ja analüüsime pakkumisi, et vältida pettuseid ja reeglite rikkumisi.
Rikkumise puhul kasutajakonto blokeeritakse.