+ Lisa oma töö      

Otsid ehitajat "Üldehitus" valdkonnast?

Parima pakkumise ja teostaja leidmiseks lisa oma töö.

Eramu rekonstrueerimine

ID 55652

951 vaatamist

Prindi

  • check Pakkumiste tegemine
    kuni 08.01.2021
  • check Võitja valik kuni
    15.01.2021
  • 3 Töö teostamine
    ja hinnang
Hanke lõpp: R, 8. jaanuar, 2021
Maakond: Harjumaa
Muu asula: Harku vald, Türisalu küla
Tööde algus: E, 11. jaanuar, 2021 (Soovituslik)
Tööde lõpp: L, 31. juuli, 2021 (Soovituslik)
Ehitusmaterjalid: Töö tegija poolt
Soovin pakkumisi: Summa kogu projektile

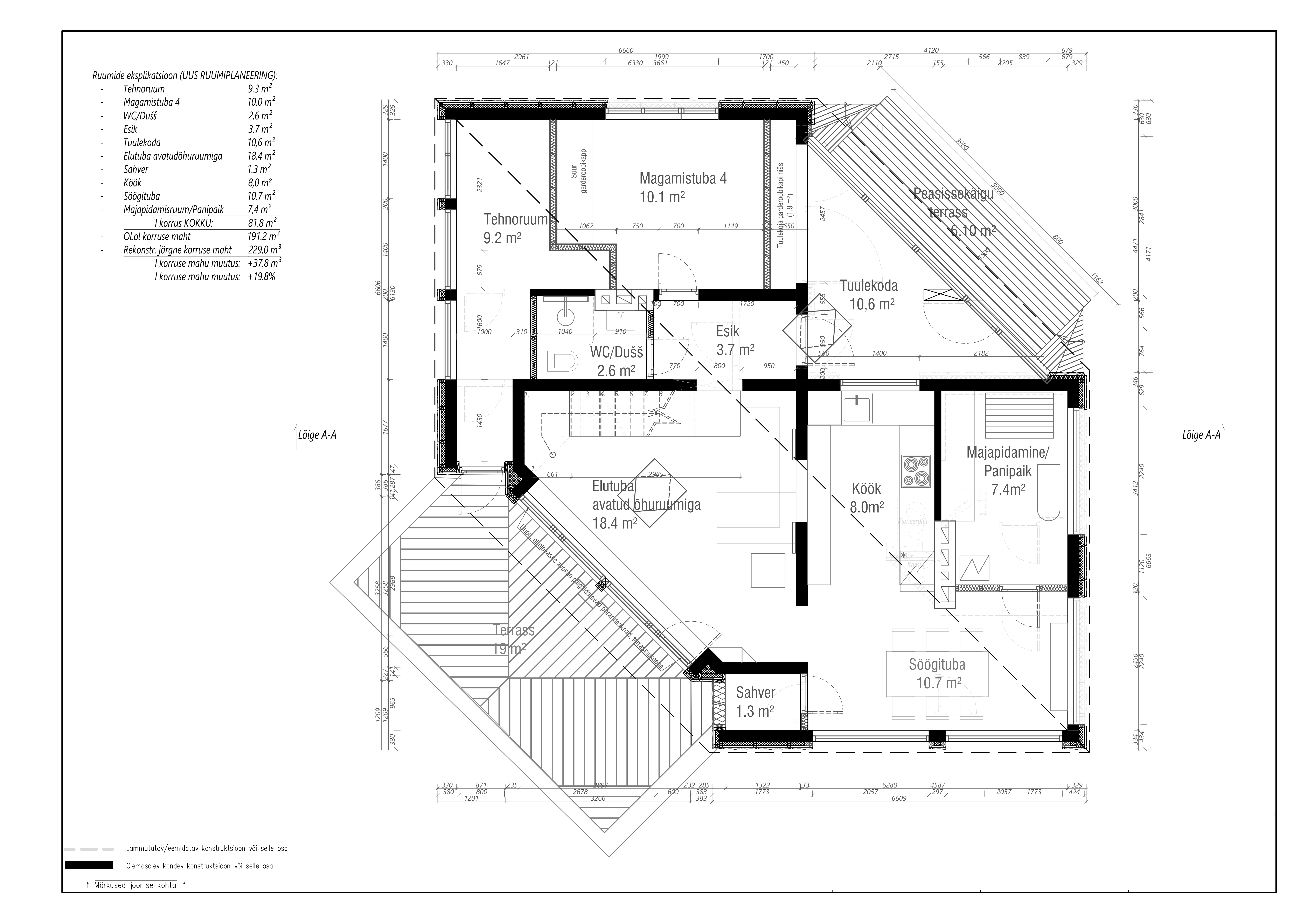
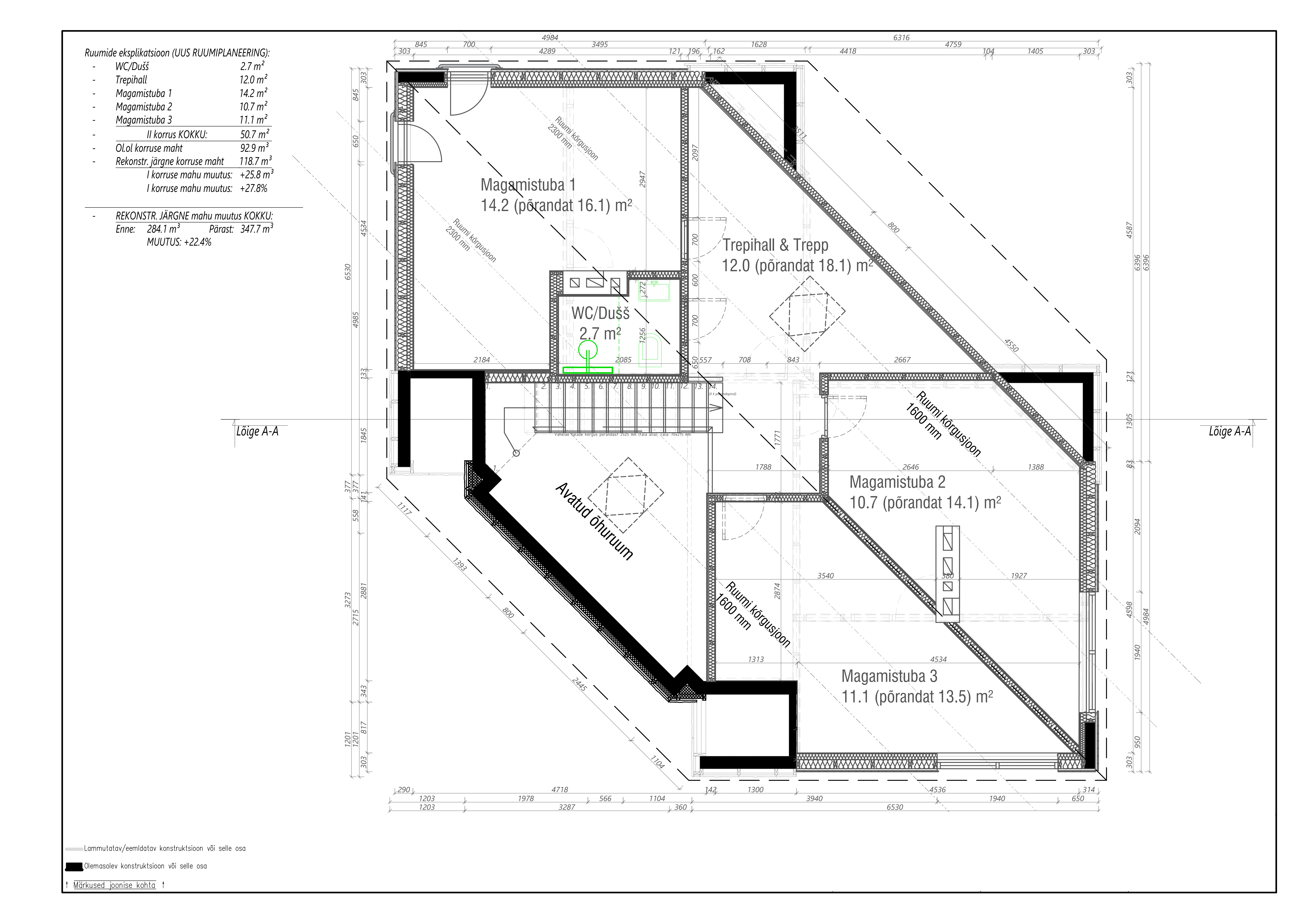
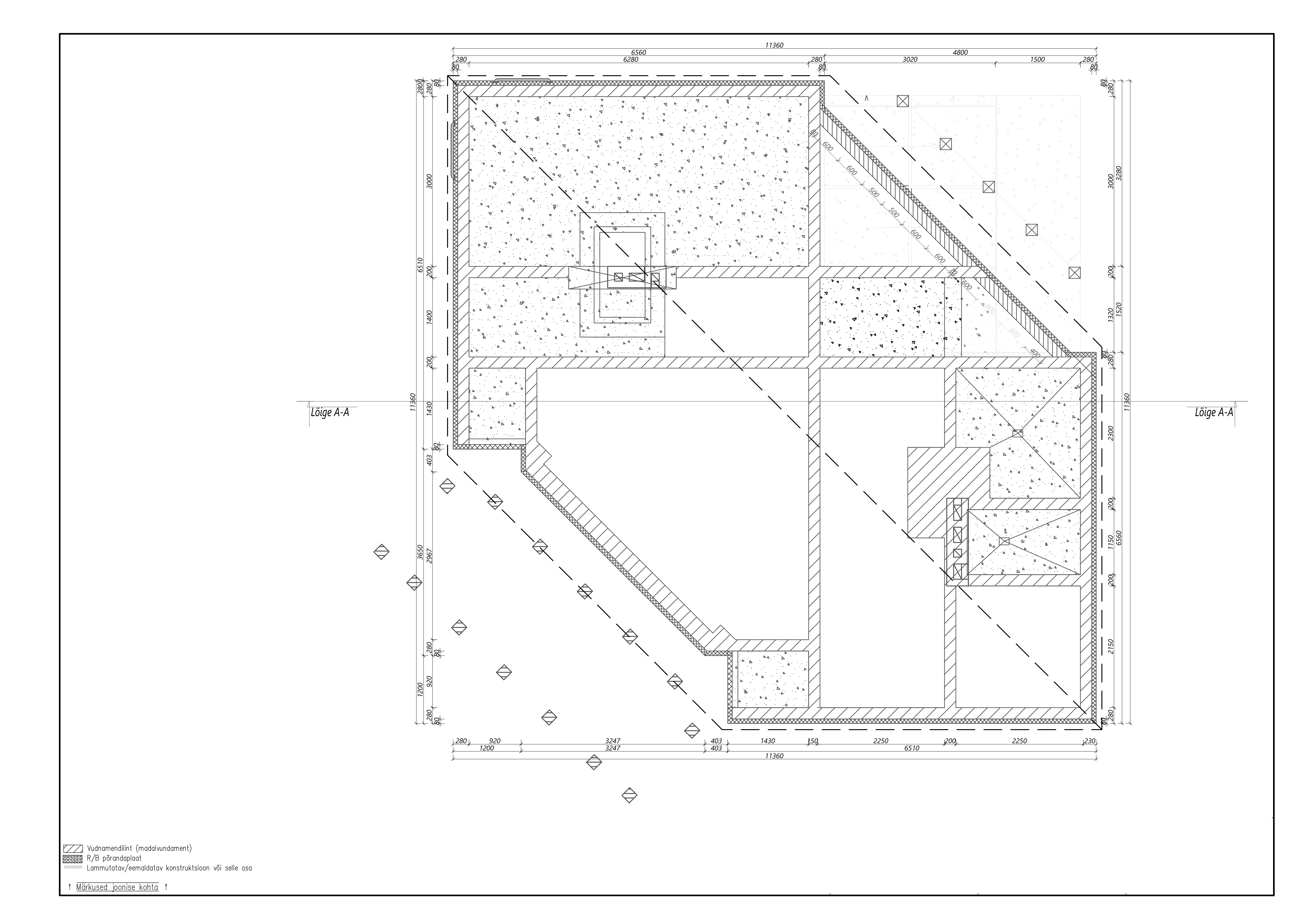
Töö sisu

Hoone on kasutusele võetud ca 1990-91. Soov rekonstrueerida täielikult ja kasutusele võtta eramuna.
NB! Hange korraldatud küll ettevõtte konto alt, ent hankijaks on siiski eraisik!

Tööde piiritlus:
o Ol.olev soojustatud fassaad jääb väljast siinkohal muutmata, välja arvatud uute seinte liitumiskohtades vajalikud ühendamised ja avade muutmisest tulenevad korrektuurid.
o lammutuse käigus jäävad alles kõik kandvad konstruktsioonid (välisseinad, kandvad vaheseinad, vahelae peatalastiku ja sarikasüsteem ning korstnajalad (pitsid eemaldatakse ja korstnad sulgetakse katusekonstruktsiooni sisse)

Üldine eesmärk:
o ehitada kinni mõlemas hoone otsas asuvad rõdud
o vahetada välja katus (kate, soojustus, sisemine vooder)
- ühele (edela kalle) tuleb Roofit.Solar'i PV-paneelidega katusekatte süsteem
o rajada peasissepääsu kolmnurksesse katusealusesse soppi tuulekoda
- lahendatakse madalvundamendi ja PVC-klaas fassaadiga
- sisse valatakse „ujuv“ alt soojustatud r/b plaat
- paigaldatakse põrandaküttekontuur
o lahendada ümber ruumiprogramm vastavalt EP-s kajastatule
- muuta avatäidete paiknemist
- sillata uued avad enne avade välja lõhkumist
- korrigeerida fassaad avatäidete ümber akende-uste paigaldamise järel
o vahetada välja põrand 1. korrusel
- talastikul põrand asendada alt soojustatud "ujuva" betoonplaadiga
- paigaldada põrandaküttekontuurid ja tehnovõrgud
o vahetada välja vahelagi
- põrandale paigaldada põrandaküttekontuurid
o paigaldada uus trepp
o teostada ventilatsiooni ja küttepaigaldise installatsioon
- sealhulgas õhk-vesi küttesüsteem terviklikult
- sealhulgas soojustagastusega ventilatsioonisüsteem terviklikult
o teostada elektri ja nõrkvoolupaigaldise installatsioon (v.a lõppühendused)
- sh PV-paneelide lõppühendus inverteriga ja liitumiskilbiga
- sh maakaabli vahetus hoone tehnoruumist LK-sse võrguvaldaja mastil
o teostada viimistlus vastavalt projekti seletuskirjale ja/või täpsustustele tööde käigus

Lahendused täpsemalt kirjeldatud lisatud projektiga.

Pildid, video ja failid

Hanke korraldaja: ettevõte ID40623

Pakkumised

Pakkumisi kokku: 3

Ettevõte Summa Käibemaks Lisatud Vestlus
Kasutaja ikoon ID57593
Pakkuja profiil Väike nool paremale
84 500€ KM lisandub KM lisandub 08.01.2021 Vestlus (0)

Pakkumise kirjeldus:

Tere

Loetletud töödele pakkumine.

M

Kasutaja ikoon ID50669
Pakkuja profiil Väike nool paremale
227 500€ Sisaldab KM Sisaldab KM 08.01.2021 Vestlus (0)

Pakkumise kirjeldus:

Tere. Pakkumine kogu projektile

Kasutaja ikoon ID58217
Pakkuja profiil Väike nool paremale
150 000€ KM lisandub KM lisandub 08.01.2021 Vestlus (0)

Pakkumise kirjeldus:

Pakkumine sisaldab ehitusteenust ja materjale, vastavalt teie antud kirjeldustele.

Küsimused hanke korraldajale

Hanke korraldajale ei ole veel küsimusi esitatud.

Lisa küsimus

Lisa küsimus

Minu pakkumine

Reeglid

Pakkumise kirjelduse väli on mõeldud pakkumise detailsemaks lahti kirjutamiseks. Pikema teksti mugavaks sisestamiseks klikkige kasti paremal ülaservas oleval ikoonil.
Pakkumist tehes on keelatud postitada enda kontaktandmeid (nimi, telefon, aadress jne). Me jälgime ja analüüsime pakkumisi, et vältida pettuseid ja reeglite rikkumisi.
Rikkumise puhul kasutajakonto blokeeritakse.

 

Teisi töid samas valdkonnas

Valdkonnas "Üldehitus" on 29 aktiivset tööd

Maja värvimine

Asukoht: Harjumaa, Saue
Aega jäänud: 1p 17h
Tehtud pakkumisi: 6

Vanemad teated:

Vaata kõiki

Sellel veebilehel kasutatakse küpsiseid. Kasutamist jätkates nõustute küpsiste kasutamisega.

Sulge
 
Minu pakkumine

Reeglid

Pakkumise kirjelduse väli on mõeldud pakkumise detailsemaks lahti kirjutamiseks. Pikema teksti mugavaks sisestamiseks klikkige kasti paremal ülaservas oleval ikoonil.
Pakkumist tehes on keelatud postitada enda kontaktandmeid (nimi, telefon, aadress jne). Me jälgime ja analüüsime pakkumisi, et vältida pettuseid ja reeglite rikkumisi.
Rikkumise puhul kasutajakonto blokeeritakse.