+ Lisa oma töö      

Otsid ehitajat "Siseviimistlustööd" valdkonnast?

Parima pakkumise ja teostaja leidmiseks lisa oma töö.

Sisetööde hange

ID 55647

807 vaatamist

Prindi

  • check Pakkumiste tegemine
    kuni 14.12.2020
  • check Võitja valik kuni
    17.12.2020
  • 3 Töö teostamine
    ja hinnang
Hanke lõpp: E, 14. detsember, 2020
Maakond: Pärnumaa
Linn: Pärnu
Tööde algus: E, 04. jaanuar, 2021 (Soovituslik)
Tööde lõpp: R, 05. märts, 2021
Ehitusmaterjalid: Töö tellija poolt
Soovin pakkumisi: Summa kogu projektile

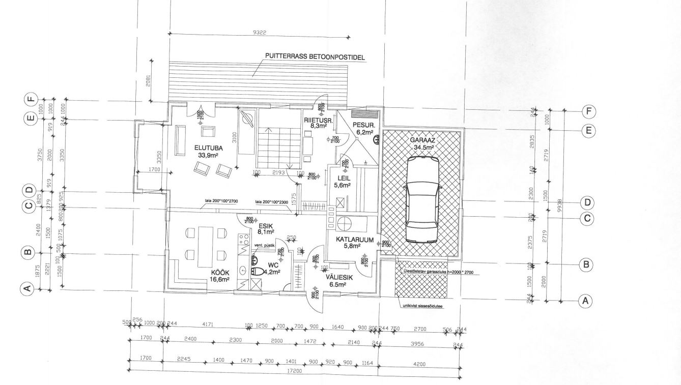
Töö sisu

Plaaditav seinapind (Duširuum) 22,99 m2
Plaaditavad põrandad (saun, duširuum, eesruum, wc, esik) 29,8 m2
Parkett+alusvaip (köök, suurtuba, koridor) 64,71 m2
Seinad pahtel+värv 166,08 m2
Laed pahtel+värv 61,38 m2
Põrandakütte kuivpaigaldus 89,28 m2
Suna seinte aluspinnatööd (Kingspan+roovitus) 21,62 m2
Sauna laudis 13,26 m2
Dekoratiivkivi plaadid sauna 6 m2
Roovitus + laelaudis laudis 27,9 m2
Köögi seina plaatimine 1,7 m2
Laelaudise liist 63 jm
Põrandaliist 81,32 jm
Duširuumi, sauna, WC hüdro 16m2
Wc potti paigaldus.
2x tuletõkkeuste paigaldus
4xSiseuste paigaldus
1x Saunaukse paigaldus

Pildid, video ja failid

Hanke korraldaja: eraisik ID58479

Pakkumised

Pakkumisi kokku: 5

Ettevõte Summa Käibemaks Lisatud Vestlus
Kasutaja ikoon ID58478
Pakkuja profiil Väike nool paremale
4 904€ KM lisandub KM lisandub 09.12.2020 Vestlus (0)

Pakkumise kirjeldus:

Plaaditav seinapind (Duširuum) 22,99 m2-412 eur
Plaaditavad põrandad (saun, duširuum, eesruum, wc, esik) 29,8 m2-506 eur
Parkett+alusvaip (köök, suurtuba, koridor) 64,71 m2-388 eur
Seinad pahtel+värv 166,08 m2-1495 eur
Laed pahtel+värv 61,38 m2-613 eur
Põrandakütte kuivpaigaldus 89,28 m2-267 eur
Suna seinte aluspinnatööd (Kingspan+roovitus) ... Rohkem

Kasutaja ikoon ID58471
Pakkuja profiil Väike nool paremale
6 100€ Ei ole KMKR Ei ole KMKR 09.12.2020 Vestlus (0)
Kasutaja ikoon ID57640
Pakkuja profiil Väike nool paremale
5 500€ Sisaldab KM Sisaldab KM 10.12.2020 Vestlus (0)
Kasutaja ikoon ID49995
Pakkuja profiil Väike nool paremale
6 980€ Ei ole KMKR Ei ole KMKR 11.12.2020 Vestlus (0)

Pakkumise kirjeldus:

Tere, ainult töö.

Kasutaja ikoon ID58071
Pakkuja profiil Väike nool paremale
5 610€ KM lisandub KM lisandub 14.12.2020 Vestlus (0)

Pakkumise kirjeldus:

Duširuumi plaatimine 23 m2 414 eur
Põrandateplaatimine 30 m2 540 eur
Parketi paigaldus 65 m2 520 eur
Seinte maalerdus 166 m2 1328 eur
Lae maalerdus 61 m2 488 eur
Põrandakütte paigaldus 89m2 288 eur
Sauna aluspinna tööd 22 m2 432 eur
Sauna laudise paigaldus 13 m2 130 eur
Dekoratiivkivi paigaldus 6 m2 108 eur
Roovitus laelaudis 28 m2 390 eur
... Rohkem

Küsimused hanke korraldajale

Küsimus: private ID57640   08.12.2020 22:31
Tere

Kas töö on materjalidega?

Head

Teavita reeglite rikkumisest

Korraldaja vastus: 08.12.2020 22:51

Ehitusmaterjalid: Hanke korraldaja poolt

Teavita reeglite rikkumisest

Küsimus: private ID57640   09.12.2020 20:06
Kas katlaruumi läbiviigud tuletõkkesektsioonidest on eelnevalt tihendatud vastavate materjalidega, mis Päästekas nõuab? Kui ei ole, kas soovite ka need teha nii nagu peab?

Teavita reeglite rikkumisest

Korraldaja vastus:
Hanke korraldaja ei ole küsimusele veel vastanud

Lisa küsimus

Lisa küsimus

Minu pakkumine

€

Reeglid

Pakkumise kirjelduse väli on mõeldud pakkumise detailsemaks lahti kirjutamiseks. Pikema teksti mugavaks sisestamiseks klikkige kasti paremal ülaservas oleval ikoonil.
Pakkumist tehes on keelatud postitada enda kontaktandmeid (nimi, telefon, aadress jne). Me jälgime ja analüüsime pakkumisi, et vältida pettuseid ja reeglite rikkumisi.
Rikkumise puhul kasutajakonto blokeeritakse.

 

Teisi töid samas valdkonnas

Valdkonnas "Siseviimistlustööd" on 23 aktiivset tööd

Seinte värvimine

Asukoht: Harjumaa, Tallinn
Aega jäänud: 2h 52 min
Tehtud pakkumisi: 7

Seinte pahteldus ja värvimine

Asukoht: Harjumaa, Türisalu
Aega jäänud: 3p 2h
Tehtud pakkumisi: 7

Vanemad teated:

Vaata kõiki

Sellel veebilehel kasutatakse küpsiseid. Kasutamist jätkates nõustute küpsiste kasutamisega.

Sulge
 
Minu pakkumine
€

Reeglid

Pakkumise kirjelduse väli on mõeldud pakkumise detailsemaks lahti kirjutamiseks. Pikema teksti mugavaks sisestamiseks klikkige kasti paremal ülaservas oleval ikoonil.
Pakkumist tehes on keelatud postitada enda kontaktandmeid (nimi, telefon, aadress jne). Me jälgime ja analüüsime pakkumisi, et vältida pettuseid ja reeglite rikkumisi.
Rikkumise puhul kasutajakonto blokeeritakse.