+ Lisa oma töö      

Otsid ehitajat "Ehituse peatöövõtt" valdkonnast?

Parima pakkumise ja teostaja leidmiseks lisa oma töö.

Renoveerimine + laiendamine // 2-toalise korteri ümberehitus soklikorrusele

ID 55516

808 vaatamist

Prindi

  • check Pakkumiste tegemine
    kuni 13.12.2020
  • check Võitja valik kuni
    14.12.2020
  • 3 Töö teostamine
    ja hinnang
Hanke lõpp: P, 13. detsember, 2020
Maakond: Harjumaa
Linn: Tallinn
Muu asula: Pelgulinn
Tööde algus: E, 01. märts, 2021 (Soovituslik)
Tööde lõpp: K, 30. juuni, 2021 (Soovituslik)
Ehitusmaterjalid: Töö tegija poolt
Soovin pakkumisi: Summa kogu projektile

Töö sisu

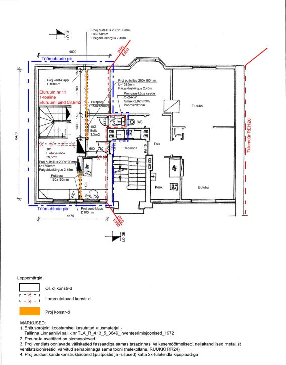
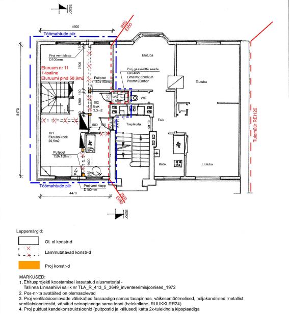
Soovin leida väikesele ümberehitusele peatöövõtja, kes oleks võimeline pakkuma "võtmed kätte" lahendust ja täielikku projektijuhtimist. Korteri renoveerimiseks on väljastatud ehitusteatis ja eelprojekt. Üldine ülevaade:

Korteri rekonstrueerimise-laiendamise eesmärgiks on rekonstrueerida olemasolev elamu esimesel korrusel asuv eluruum ning projekteerida olemasoleva korteri ruumide alla keldrikorrusele korteri laiendus - keldrikorrusele projekteeritavad ruumid ei ole ette nähtud kasutamiseks eluruumidena. Korter rekonstrueerimise-laiendamise käigus hoone
välisilmet ja korterite arvu hoones ei muudeta. Käesoleval hetkel on korter 2-toaline korter, mis paikneb 1 trepikojaga 3-korruselise korterelamu esimesel korrusel. Korter koosneb esikust, WC, köögist ning kahest toast.

Rekonstrueerimise-laiendamise käigus ehitatakse ümber korterisisesed kandvad seinad ja lammutatakse osaliselt mittekandvad vaheseinad ning korteri olemasolevad aluspõrandad. Korteri esimesele korrusele on projekteeritud esik, WC, elutuba-köök ning trepp pääsuks eluruumi laiendusse esimese korruse all.
Korteri olemasolevate ruumide alla on projekteeritud eluruumi laiendus, kus paiknevad kaks abiruumi, koridor ning pesuruum.

Laienduse ehitustööde käigus lammutatakse eluruumi laienduse osas keldrikorruse olemasolev betoonpõrand ning on vajalik süvendada keldrikorruse põrandat 55cm võrra. Süvendustöid teostatakse ülalpool hoone vundeerimissügavust. Keldrikorrusel asuvate eluruumide projekteeritavad
aluspõrandad 80mm r/b plaadina 10cm jäikade polüuretaanist soojustusplaatide (PIR-plaat) alusel. Soojustuse alla paigaldada kile pinnase niiskuse isoleerimiseks. Põrandaalune aluspinnas tihendada.

Korterelamu vahelaed on puitkanduritel, mis toetuvad hoonesisestele palkkonstruktioonis kandvatele seintele. Korteri olemasolev aluspõrand puitkanduritel. Karkass isoleeritud shlakktäidisega. Rekonstrueerimistööde käigus olemasolev aluspõrand lammutada – amortiseerunud puitkandurid ja
isolatsioon eemaldada ning utiliseerida. Korter nr esimese korruse aluspõrandad ehitada olemasoleva keldri r/b vahelaele – paigaldada 50mm vahtpolüsterooli plaadid ning aluspõrand valada 80mm tasandussegust plaadina.
Esimese korruse lagi olemasolevatel puitkanduritel 200x150mm, samm ca 1000mm. Esimese korruse lagi katta kipsplaadiga.

Siseviimistluse valikul lähtutakse ruumide otstarbest ja kasutusmugavusest. Põrandakatteks kasutatakse kuivades ruumides parketti ja niisketes ruumides keraamilist plaati. Siseseinad pahteldatakse ning kaetakse viimistlusvärviga. Niisketes ruumides kaetakse seinad osaliselt või täielikult keraamilise plaadiga. Laed värvitakse.

Korterisse paigaldatakse põrandaküte või radiaatorid ja gaasikatel. Olemasolevat ahju ja pliiti ei lammutata. Gaasiprojekt tuleb ette valmistada ja kooskõlastada.

Pildid, video ja failid

Hanke korraldaja: eraisik ID55225

Pakkumised

Pakkumisi kokku: 0

Küsimused hanke korraldajale

Hanke korraldajale ei ole veel küsimusi esitatud.

Lisa küsimus

Lisa küsimus

Minu pakkumine

Reeglid

Pakkumise kirjelduse väli on mõeldud pakkumise detailsemaks lahti kirjutamiseks. Pikema teksti mugavaks sisestamiseks klikkige kasti paremal ülaservas oleval ikoonil.
Pakkumist tehes on keelatud postitada enda kontaktandmeid (nimi, telefon, aadress jne). Me jälgime ja analüüsime pakkumisi, et vältida pettuseid ja reeglite rikkumisi.
Rikkumise puhul kasutajakonto blokeeritakse.

 

Vanemad teated:

Vaata kõiki

Sellel veebilehel kasutatakse küpsiseid. Kasutamist jätkates nõustute küpsiste kasutamisega.

Sulge
 
Minu pakkumine

Reeglid

Pakkumise kirjelduse väli on mõeldud pakkumise detailsemaks lahti kirjutamiseks. Pikema teksti mugavaks sisestamiseks klikkige kasti paremal ülaservas oleval ikoonil.
Pakkumist tehes on keelatud postitada enda kontaktandmeid (nimi, telefon, aadress jne). Me jälgime ja analüüsime pakkumisi, et vältida pettuseid ja reeglite rikkumisi.
Rikkumise puhul kasutajakonto blokeeritakse.