+ Lisa oma töö      

Otsid ehitajat "Metallitööd" valdkonnast?

Parima pakkumise ja teostaja leidmiseks lisa oma töö.

Hange on lõppenud!

Võitjaks osutus kasutaja ID 24845

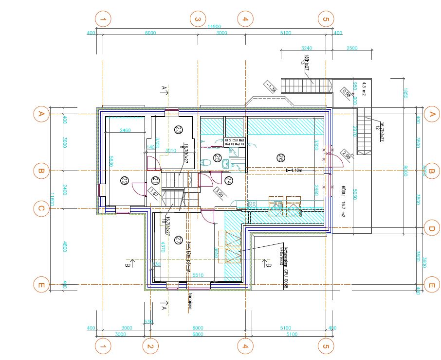
Komplekslahendus metallist rõdule koos trepiga

ID 55418

701 vaatamist

Prindi

  • check Pakkumiste tegemine
    kuni 21.12.2020
  • check Võitja valik kuni
    28.12.2020
  • 3 Töö teostamine
    ja hinnang
Hanke lõpp: E, 21. detsember, 2020
Maakond: Harjumaa
Linn: Tallinn
Tööde algus: N, 01. aprill, 2021 (Soovituslik)
Tööde lõpp: R, 30. aprill, 2021 (Soovituslik)
Ehitusmaterjalid: Töö tegija poolt
Soovin pakkumisi: Summa kogu projektile

Töö sisu

Otsime Tallinnas asuvale eramajale metallist rõdu ja trepi komplekslahenduse pakkujat. Sooviksime, et rõdu toetuks metallist postidele ning oleks ankurdatud maja fassaadile. Rõdu saab olema 8m lai ning 2,5m sügav ning tema kõrgus maapinnast oleks üle 4m.

Rõdu konstruktsiooni täpsete materjalide osas meil eelistusi ja erisoove ei ole. Oleme huvitatud Teie poolsetest soovitustest ning ettepanekutest. Trepiastmed võiksid olla kaetud pesubetoonplaadiga või mõne muu libisemist takistava materjaliga. Rõdule ja trepile on plaanitud toonitud klaasist piirded. Käsipuude materjali osas meil eelistused puuduvad. Rõdu ja trepimademi põranda materjalide osas meil samuti eelistused puuduvad.
Soovime aga kidlasti, et rõdu ja trepi valmistaja oleks kas ise lahenduse lõplik paigaldaja või organiseeriks selle omalt poolt.

Pildid, video ja failid

Hanke korraldaja: eraisik ID58267

Pakkumised

Pakkumisi kokku: 3

Ettevõte Summa Käibemaks Lisatud Vestlus
Kasutaja ikoon ID37493
Pakkuja profiil Väike nool paremale
1 000€ KM lisandub KM lisandub 27.11.2020 Vestlus (1)

Pakkumise kirjeldus:

Tere trepi mat ,tsingitud raud , astmed graniit v . metall. jalad toetuvad maha betoon postidele. Trepp kinnitub hoonekülge.Lõplik hind selgub objektil. Lgp.

Kasutaja ikoon ID49418
Pakkuja profiil Väike nool paremale
5 000€ Sisaldab KM Sisaldab KM 14.12.2020 Vestlus (2)
Kasutaja ikoon ID24845
Pakkuja profiil Väike nool paremale
800€ KM lisandub KM lisandub 17.12.2020 Vestlus (2)

Pakkumise kirjeldus:

Tere

Pakkumises orienteeruv joonise koostamise hind konstruktsioonile.

Reaalse ja korrektse pakkumise saab koostada vaid korraliku joonise olemasolul. Niisama puusalt pakkudes ja tehes võib konstruktsioon tulla kas üledimensioneeritult mis muudab kogu projekti mõtetult kalliks või kõige hullem kui aladimensioneeritud. Samuti korrektseid jooniseid ... Rohkem

Küsimused hanke korraldajale

Küsimus: private ID37493   23.11.2020 13:17
Tere ,, mis mat. on maja sein? Kas poste võib kasutada piirdeääre tugevdamiseks? Lgp.

Teavita reeglite rikkumisest

Korraldaja vastus: 23.11.2020 13:49

Tere!
Maja sein on valmistatud tellistest, millele on lisatud soojustus ja peale krohv.
Kas Te palun täpsustaksite, mida Te mõtlete piirdeäärena?

Teavita reeglite rikkumisest

Küsimus: private ID37493   23.11.2020 23:23
Maja külge rõdu ja treppi ohtlik kinnitada. Postidele, mis toetuvad maha eraldi vundamendile oleks ka mõeldav ?

Teavita reeglite rikkumisest

Korraldaja vastus: 24.11.2020 09:14

Postid võiksid/peakaid kindlasti toetuma eraldi vundmendile. Vabandame, et seda varem hanke tekstis ei maninud!

Teavita reeglite rikkumisest

Küsimus: private ID26515   24.11.2020 00:49
projekti ka vaja teha, aga saan projekti teha ja valmistada ,kui olen kindel et saan seda tööd ,projekti järgi saab ka hinna anda

Teavita reeglite rikkumisest

Korraldaja vastus: 24.11.2020 09:20

Mida Te täpsemat mõtlete projeti all? Hetkel on meil arhitekti poolt koostatud projekt. Kahjuks Teie koduleht mingil põhjusel ei avane.

Teavita reeglite rikkumisest

Küsimus: private ID26515   24.11.2020 12:15
nüüd töötab,saadke arhitekt projekt post

Teavita reeglite rikkumisest

Korraldaja vastus:
Hanke korraldaja ei ole küsimusele veel vastanud

Küsimus: private ID26515   24.11.2020 15:01
kas metall on välja toodud arhitekt. projektil, ? kui ei ole siis ikka projekti teha- millist materjalist teha, talad ,postid,astmed,klaaspiire, ..........................

Teavita reeglite rikkumisest

Korraldaja vastus: 25.11.2020 15:29

Arhitekti projektil tõesti kahjuks selliseid detaile märgitud ei ole.

Teavita reeglite rikkumisest

Küsimus: private ID26515   25.11.2020 20:23
leia minuga ühendus,saan aidata,muidu pole mõttet pakkumist teha,

Teavita reeglite rikkumisest

Korraldaja vastus:
Hanke korraldaja ei ole küsimusele veel vastanud

Küsimus: private ID51712   13.12.2020 12:55
Head päeva !
Kas olete leidnud ettevõtte, kes täidab teie tellimuse või olete endiselt pakkumistest huvitatud ?

Lugupidamisega

Teavita reeglite rikkumisest

Korraldaja vastus: 13.12.2020 13:17

Tere!
Oleme endiselt pakkumistest huvitatud! Ei ole kahjuks siiani kindlat teostajat leidnud.

Parimate soovidega

Teavita reeglite rikkumisest

Lisa küsimus

Lisa küsimus

Minu pakkumine

Reeglid

Pakkumise kirjelduse väli on mõeldud pakkumise detailsemaks lahti kirjutamiseks. Pikema teksti mugavaks sisestamiseks klikkige kasti paremal ülaservas oleval ikoonil.
Pakkumist tehes on keelatud postitada enda kontaktandmeid (nimi, telefon, aadress jne). Me jälgime ja analüüsime pakkumisi, et vältida pettuseid ja reeglite rikkumisi.
Rikkumise puhul kasutajakonto blokeeritakse.

 

Teisi töid samas valdkonnas

Valdkonnas "Metallitööd" on 2 aktiivset tööd

Auto varjualuse sein

Asukoht: Harjumaa, Ääsmäe
Aega jäänud: 4p 12h
Tehtud pakkumisi: 0

Vanemad teated:

Vaata kõiki

Sellel veebilehel kasutatakse küpsiseid. Kasutamist jätkates nõustute küpsiste kasutamisega.

Sulge
 
Minu pakkumine

Reeglid

Pakkumise kirjelduse väli on mõeldud pakkumise detailsemaks lahti kirjutamiseks. Pikema teksti mugavaks sisestamiseks klikkige kasti paremal ülaservas oleval ikoonil.
Pakkumist tehes on keelatud postitada enda kontaktandmeid (nimi, telefon, aadress jne). Me jälgime ja analüüsime pakkumisi, et vältida pettuseid ja reeglite rikkumisi.
Rikkumise puhul kasutajakonto blokeeritakse.