+ Lisa oma töö      

Otsid ehitajat "Vundamenditööd" valdkonnast?

Parima pakkumise ja teostaja leidmiseks lisa oma töö.

Lintvundament saunamajale

ID 55357

837 vaatamist

Prindi

  • check Pakkumiste tegemine
    kuni 16.12.2020
  • check Võitja valik kuni
    23.12.2020
  • 3 Töö teostamine
    ja hinnang
Hanke lõpp: K, 16. detsember, 2020
Maakond: Pärnumaa
Linn: Pärnu
Muu asula: Marksa, Lindi
Tööde algus: R, 01. jaanuar, 2021 (Soovituslik)
Tööde lõpp: R, 30. aprill, 2021 (Soovituslik)
Ehitusmaterjalid: Töö tegija poolt
Soovin pakkumisi: Summa kogu projektile

Töö sisu

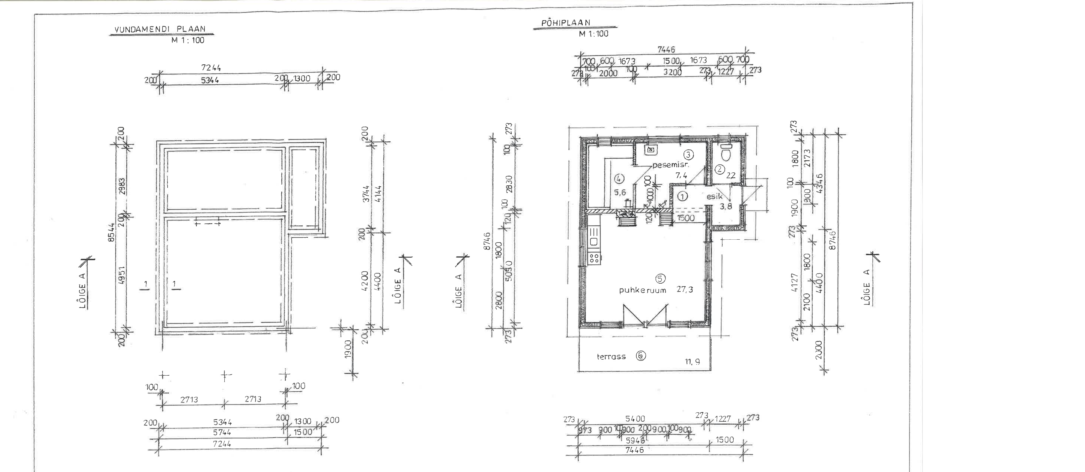
Lintvundamendi rajamine otsast lõpuni. Veetrass ja elektrikaabel on toodud vundamendi kohale ära. Saunahoone suletud netopind 46,3 m2. Soovin pakkumist vundamendile, mis on soojustatud ja valmis ehitise rajamiseks.
Peaks valmima uue aasta kevadeks. Joonis lisatud.

Pildid, video ja failid

Hanke korraldaja: ettevõte ID58208

Pakkumised

Pakkumisi kokku: 4

Ettevõte Summa Käibemaks Lisatud Vestlus
Kasutaja ikoon ID46180
Pakkuja profiil Väike nool paremale
12 500€ KM lisandub KM lisandub 25.11.2020 Vestlus (0)
Kasutaja ikoon ID45144
Pakkuja profiil Väike nool paremale
11 900€ Sisaldab KM Sisaldab KM 07.12.2020 Vestlus (0)

Pakkumise kirjeldus:

Tere.
Lisatud meiepoolne hinnapakkumine betoontaldmikule laotud Fibo 5mpa plokkidest vundamendile. Vundament soojustatud (k.a. perimeeter).
Lugupidamisega, P

Kasutaja ikoon ID58217
Pakkuja profiil Väike nool paremale
11 483€ KM lisandub KM lisandub 15.12.2020 Vestlus (0)

Pakkumise kirjeldus:

Pakkumine sisaldab ehitusteenust ja materjale.

Kasutaja ikoon ID28394
Pakkuja profiil Väike nool paremale
10 500€ Sisaldab KM Sisaldab KM 16.12.2020 Vestlus (0)

Pakkumise kirjeldus:

Lintvundamendi rajamine
1. 0,8 laiuse ja 1,2 m sügavuse kraavi kaevamine vundamendile. Pinnas ladustatud objektile
2. 16/32 tihendatud killustikupadja rajamine 200 mm paks padi
3. Lintvundamendi saalungi ehitus
4. 200x500 mm lintvundamendi valamine (soovitame valada plastikfiiber betooniga c25, mis jääb piisavalt tugev ja pole ohtu, et metall betooni ... Rohkem

Küsimused hanke korraldajale

Hanke korraldajale ei ole veel küsimusi esitatud.

Lisa küsimus

Lisa küsimus

Minu pakkumine

Reeglid

Pakkumise kirjelduse väli on mõeldud pakkumise detailsemaks lahti kirjutamiseks. Pikema teksti mugavaks sisestamiseks klikkige kasti paremal ülaservas oleval ikoonil.
Pakkumist tehes on keelatud postitada enda kontaktandmeid (nimi, telefon, aadress jne). Me jälgime ja analüüsime pakkumisi, et vältida pettuseid ja reeglite rikkumisi.
Rikkumise puhul kasutajakonto blokeeritakse.

 

Vanemad teated:

Vaata kõiki

Sellel veebilehel kasutatakse küpsiseid. Kasutamist jätkates nõustute küpsiste kasutamisega.

Sulge
 
Minu pakkumine

Reeglid

Pakkumise kirjelduse väli on mõeldud pakkumise detailsemaks lahti kirjutamiseks. Pikema teksti mugavaks sisestamiseks klikkige kasti paremal ülaservas oleval ikoonil.
Pakkumist tehes on keelatud postitada enda kontaktandmeid (nimi, telefon, aadress jne). Me jälgime ja analüüsime pakkumisi, et vältida pettuseid ja reeglite rikkumisi.
Rikkumise puhul kasutajakonto blokeeritakse.