+ Lisa oma töö      

Otsid ehitajat "Põrandatööd" valdkonnast?

Parima pakkumise ja teostaja leidmiseks lisa oma töö.

Betoneerimis tööd 100 m2

ID 55244

1247 vaatamist

Prindi

  • check Pakkumiste tegemine
    kuni 10.12.2020
  • check Võitja valik kuni
    17.12.2020
  • 3 Töö teostamine
    ja hinnang
Hanke lõpp: N, 10. detsember, 2020
Maakond: Järvamaa
Linn: Paide
Tööde algus: T, 01. detsember, 2020 (Soovituslik)
Tööde lõpp: N, 31. detsember, 2020 (Soovituslik)
Ehitusmaterjalid: Töö tegija poolt
Soovin pakkumisi: Summa kogu projektile

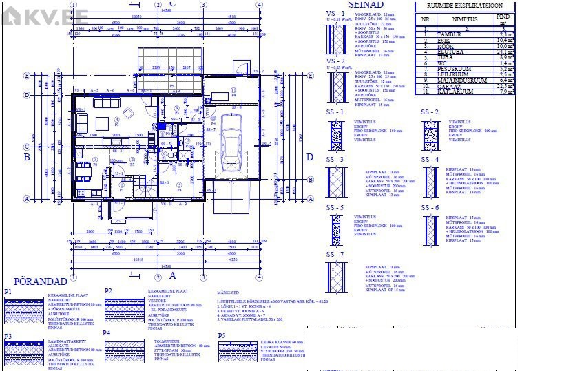
Töö sisu

Sooviksin pakkumist eramaja põranda betoneerimisele. CA 100 M2 koos garaazi pinnaga.Pind peab jääma parketi jaoks piisavalt sirge(Minimaalne tasandus ok).Tööde teostajapoolt.Vajalikud kalded vannituppa (renntrapp)
peno maas(võrk olemas kuid paigaldamata) teostab betoneerija.Valu kõrgus max70-80mm.Põrandakütte torustiku paigaldab teine firma.

Pildid, video ja failid

Hanke korraldaja: eraisik ID58117

Pakkumised

Pakkumisi kokku: 3

Ettevõte Summa Käibemaks Lisatud Vestlus
Kasutaja ikoon ID42953
Pakkuja profiil Väike nool paremale
1 900€ Ei ole KMKR Ei ole KMKR 29.11.2020 Vestlus (0)

Pakkumise kirjeldus:

Pakkumine sisaldab kilepaigaldust,äärelindi paigaldust,võrgu paigaldamine vajalike ülekattetega,valamist lihvimist(tasasus +-3mm 2m lattiga kontrollides, garaazi pinnakõvendit.
Ujuv parketti,plaadi ja epo pindadele teeme reeglina pannipinna ja liimitavatele pindadele ja puhastele betoonpõrandatele labapinna kopteriga.

Kasutaja ikoon ID38464
Pakkuja profiil Väike nool paremale
1 900€ Sisaldab KM Sisaldab KM 10.12.2020 Vestlus (0)

Pakkumise kirjeldus:

Tere, hinnapakkumises arvatuurvõrgu paigaldus, Betoneerimine, 8m3 betooni c25/30 kooos transpordi ja pumpamisega. Soovi korral paigaldan ka pinnakõvendi garaazi.Hind sisaldab käibemaksu!

Kasutaja ikoon ID29814
Pakkuja profiil Väike nool paremale
1 850€ Ei ole KMKR Ei ole KMKR 10.12.2020 Vestlus (0)

Pakkumise kirjeldus:

Hinnas loetud tööd. Kuni 8m3 c25/30 betooni pumbatuna.

Küsimused hanke korraldajale

Küsimus: private ID56040   10.11.2020 19:50
Tere
Knaufil on põrandaküttele välja töötatud uus segu saksamaal, http://www.knauf.ee/et/tooted/fe-50-largo.html#showtab-tab_86164_4
Isetasanduv, ei vaja silumismasinat
Valatav segupumbaga
Paksus ujuvpõrandana või küttetorude kohal: alates 35mm
Vähene kahanemine ja pingevaba
Ei vaja armatuuri
Käidav 24 tunni möödudes
EN 13813 klass CA-C25-F5
Kas see võiks Teile sobida, kõik tööd ka küttekontuurid võime paigaldada, segu tuuakse 1,2tn kottides ja kohapeal valatakse nii palju kui on vaja, ei jää puudu ega üle.
Betoonpõranda nõuetele BÜ4 vastav A-klassi põrand.
Terv.

Teavita reeglite rikkumisest

Korraldaja vastus: 10.11.2020 21:14

Tere!
Võite mõlemis varjandis hinnapakkumised saata.
T:Sander

Teavita reeglite rikkumisest

Küsimus: private ID38464   10.12.2020 12:03
Tere, kas eeltööd tarvis teha?

Teavita reeglite rikkumisest

Korraldaja vastus:
Hanke korraldaja ei ole küsimusele veel vastanud

Lisa küsimus

Lisa küsimus

Minu pakkumine

Reeglid

Pakkumise kirjelduse väli on mõeldud pakkumise detailsemaks lahti kirjutamiseks. Pikema teksti mugavaks sisestamiseks klikkige kasti paremal ülaservas oleval ikoonil.
Pakkumist tehes on keelatud postitada enda kontaktandmeid (nimi, telefon, aadress jne). Me jälgime ja analüüsime pakkumisi, et vältida pettuseid ja reeglite rikkumisi.
Rikkumise puhul kasutajakonto blokeeritakse.

 

Teisi töid samas valdkonnas

Valdkonnas "Põrandatööd" on 2 aktiivset tööd

Talumaja põrandate valamine/ehitus koos küttetorustiku paigaldusega

Asukoht: Raplamaa, Purila
Aega jäänud: 16p 15h
Tehtud pakkumisi: 2

Põrandakütte paigaldus ja põrandavalu (kips või betoon)

Asukoht: Saaremaa, Muhu vald
Aega jäänud: 15h 51 min
Tehtud pakkumisi: 1

Vanemad teated:

Vaata kõiki

Sellel veebilehel kasutatakse küpsiseid. Kasutamist jätkates nõustute küpsiste kasutamisega.

Sulge
 
Minu pakkumine

Reeglid

Pakkumise kirjelduse väli on mõeldud pakkumise detailsemaks lahti kirjutamiseks. Pikema teksti mugavaks sisestamiseks klikkige kasti paremal ülaservas oleval ikoonil.
Pakkumist tehes on keelatud postitada enda kontaktandmeid (nimi, telefon, aadress jne). Me jälgime ja analüüsime pakkumisi, et vältida pettuseid ja reeglite rikkumisi.
Rikkumise puhul kasutajakonto blokeeritakse.