+ Lisa oma töö      

Otsid ehitajat "Katusetööd" valdkonnast?

Parima pakkumise ja teostaja leidmiseks lisa oma töö.

Katuse vahetus

ID 55110

821 vaatamist

Prindi

  • check Pakkumiste tegemine
    kuni 18.11.2020
  • check Võitja valik kuni
    25.11.2020
  • 3 Töö teostamine
    ja hinnang
Hanke lõpp: K, 18. november, 2020
Maakond: Jõgevamaa
Linn: Jõgeva
Muu asula: Jõgeva kesklinn
Tööde algus: E, 23. november, 2020 (Soovituslik)
Tööde lõpp: N, 31. detsember, 2020 (Soovituslik)
Ehitusmaterjalid: Töö tegija poolt
Soovin pakkumisi: Summa kogu projektile

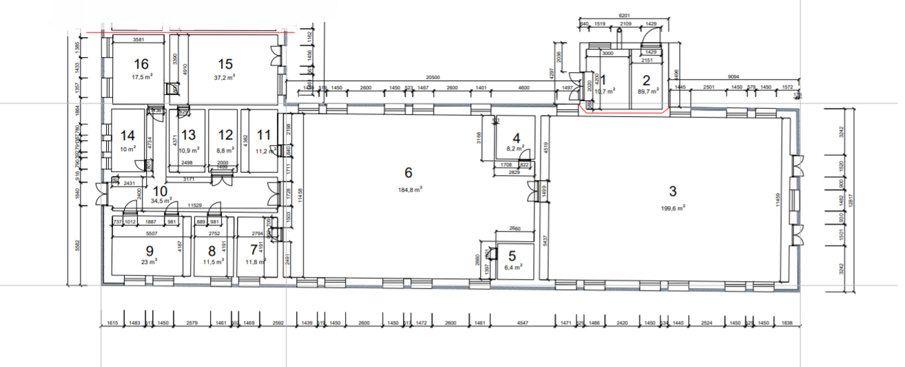
Töö sisu

Vana eterniit katuse eemaldamine ja uus profiilplekk katuse paigaldus.

Eterniidi ultiseerimise korraldan ise. Vaja vaid alustele laduda.

Kõik vajalikud mõõdud peaks kätte saama joonistelt. Lisan need fotodena ülesse. Ühel maja osal katus juba vahetatud, olen selle osa majast joonistelt välja jätnud. Hoone üld piltidelt eterniidiga katuse osa läheb vahetusse.

Uueks katuseks oleks profiilplekk ja see oleks punast värvi.

Pakkumine võiks sisaldada:
Katusekatte eemaldamine
Katuse rihtimine
Katusekile
Distants
Roov
Uus profiilplekk
Vihmavee süsteem
Redel
Tuulekastid

II etapina kunagi hiljem oleks vaja katusealune ka soojustada ja mingi kate peale panna kas puit või midagi muud, mille saaks valgeks värvida. - selle kohta teeme kunagi äkki eraldi hanke aga oleks hästi hea, kui tooksite juba praegu hinna välja, et kui see võiks sobida siis teeksime juba varem ka selle ära.

PS! Hanke võitjaks saab kõige odavama pakkumise tegija.
Töödega võiks esimesel võimalusel alustada ja esimesel võimalusel lõpetada.

Pildid, video ja failid

Hanke korraldaja: ettevõte ID55494

Pakkumised

Pakkumisi kokku: 2

Ettevõte Summa Käibemaks Lisatud Vestlus
Kasutaja ikoon ID57921
Pakkuja profiil Väike nool paremale
17 000€ Ei ole KMKR Ei ole KMKR 09.11.2020 Vestlus (0)

Pakkumise kirjeldus:

Tere.

Pakkumine on mõeldud eelnimetatud hanke töö hinnaks , hind ei sisalda materjale.

Tööhind sisaldab.
Vana eterniidi eemaldamine/ladustamine.
uue kile paigaldus,
Tuulutusliistu paigaldus.
Roovitus vastavalt trapetsprofiilile.
Trapets profiil plekki paigaldus koos vajalike lisa plekkidega ning vihmaveesüsteemi paigaldus,
Tuulekastid.
... Rohkem

Kasutaja ikoon ID57792
Pakkuja profiil Väike nool paremale
32 220€ KM lisandub KM lisandub 16.11.2020 Vestlus (0)

Pakkumise kirjeldus:

Edastame käesolevaga pakkumise kirjeldatud töödele koos materjalidega:

1. Vana katusekatte eemaldamine ja ladustamine objektil.
2. Katuse rihtimine.
3. Katuse aluskatte ja distantsliistu paigaldamine.
4. Katuse roovituse paigaldamine.
5. Katusepleki paigaldamine (trapetsplekk, punane).
6. Tuulekastide ehitus.
7. Katuseredeli ja ääreplekkide pa ... Rohkem

Küsimused hanke korraldajale

Küsimus: private ID57921   09.11.2020 17:06
Tere.

Kas sobib kui teen pakkumise esialgu tööle ning täpsemalt objektiga tuttvudes arvestame kokku materjalid.
Kas eterniidi all on veel midagi peale laudise nt vana laast?
Millise profiiliga plekki soovite ? kas kivi või trapets ?
Parimatega.
Martin

Teavita reeglite rikkumisest

Korraldaja vastus: 09.11.2020 18:47

Tere, Martin

Jaa, sobib ka selline lahendus. Eterniidi all vaid sarikatel hõrdalt roov ja muud pole midagi. Pigem trapetsplekk. Ideaalis võiks katusevahetus alguse saada see aasta või siis jaanuaris, et mida varem seda parem.

Teavita reeglite rikkumisest

Lisa küsimus

Lisa küsimus

Minu pakkumine

Reeglid

Pakkumise kirjelduse väli on mõeldud pakkumise detailsemaks lahti kirjutamiseks. Pikema teksti mugavaks sisestamiseks klikkige kasti paremal ülaservas oleval ikoonil.
Pakkumist tehes on keelatud postitada enda kontaktandmeid (nimi, telefon, aadress jne). Me jälgime ja analüüsime pakkumisi, et vältida pettuseid ja reeglite rikkumisi.
Rikkumise puhul kasutajakonto blokeeritakse.

 

Teisi töid samas valdkonnas

Valdkonnas "Katusetööd" on 9 aktiivset tööd

no-img Pilt puudub

Käidava katuse PVC 54m2

Asukoht: Harjumaa, Muraste
Aega jäänud: 4p 8h
Tehtud pakkumisi: 3

Suvila

Asukoht: Pärnumaa, Eametsa
Aega jäänud: 8h 0 min
Tehtud pakkumisi: 2

Vanemad teated:

Vaata kõiki

Sellel veebilehel kasutatakse küpsiseid. Kasutamist jätkates nõustute küpsiste kasutamisega.

Sulge
 
Minu pakkumine

Reeglid

Pakkumise kirjelduse väli on mõeldud pakkumise detailsemaks lahti kirjutamiseks. Pikema teksti mugavaks sisestamiseks klikkige kasti paremal ülaservas oleval ikoonil.
Pakkumist tehes on keelatud postitada enda kontaktandmeid (nimi, telefon, aadress jne). Me jälgime ja analüüsime pakkumisi, et vältida pettuseid ja reeglite rikkumisi.
Rikkumise puhul kasutajakonto blokeeritakse.