+ Lisa oma töö      

Otsid ehitajat "Elektritööd" valdkonnast?

Parima pakkumise ja teostaja leidmiseks lisa oma töö.

Hange on lõppenud!

Võitjaks osutus kasutaja ID 44421

Korraldaja hinnang tehtud tööle

5.0
05.11.2020
Töökiirus: 12345
Kvaliteet: 12345
Hind: 12345

Töö väga kiire ja korralik ! Soovitan - Viljar K.

Elamu elektriprojekt

ID 55002

1673 vaatamist

Prindi

  • check Pakkumiste tegemine
    kuni 03.11.2020
  • check Võitja valik kuni
    03.11.2020
  • 3 Töö teostamine
    ja hinnang
Hanke lõpp: T, 3. november, 2020
Maakond: Harjumaa
Tööde algus: T, 03. november, 2020 (Soovituslik)
Tööde lõpp: P, 08. november, 2020 (Soovituslik)
Ehitusmaterjalid: Töö tellija poolt
Soovin pakkumisi: Summa kogu projektile

Töö sisu

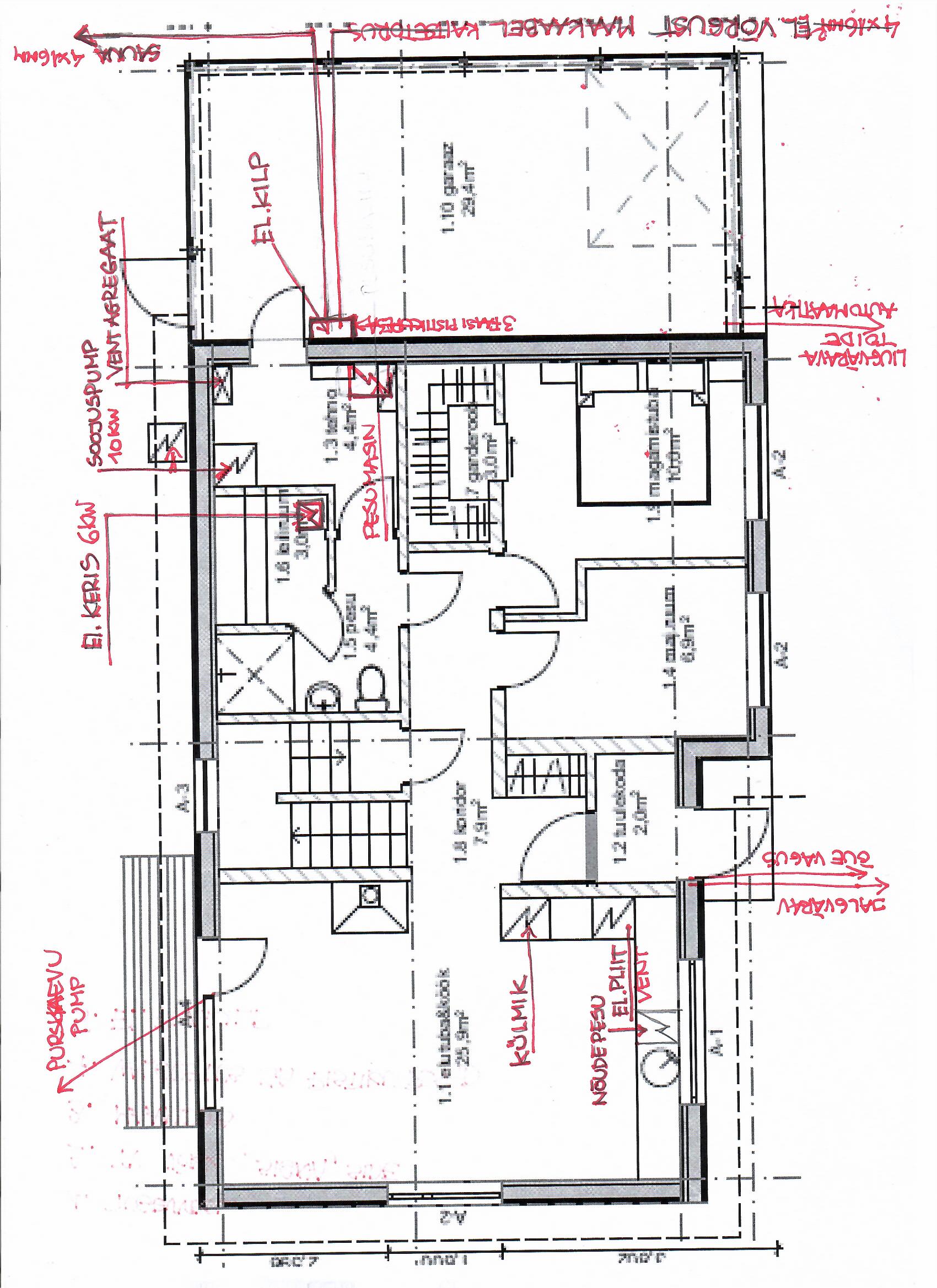
Hanke objektiks on Viimsivalda rajatava 2-kordse üksikelamu (puitkarkass, plaatvundamendil) Elektriprojekt.

Lisatud piltidel on näha kõik soovitud ühendused .

Pildid, video ja failid

Hanke korraldaja: eraisik ID42895

Pakkumised

Pakkumisi kokku: 4

Ettevõte Summa Käibemaks Lisatud Vestlus
Kasutaja ikoon ID25352
Pakkuja profiil Väike nool paremale
450€ KM lisandub KM lisandub 29.10.2020 Vestlus (0)
Kasutaja ikoon ID31470
Pakkuja profiil Väike nool paremale
350€ Sisaldab KM Sisaldab KM 29.10.2020 Vestlus (0)

Pakkumise kirjeldus:

Tere, saadan pakkumise tugevvoolupaigaldise põhiprojekti koostamiseks hankes kirjeldatud mahus. Kui peaksime osutuma hanke võitjaks, siis enne projekteerimise alustamist vajaksime Teilt hoone korruseplaane DWG kujul. Kui see lähteinfo on edastatud, saame projekti valmis ühe nädalaga. Alustada saab hetkel kasvõi täna :) Lugupidamisega, V.

Kasutaja ikoon ID44421
Pakkuja profiil Väike nool paremale
290€ Sisaldab KM Sisaldab KM 29.10.2020 Vestlus (0)

Pakkumise kirjeldus:

Tere. Sisaldab muuhulgas ekspertnägemusena visiooni väljapakkumist pistikupesadele ja Teie valgustuse eskiisi üle vaatamist ning täiendusettepanekute tegemist, kui saab lahendust selle võrra Teie jaoks mugavamaks.

Kasutaja ikoon ID54768
Pakkuja profiil Väike nool paremale
320€ KM lisandub KM lisandub 01.11.2020 Vestlus (0)

Küsimused hanke korraldajale

Hanke korraldajale ei ole veel küsimusi esitatud.

Lisa küsimus

Lisa küsimus

Minu pakkumine

Reeglid

Pakkumise kirjelduse väli on mõeldud pakkumise detailsemaks lahti kirjutamiseks. Pikema teksti mugavaks sisestamiseks klikkige kasti paremal ülaservas oleval ikoonil.
Pakkumist tehes on keelatud postitada enda kontaktandmeid (nimi, telefon, aadress jne). Me jälgime ja analüüsime pakkumisi, et vältida pettuseid ja reeglite rikkumisi.
Rikkumise puhul kasutajakonto blokeeritakse.

 

Teisi töid samas valdkonnas

Valdkonnas "Elektritööd" on 5 aktiivset tööd

Vana talu elektrisüsteemi uuendamine (kilp, pistikud, välivalgustus, EV valmidus)

Asukoht: Raplamaa, Suurekivi
Aega jäänud: 1p 16h
Tehtud pakkumisi: 5

Korteri remont

Asukoht: Tartumaa
Aega jäänud: 16h 26 min
Tehtud pakkumisi: 2

Vanemad teated:

Vaata kõiki

Sellel veebilehel kasutatakse küpsiseid. Kasutamist jätkates nõustute küpsiste kasutamisega.

Sulge
 
Minu pakkumine

Reeglid

Pakkumise kirjelduse väli on mõeldud pakkumise detailsemaks lahti kirjutamiseks. Pikema teksti mugavaks sisestamiseks klikkige kasti paremal ülaservas oleval ikoonil.
Pakkumist tehes on keelatud postitada enda kontaktandmeid (nimi, telefon, aadress jne). Me jälgime ja analüüsime pakkumisi, et vältida pettuseid ja reeglite rikkumisi.
Rikkumise puhul kasutajakonto blokeeritakse.