+ Lisa oma töö      

Otsid ehitajat "Betoonitööd" valdkonnast?

Parima pakkumise ja teostaja leidmiseks lisa oma töö.

Keldri betoonpõranda valamine

ID 54949

1459 vaatamist

Prindi

  • check Pakkumiste tegemine
    kuni 27.10.2020
  • check Võitja valik kuni
    03.11.2020
  • 3 Töö teostamine
    ja hinnang
Hanke lõpp: T, 27. oktoober, 2020
Maakond: Harjumaa
Linn: Saue
Tööde algus: K, 28. oktoober, 2020 (Soovituslik)
Tööde lõpp: E, 30. november, 2020 (Soovituslik)
Ehitusmaterjalid: Töö tegija poolt
Soovin pakkumisi: Summa kogu projektile

Töö sisu

Põranda eeltööd on tehtud - soojustus, kile, armatuur, küttetorud paigaldatud

Tööks on:
1) Armatuuri kanduritele tõstmine ja loodimine (kandurid olemas)
- põrandat on süvendatud ja vundamendi ääred ca 10-20cm ulatuses kõrgemad

2) äärelindi paigaldus
- hetkel pandud EPS-is ääred, kuid see lahtiselt

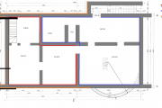
3) Põranda betoneerimine
- kokku ca 40m2 pinda (joonisel näidatud punasega märgitud ruumid)
- kihi paksus 7-10cm, tulenevalt kõrguste erinevusest osades kohtades paksem, osades õhem
- miinimum 3cm peab katma küttetoru

Ligipääsuks vaja pikka pumiga masin.
Enne võtja valimist võimalus kohapeal objekt üle vaadata (ostan kontaktid välja ja võtan ühendust).

Pildid, video ja failid

Hanke korraldaja: eraisik ID42560

Pakkumised

Pakkumisi kokku: 7

Ettevõte Summa Käibemaks Lisatud Vestlus
Kasutaja ikoon ID56040
Pakkuja profiil Väike nool paremale
390€ Sisaldab KM Sisaldab KM 24.10.2020 Vestlus (0)

Pakkumise kirjeldus:

Tere
Pakume valamist põrandaküttele mõeldud seguga FE50Largo, välja töötatud saksamaal Knauf poolt, isetasanduv, tolmuvaba, mahukahanemist pole. Garanteerime BÜ4 nõuetele vastava AA klassi põranda.
Hinnas kõik tööd, märkimised, valamine, koristus jne.
Materjal otse poehinnaga, valatud koguse järgi.
Terv.

Kasutaja ikoon ID54654
Pakkuja profiil Väike nool paremale
1 000€ Sisaldab KM Sisaldab KM 25.10.2020 Vestlus (0)
Kasutaja ikoon ID53017
Pakkuja profiil Väike nool paremale
795€ Sisaldab KM Sisaldab KM 25.10.2020 Vestlus (0)

Pakkumise kirjeldus:

Hind sisaldab kandurite paigaldust/äärelindi paig/betooni ja betooni paigaldust(latipind).
Eraldi kokkuleppel võib ka betoonisiluriga üle teha.Kuigi meie tehtud tööd reeglina sobivad plaadialuseks pinnaks ka ilma silumata.

Kasutaja ikoon ID33354
Pakkuja profiil Väike nool paremale
725€ KM lisandub KM lisandub 25.10.2020 Vestlus (0)

Pakkumise kirjeldus:

Pakkumine sisaldsb betooni, servalinti ja kogu tööd.

Kasutaja ikoon ID43939
Pakkuja profiil Väike nool paremale
830€ Sisaldab KM Sisaldab KM 25.10.2020 Vestlus (0)
Kasutaja ikoon ID38464
Pakkuja profiil Väike nool paremale
1 300€ Sisaldab KM Sisaldab KM 26.10.2020 Vestlus (0)

Pakkumise kirjeldus:

Hinnapakkumine sisaldab kandurite(150 tk) ja äärepaela paigaldust 120mm. Betooni c 25/30 4m3 . 24 m pumiga. Valamist ja lihvimist kopteriga. Pinnakõvendi ja järelhooldus aine paigaldust. Valutööde järjekord hetkel 3 nädalat.

Hilisemalt on võimalus tellida meilt lisaks põranda poleerimine pentra sil+guard .

Kasutaja ikoon ID49654
Pakkuja profiil Väike nool paremale
700€ KM lisandub KM lisandub 27.10.2020 Vestlus (0)

Pakkumise kirjeldus:

Pakkumine estrich tehnoloogiaga. (Liivbetoon)
Komplekti hind - materjal, töö, transpordid.Plaadiga korralikult lihvitud.

Küsimused hanke korraldajale

Küsimus: private ID53017   25.10.2020 07:21
Kas soovite betoonisiluriga(kopteriga) siledaks ka pinda?Miks kandureid loodima peab?

Teavita reeglite rikkumisest

Korraldaja vastus: 25.10.2020 08:20

Pind peaks jääma sobilik plaatimiseks, et ei peaks lisategevusi tegema. Einoska ise hetkel hinnata, kas kopter vajalik või mitte - võite teha pakkumise ilma selle hinnata, aga tuua selle lisatööna kirjelduses välja, kui on vajalik teha.

Loodimise osas - põrand on +/- 10mm hetkel. See peaks olema ok, et saaks küttetorud kaetud.
Vundamendi äärtes on kõrgust rohkem, kuna sealt ei saanud paekivi syvendada - ca 40-50mm kõrgem, seega peab lihtsalt arvestama sellega kihi paksuse valamisel, et äärtes jääb õhem kiht ja vb keskel vaja kusagil paksemat panna.
Loodime mõeldud rohkem nö kõrgusmärkide seadmisel
Kõrgema osa peal küttetorusid pandud ei ole.

Teavita reeglite rikkumisest

Küsimus: private ID54654   25.10.2020 07:44
saan aru, et materjalid sh betoon servalint jne meie poolt+ töö?

Teavita reeglite rikkumisest

Korraldaja vastus: 25.10.2020 08:20

Jah, täpselt nii

Teavita reeglite rikkumisest

Küsimus: private ID54654   25.10.2020 08:37
sel juhul juba päris raske siin konkureerida kui juba 390.- suudetakse see töö ära teha koos materjaliga... mina saan tööraha umbes sellise ja kindlasti kopteri pinnaga, sinna lisandub ca 4m3 betooni ja muud materjalid.

Teavita reeglite rikkumisest

Korraldaja vastus: 25.10.2020 08:43

Vaatan eraldi pakkumisi kipsivalu vs betoonivalu. Hetkel on teadmine, et pigem soovin keldrisse betoonpõrandat, mille soojusmahtuvus peaks parem olema ja ei reageeri temp. kõikumistele nii kiiresti.

Ehk siis see mainitud pakkumine on kipsile, unustasin kirjutada, et eelistan betooni

Teavita reeglite rikkumisest

Küsimus: private ID54654   25.10.2020 08:47
tänan selgituse eest: Lugupidamisega.R.

Teavita reeglite rikkumisest

Korraldaja vastus: 26.10.2020 09:53

.

Teavita reeglite rikkumisest

Lisa küsimus

Lisa küsimus

Minu pakkumine

Reeglid

Pakkumise kirjelduse väli on mõeldud pakkumise detailsemaks lahti kirjutamiseks. Pikema teksti mugavaks sisestamiseks klikkige kasti paremal ülaservas oleval ikoonil.
Pakkumist tehes on keelatud postitada enda kontaktandmeid (nimi, telefon, aadress jne). Me jälgime ja analüüsime pakkumisi, et vältida pettuseid ja reeglite rikkumisi.
Rikkumise puhul kasutajakonto blokeeritakse.

 

Teisi töid samas valdkonnas

Valdkonnas "Betoonitööd" on 5 aktiivset tööd

Betoonist platsi valamine väljas.

Asukoht: Harjumaa, Luige
Aega jäänud: 14h 58 min
Tehtud pakkumisi: 4

Betoonpõranda valu

Asukoht: Harjumaa, Jõelähtme
Aega jäänud: 2p 14h
Tehtud pakkumisi: 3

Vanemad teated:

Vaata kõiki

Sellel veebilehel kasutatakse küpsiseid. Kasutamist jätkates nõustute küpsiste kasutamisega.

Sulge
 
Minu pakkumine

Reeglid

Pakkumise kirjelduse väli on mõeldud pakkumise detailsemaks lahti kirjutamiseks. Pikema teksti mugavaks sisestamiseks klikkige kasti paremal ülaservas oleval ikoonil.
Pakkumist tehes on keelatud postitada enda kontaktandmeid (nimi, telefon, aadress jne). Me jälgime ja analüüsime pakkumisi, et vältida pettuseid ja reeglite rikkumisi.
Rikkumise puhul kasutajakonto blokeeritakse.