+ Lisa oma töö      

Otsid ehitajat "Lammutustööd" valdkonnast?

Parima pakkumise ja teostaja leidmiseks lisa oma töö.

Hange on lõppenud!

Võitjaks osutus kasutaja ID 58203

Korraldaja hinnang tehtud tööle

5.0
12.05.2021
Töökiirus: 12345
Kvaliteet: 12345
Hind: 12345

Vana talumaja lammutustööd

ID 54931

1840 vaatamist

Prindi

  • check Pakkumiste tegemine
    kuni 21.11.2020
  • check Võitja valik kuni
    28.11.2020
  • 3 Töö teostamine
    ja hinnang
Hanke lõpp: L, 21. november, 2020
Maakond: Läänemaa
Muu asula: Vormsi saar
Tööde algus: P, 01. november, 2020 (Soovituslik)
Tööde lõpp: P, 31. jaanuar, 2021 (Soovituslik)
Ehitusmaterjalid: Töö tegija poolt
Soovin pakkumisi: Summa kogu projektile

Töö sisu

Vana talumaja täielik lammutamine, äravedu ja utiliseerimine koos jäätmeõiendiga.
Küttematerjaliks sobiva puitmaterjali ja pinnase täiteks sobiva kivimaterjali võib ladustada territooriumil, ülejäänud tuleks utiliseerida. Tööde lõpetamisel koristada tööpiirkond.
Vesi ja elekter on hoonest eemaldatud. Masinatega saab majale ligi ja saab manööverdada.
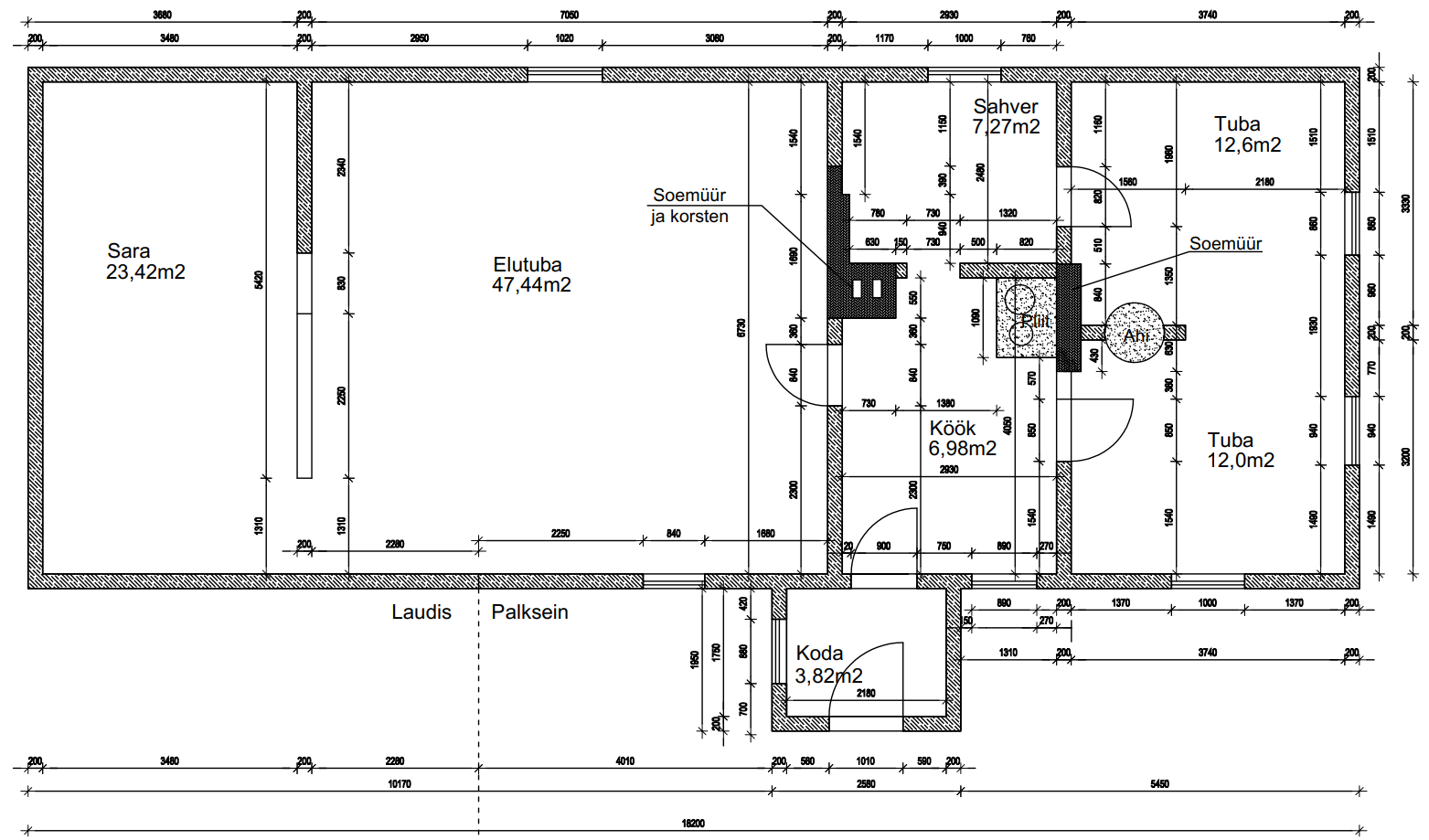
Hoone mõõdud 18*7 m, 1 korrus

Pildid, video ja failid

Hanke korraldaja: eraisik ID57817

Pakkumised

Pakkumisi kokku: 20

Ettevõte Summa Käibemaks Lisatud Vestlus
Kasutaja ikoon ID57171
Pakkuja profiil Väike nool paremale
9 000€ Sisaldab KM Sisaldab KM 24.10.2020 Vestlus (0)
Kasutaja ikoon ID22919
Pakkuja profiil Väike nool paremale
9 900€ KM lisandub KM lisandub 25.10.2020 Vestlus (0)
Kasutaja ikoon ID49765
Pakkuja profiil Väike nool paremale
7 800€ KM lisandub KM lisandub 25.10.2020 Vestlus (0)

Pakkumise kirjeldus:

Tere.
Pakkumine sisaldab hoone lammutust ja prahi utiliseerimist.Antud töid oleme teostanud 5 aastat väga suur kogemuste pagas.Tööde kestvus kuni 7 tööpäeva.Töid teostab väga kogenud ettevõte.Töö kiire ja korralik.

Kasutaja ikoon ID54009
Pakkuja profiil Väike nool paremale
6 000€ KM lisandub KM lisandub 25.10.2020 Vestlus (0)

Pakkumise kirjeldus:

Tere

Me tegeleme vanade majade lahti monteerimistega ja taastamistega.
Kui saaks mõned palgid endale siis saaks veel kaubelda.

Kasutaja ikoon ID57891
Pakkuja profiil Väike nool paremale
2 900€ Ei ole KMKR Ei ole KMKR 27.10.2020 Vestlus (1)
Kasutaja ikoon ID36890
Pakkuja profiil Väike nool paremale
7 000€ Sisaldab KM Sisaldab KM 28.10.2020 Vestlus (0)
Kasutaja ikoon ID55316
Pakkuja profiil Väike nool paremale
10 500€ KM lisandub KM lisandub 28.10.2020 Vestlus (0)
Kasutaja ikoon ID34061
Pakkuja profiil Väike nool paremale
5 000€ KM lisandub KM lisandub 29.10.2020 Vestlus (0)

Pakkumise kirjeldus:

Teostame töö ajavahemikus 23.11-03.12.2020

Kasutaja ikoon ID57481
Pakkuja profiil Väike nool paremale
6 300€ Ei ole KMKR Ei ole KMKR 30.10.2020 Vestlus (0)
Kasutaja ikoon ID47893
Pakkuja profiil Väike nool paremale
5 000€ Ei ole KMKR Ei ole KMKR 01.11.2020 Vestlus (0)

Pakkumise kirjeldus:

Tere meie poolne hinna pakkumine maja lammutustöödele.

Kasutaja ikoon ID55735
Pakkuja profiil Väike nool paremale
4 500€ Sisaldab KM Sisaldab KM 05.11.2020 Vestlus (0)

Pakkumise kirjeldus:

Tere, lõpetasime just suvila lammutuse ning hea meelega võtaks ka selle ette. Parimat.

Kasutaja ikoon ID30805
Pakkuja profiil Väike nool paremale
4 500€ Ei ole KMKR Ei ole KMKR 10.11.2020 Vestlus (0)

Pakkumise kirjeldus:

Tere, pakkumine tehtud lammutamisele. Kõik kivimaterjalid ( loodus savi silikaat segu ) ladustan taaskasutamis eesmärgil ( täide ) krundie. Kõik puit ladustan krundil taaskasutus eesmärgil ( küte ). Olme, klaas, eterniit läheb kohalikku ladustamis alasse ( nagu aru saan makstud ja maksma ei pea ) . Töötan üksi mootorsaag sõrg . Alustamine peale ... Rohkem

Kasutaja ikoon ID57593
Pakkuja profiil Väike nool paremale
6 500€ Ei ole KMKR Ei ole KMKR 16.11.2020 Vestlus (0)
Kasutaja ikoon ID50880
Pakkuja profiil Väike nool paremale
6 100€ Ikoon kell Sisaldab KM Sisaldab KM 18.11.2020 Vestlus (0)
Kasutaja ikoon ID58217
Pakkuja profiil Väike nool paremale
5 664,6€ KM lisandub KM lisandub 18.11.2020 Vestlus (0)

Pakkumise kirjeldus:

Pakkumine sisaldab lammutusteenust ja lammutusjäägi utiliseerimist.

Kasutaja ikoon ID1380
Pakkuja profiil Väike nool paremale
3 700€ KM lisandub KM lisandub 19.11.2020 Vestlus (0)
Kasutaja ikoon ID44127
Pakkuja profiil Väike nool paremale
4 999€ Ikoon kell Ei ole KMKR Ei ole KMKR 19.11.2020 Vestlus (0)

Pakkumise kirjeldus:

Tere.

Hind sisaldab talumaja täieliku lammutamist, jäätmete sorteerimist ja osalist utiliseerimist .

Hind sisaldab täpsemalt järgmist:
1. Hoone täielik lammutamine koos vundamendiga.
2. Puhta puidu sorteerime välja ja virnastame tellija poolt näidatud kohta.
3. Kivi materjali sorteerime välja ja ladustama tellija poolt näidatud kohta.
4. ... Rohkem

Kasutaja ikoon ID28394
Pakkuja profiil Väike nool paremale
4 900€ Sisaldab KM Sisaldab KM 21.11.2020 Vestlus (0)

Pakkumise kirjeldus:

Hoone lammutamine.
Eterniidi utiliseerimine prügilas
Puitmaterjali ladustamine objektil (va vârvitud voodrilaud, mis ei sobi kütteks ega taaskasutuseks - selle põletamine kohapeal lõkkes)
Kivide ja täitematerjali ladustamine objektil näidatud kohta.

Kasutaja ikoon ID58203
Pakkuja profiil Väike nool paremale
3 000€ Ikoon kell Ei ole KMKR Ei ole KMKR 21.11.2020 Vestlus (2)
Kasutaja ikoon ID57421
Pakkuja profiil Väike nool paremale
3 500€ Sisaldab KM Sisaldab KM 21.11.2020 Vestlus (0)

Pakkumise kirjeldus:

Tere härra . Minu pakkumine sisaldab maja lammutamise teie soovide kohaselt .
Jäätmete ladustamist ja äravedu.
Krundi ette valmistamist ehitustegevuse alustamiseks

Küsimused hanke korraldajale

Küsimus: private ID41269   23.10.2020 13:02
Tere. Mis peab tegema vundamendiga ? Ja kui puhas peaks olema lõpp tulemus ? Kui kaugele võib asju ladustada hoonest ?

Teavita reeglite rikkumisest

Korraldaja vastus: 23.10.2020 15:52

Tere! Vundament tuleb ka lammutada, kuid hoone on ehitatud kividele ning kunagi nõuka ajal on pisut segu vahele valatud. Peale lammutustöö lõpetamist peab ala olema selline, et saab alustada ehitustegvusega. Asju saab ladustada samal territooriumil, mõnekümne meetri kaugusel nii et ehitamisel ette ei jääks.

Teavita reeglite rikkumisest

Küsimus: private ID41269   23.10.2020 17:10
Tere. Küsin sedasi kas ära vedada ja utiliseerida tuleks ainult eterniit ? Ja ülejäänu saab jätta kohapeale ?

Teavita reeglite rikkumisest

Korraldaja vastus: 23.10.2020 18:02

Utiliseerida tuleb kõik, mida ei saa taaskasutada. Peamiselt eterniit aga kindlasti tuleb veel miskit, mis ei sobi taaskasutuseks. Prügila maksud on makstud e kõik jäätmed saab vedada kohalikku prügilasse (ca 8km). Territooriumile ladustatavad materjalid peavad olema liigiti sorteeritud.

Teavita reeglite rikkumisest

Küsimus: private ID30805   10.11.2020 22:46
Tere, Kas ööbimis võimalus on ?

Teavita reeglite rikkumisest

Korraldaja vastus: 12.11.2020 14:39

Objektil võimalik ööbida aidas, kuhu saab vajadusel panna elektriradika. Olemas külm vesi ja kümblustünn.
Naabrite juures airbnb pakkumised.

Teavita reeglite rikkumisest

Küsimus: private ID30805   17.11.2020 14:38
Tere. Annan teada et loobun pakkumisest

Teavita reeglite rikkumisest

Korraldaja vastus: 17.11.2020 22:48

Arvestame sellega

Teavita reeglite rikkumisest

Küsimus: private ID58203   20.11.2020 21:12
Kas puitmaterjali võib töövõtja endale jätta?

Teavita reeglite rikkumisest

Korraldaja vastus: 20.11.2020 21:41

Kui see kajastub töö hinnas siis saame kaubale

Teavita reeglite rikkumisest

Küsimus: private ID50880   21.11.2020 11:22
Tahan kusida utelezerime eternit klaas ja koik koristame. Puit jatame

Teavita reeglite rikkumisest

Korraldaja vastus:
Hanke korraldaja ei ole küsimusele veel vastanud

Lisa küsimus

Lisa küsimus

Minu pakkumine

Reeglid

Pakkumise kirjelduse väli on mõeldud pakkumise detailsemaks lahti kirjutamiseks. Pikema teksti mugavaks sisestamiseks klikkige kasti paremal ülaservas oleval ikoonil.
Pakkumist tehes on keelatud postitada enda kontaktandmeid (nimi, telefon, aadress jne). Me jälgime ja analüüsime pakkumisi, et vältida pettuseid ja reeglite rikkumisi.
Rikkumise puhul kasutajakonto blokeeritakse.

 

Teisi töid samas valdkonnas

Valdkonnas "Lammutustööd" on 6 aktiivset tööd

Suvila lammutamine

Asukoht: Raplamaa, Vilivere
Aega jäänud: 7h 2 min
Tehtud pakkumisi: 10

Katuse lammutamine

Asukoht: Harjumaa
Aega jäänud: 12p 7h
Tehtud pakkumisi: 7

Vanemad teated:

Vaata kõiki

Sellel veebilehel kasutatakse küpsiseid. Kasutamist jätkates nõustute küpsiste kasutamisega.

Sulge
 
Minu pakkumine

Reeglid

Pakkumise kirjelduse väli on mõeldud pakkumise detailsemaks lahti kirjutamiseks. Pikema teksti mugavaks sisestamiseks klikkige kasti paremal ülaservas oleval ikoonil.
Pakkumist tehes on keelatud postitada enda kontaktandmeid (nimi, telefon, aadress jne). Me jälgime ja analüüsime pakkumisi, et vältida pettuseid ja reeglite rikkumisi.
Rikkumise puhul kasutajakonto blokeeritakse.