+ Lisa oma töö      

Otsid ehitajat "Vundamenditööd" valdkonnast?

Parima pakkumise ja teostaja leidmiseks lisa oma töö.

Vaivundament, Harjumaal

ID 54856

1081 vaatamist

Prindi

  • check Pakkumiste tegemine
    kuni 18.11.2020
  • check Võitja valik kuni
    23.11.2020
  • 3 Töö teostamine
    ja hinnang
Hanke lõpp: K, 18. november, 2020
Maakond: Harjumaa
Linn: Tallinn
Muu asula: Iru
Tööde algus: E, 30. november, 2020 (Soovituslik)
Tööde lõpp: P, 06. detsember, 2020 (Soovituslik)
Ehitusmaterjalid: Töö tegija poolt
Soovin pakkumisi: Summa kogu projektile

Töö sisu

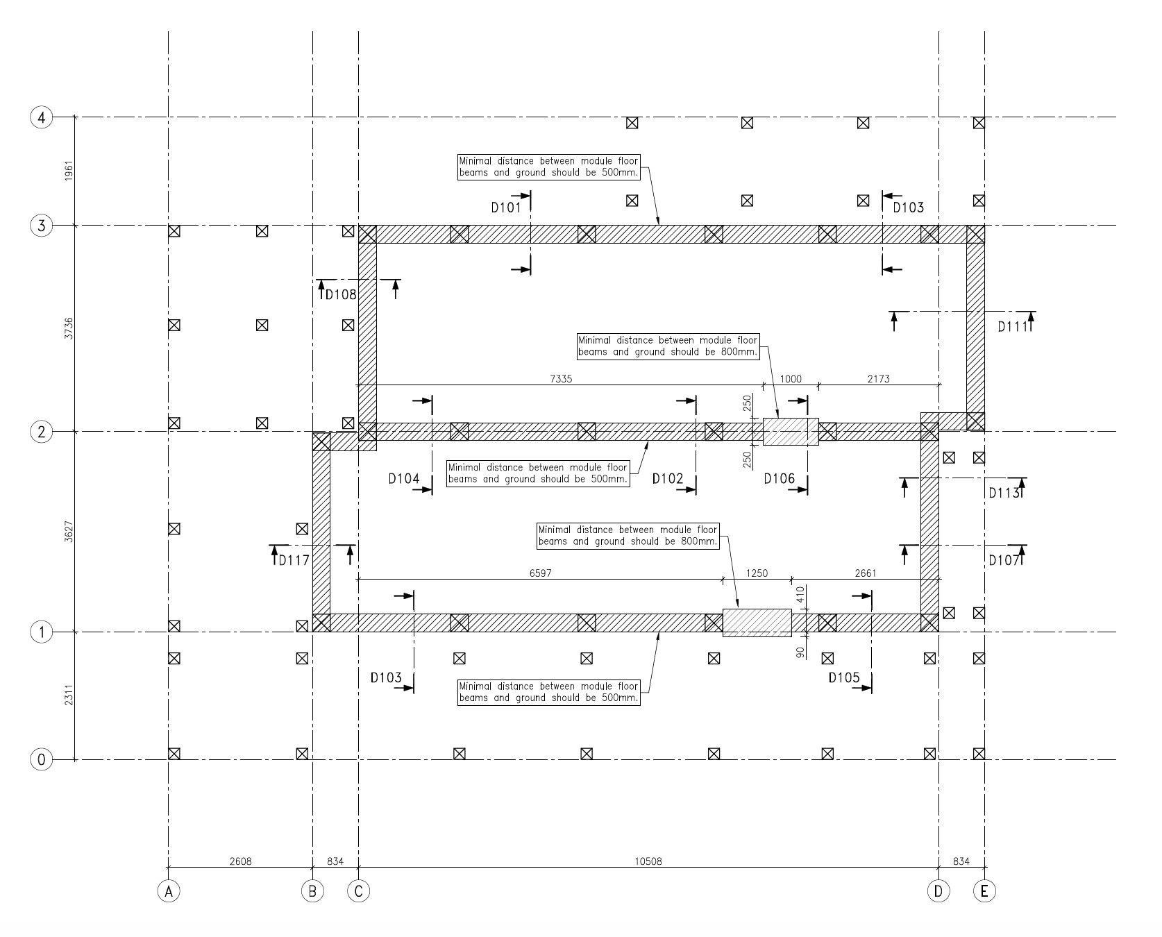
Metsa sees (ligipääsetav) vaja paigaldada vaivundament majamoodulite ja terrassimoodulite kandmiseks koos immutatud sidepuudega. Majamoodulite kaal on kokku 25 tonni (2 moodulit).

Pildid, video ja failid

Hanke korraldaja: eraisik ID46050

Pakkumised

Pakkumisi kokku: 2

Ettevõte Summa Käibemaks Lisatud Vestlus
Kasutaja ikoon ID56040
Pakkuja profiil Väike nool paremale
8 960€ KM lisandub KM lisandub 17.11.2020 Vestlus (0)

Pakkumise kirjeldus:

Tere
Pakume Teile vaivundamenti koos immutatud sidepuudega, maapinnast ca 0,5m kõrgusega.
ca 1m puuraugud,
1,5m torud d.160mm,
armeerimine 3x12mm + betoonivalu
immutatud sidepuud 150x200mm, prussikingad, betoonipoldid, hüdrotõke sidepuude ja betooni vahel,
igal postil 1x1m EPS perimeetri soojustus võimaliku külmakerke tõkkeks.
Km ei lisandu k ... Rohkem

Kasutaja ikoon ID57593
Pakkuja profiil Väike nool paremale
8 500€ KM lisandub KM lisandub 18.11.2020 Vestlus (0)

Pakkumise kirjeldus:

Tere.

Teie loetletud töödele maksumus.
Tegemist kiiremat sorti vundamendiga.

M

Küsimused hanke korraldajale

Küsimus: private ID56040   19.10.2020 22:09
Tere
Mis ristlõikega sidepuu peab olema terassil ja majal.
Terv.

Teavita reeglite rikkumisest

Korraldaja vastus: 18.11.2020 06:56

Ei ole siiski sidepuud. On metallplaatidega ühendus otse mooduli all olevale liimpuidule.

Teavita reeglite rikkumisest

Küsimus: private ID56040   18.11.2020 09:19
Tere
Tänan, siis läheb töö ca 2000eur odavamaks.
Terv.

Teavita reeglite rikkumisest

Korraldaja vastus: 18.11.2020 09:20

MIllisest hinnast?

Teavita reeglite rikkumisest

Küsimus: private ID56040   18.11.2020 09:22
ID56040 pakkumine.

Teavita reeglite rikkumisest

Korraldaja vastus:
Hanke korraldaja ei ole küsimusele veel vastanud

Lisa küsimus

Lisa küsimus

Minu pakkumine

Reeglid

Pakkumise kirjelduse väli on mõeldud pakkumise detailsemaks lahti kirjutamiseks. Pikema teksti mugavaks sisestamiseks klikkige kasti paremal ülaservas oleval ikoonil.
Pakkumist tehes on keelatud postitada enda kontaktandmeid (nimi, telefon, aadress jne). Me jälgime ja analüüsime pakkumisi, et vältida pettuseid ja reeglite rikkumisi.
Rikkumise puhul kasutajakonto blokeeritakse.

 

Vanemad teated:

Vaata kõiki

Sellel veebilehel kasutatakse küpsiseid. Kasutamist jätkates nõustute küpsiste kasutamisega.

Sulge
 
Minu pakkumine

Reeglid

Pakkumise kirjelduse väli on mõeldud pakkumise detailsemaks lahti kirjutamiseks. Pikema teksti mugavaks sisestamiseks klikkige kasti paremal ülaservas oleval ikoonil.
Pakkumist tehes on keelatud postitada enda kontaktandmeid (nimi, telefon, aadress jne). Me jälgime ja analüüsime pakkumisi, et vältida pettuseid ja reeglite rikkumisi.
Rikkumise puhul kasutajakonto blokeeritakse.